Novostavba na kľúč v Andovciach- už rozostavaná
- TOP - [17.11. 2025]Zmazať/ Upraviť/ Topovať












Ponúkame Vám na predaj novostavbu - moderný 4 izbový rodinný dom v tichej lokalite obce Andovce len 4 km od Nových Zámkov, ktorý je ideálnym riešením pre tých, ktorí hľadajú komfortné bývanie blízko mesta a zároveň nerušený kľud obce.
Bungalov s rozlohou zastavanej plochy 165 m² so zastrešenou terasou a s pozemkom o veľkosti 4 áre poskytuje dostatok priestoru pre pohodlný život celej rodiny. Dom je súčasťou novej pokojnej rodinnej štvrte, čo zaručuje súkromie a kľud pre nového majiteľa.
Malá vzdialenosť a výborná dostupnosť do okresného mesta Nové Zámky robí z tejto nehnuteľnosti atraktívnu voľbu pre rodiny hľadajúce rovnováhu medzi mestským a vidieckym štýlom života.
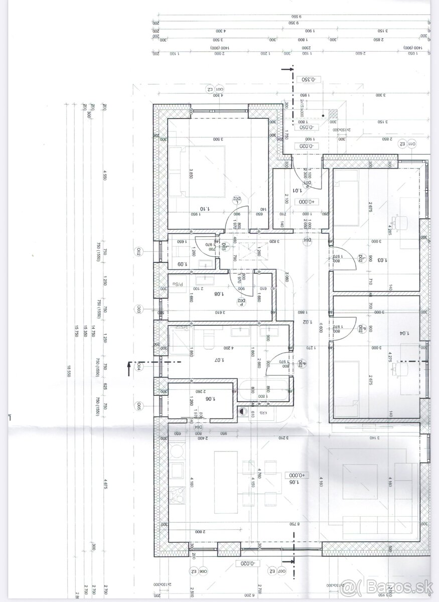
Moderný rodinný dom typu bungalov je výborne dispozične riešený.
Dispozične pozostáva zo vstupnej chodby so vstupnými dverami a priestorom pre vstavané skrine, obývacia izba je prepojená s kuchyňou, tiež praktická špajza pri kuchyni s jedálenskou časťou s východom na zastrešenú terasu o výmere 18 m2, 3 samostatné izby, na chodbe kúpeľňa, samostatné WC, technická miestnosť, samostatná ďaľšia kúpeľňa s WC.
Novostavba sa predáva v štandardnom vyhotovení vrátane všetkých podláh, interiérových dverí a sanity. V poslednej fáze dokončenia domu( podlahy, dvere, sanita) je tu možnosť použitia materiálov podľa vlastného výberu, aby ste sa mohli nasťahovať do vybaveného a funkčného domova podľa vlastného vkusu.
Novostavba sa nachádza vo vyhľadávanej lokalite obce Andovce s kompletnou občianskou vybavenosťou, ktorá je vzdialená len 4 km od mesta Nové Zámky, 42 km od mesta Nitra. V pešej vzdialenosti sa nachádza pošta, potraviny, pohostinstvo, reštaurácia, materská škola, ihrisko, rybník…
Nezmeškajte príležitosť stať sa majiteľom tejto modernej nehnuteľnosti!
Cena za nehnuteľnosť je 219.900,- EUR.
V cene nehnuteľnosti je zahrnutý kompletný právny servis, zabezpečenie všetkých písomností (rezervačná zmluva, zmluva o budúcej zmluve, kúpna zmluva), poplatky spojené s prevodom vlastníckych práv na kataster.
Bezplatne Vám vypracujeme ponuku financovania prostredníctvom úveru. Spolupracujeme zo všetkými finančnými inštitúciami.
Výstavba rodinného domu je začatá, momentálne je v štádiu hrubej stavby, termín dokončenia na jar 2026.
V prípade dalších otázok ma neváhajte kontaktovať na tel.č.0907707092.
Bungalov s rozlohou zastavanej plochy 165 m² so zastrešenou terasou a s pozemkom o veľkosti 4 áre poskytuje dostatok priestoru pre pohodlný život celej rodiny. Dom je súčasťou novej pokojnej rodinnej štvrte, čo zaručuje súkromie a kľud pre nového majiteľa.
Malá vzdialenosť a výborná dostupnosť do okresného mesta Nové Zámky robí z tejto nehnuteľnosti atraktívnu voľbu pre rodiny hľadajúce rovnováhu medzi mestským a vidieckym štýlom života.
Moderný rodinný dom typu bungalov je výborne dispozične riešený.
Dispozične pozostáva zo vstupnej chodby so vstupnými dverami a priestorom pre vstavané skrine, obývacia izba je prepojená s kuchyňou, tiež praktická špajza pri kuchyni s jedálenskou časťou s východom na zastrešenú terasu o výmere 18 m2, 3 samostatné izby, na chodbe kúpeľňa, samostatné WC, technická miestnosť, samostatná ďaľšia kúpeľňa s WC.
Novostavba sa predáva v štandardnom vyhotovení vrátane všetkých podláh, interiérových dverí a sanity. V poslednej fáze dokončenia domu( podlahy, dvere, sanita) je tu možnosť použitia materiálov podľa vlastného výberu, aby ste sa mohli nasťahovať do vybaveného a funkčného domova podľa vlastného vkusu.
Novostavba sa nachádza vo vyhľadávanej lokalite obce Andovce s kompletnou občianskou vybavenosťou, ktorá je vzdialená len 4 km od mesta Nové Zámky, 42 km od mesta Nitra. V pešej vzdialenosti sa nachádza pošta, potraviny, pohostinstvo, reštaurácia, materská škola, ihrisko, rybník…
Nezmeškajte príležitosť stať sa majiteľom tejto modernej nehnuteľnosti!
Cena za nehnuteľnosť je 219.900,- EUR.
V cene nehnuteľnosti je zahrnutý kompletný právny servis, zabezpečenie všetkých písomností (rezervačná zmluva, zmluva o budúcej zmluve, kúpna zmluva), poplatky spojené s prevodom vlastníckych práv na kataster.
Bezplatne Vám vypracujeme ponuku financovania prostredníctvom úveru. Spolupracujeme zo všetkými finančnými inštitúciami.
Výstavba rodinného domu je začatá, momentálne je v štádiu hrubej stavby, termín dokončenia na jar 2026.
V prípade dalších otázok ma neváhajte kontaktovať na tel.č.0907707092.
|
| |||||||||||||||||||||||||||||||
Kontaktovať inzerenta e-mailom
Kontaktovať e-mailom môže iba overený užívateľ.
Overenie je zadarmo.
Vaše telefónne číslo *
Kontaktovať e-mailom môže iba overený užívateľ.
Overenie je zadarmo.
Vaše telefónne číslo *
Podobné inzeráty
NOVINKA Ponúkam na predaj 4 izbovú NOVOSTAVBU v obci ANDOVCE - [17.11. 2025]Typ: Rodinný dom
Ulica: Andovce
Obec: Andovce
Nový Projekt !!!
Ponúkame Vám na predaj murovaný 4 izbový Bungalov - NOVOSTAVBU v obci ANDOVCE.
Plocha: úžitková 116m2, zastavaná 135m2, pozemku 500m2. Podlaha: plávajúca, dlažba.
Steny: stierky, omietky. Okná: plastové - 3 sklo.Stav objektu: vo ...
229 900 €
Nové Zámky
941 23
941 23
10 x
Označiť zlý inzerát Chybnú kategóriu Ohodnotiť užívateľa Zmazať/Upraviť/Topovať
Exkluzívne iba u nás - 5 izbový rodinný dom v Andovciach - [14.11. 2025]Bývajte ihneď! V Andovciach na vás čaká moderný 5-izbový radový rodinný dom, ktorý spája praktickú dispozíciu, komfortné súkromie a dostatok miesta pre spoločný rodinný život — a to za bezkonkurenčnú cenu len 169 000 € v holodome, s možnosťou dokončenia do štandardu.
Tento dom je ideálnym riešení ...
169 000 €
Nové Zámky
941 23
941 23
100 x
Označiť zlý inzerát Chybnú kategóriu Ohodnotiť užívateľa Zmazať/Upraviť/Topovať
A4.3 - Rodinná pohoda a moderné bývanie - radový dom v p - [14.11. 2025]Miesto, kde sa býva s pokojom. Hľadáte nový domov, kde sa bude cítiť dobre celá rodina?
V projekte Slnovrat v pokojnej obci Andovce vám ponúkame priestranný 5-izbový rodinný dom, ktorý je ako stvorený pre každodenný život, oddych aj spoločné chvíle.
Tento dom je ideálny pre mladú alebo rastúcu r ...
209 121 €
Nové Zámky
941 23
941 23
50 x
Označiť zlý inzerát Chybnú kategóriu Ohodnotiť užívateľa Zmazať/Upraviť/Topovať
C3.1 - 4-izbový dvojdom s garážou v Slnovrate – priesto - [14.11. 2025]Predstavte si dom, kde každé ráno vonia čerstvá káva, deti sa hrajú v záhrade a večery trávite spolu pod hviezdami. V Andovciach – len pár minút od Nových Zámkov – nájdete priestor, kde sa tento obraz môže stať realitou.
V novej rezidenčnej štvrti Slnovrat v Andovciach vám ponúkame na predaj 4-izbo ...
240 337 €
Nové Zámky
941 23
941 23
36 x
Označiť zlý inzerát Chybnú kategóriu Ohodnotiť užívateľa Zmazať/Upraviť/Topovať
Na predaj dvojgeneračný rodinný dom s pekným pozemkom Andovc - [13.11. 2025]Typ: Rodinný dom
Ulica: Andovce
Obec: Andovce
Ponúkame Vám na predaj dvojgeneračný rodinný dom s krásnym pozemok v obci Andovce.
Plocha: úžitková 145m2, zastavaná 188m2, pozemku 949m2.
Podlaha: plávajúca, dlažba, pvc. Steny: stierky, omietky. Okná: plastové. Vybavenie kúpeľne: klasická vaňa. O ...
119 990 €
Nové Zámky
941 23
941 23
51 x
Označiť zlý inzerát Chybnú kategóriu Ohodnotiť užívateľa Zmazať/Upraviť/Topovať
Znížená CENA Ponúkam na predaj RODINNÝ DOM- BUNGALOV ANDOVC - [13.11. 2025]Typ: Rodinný dom
Ulica: Andovce
Obec: Andovce
Táto ponuka IBA U NÁS!!!
Ponúkame Vám na predaj čiastočne zariadený 3 izbový rodinný dom v obci Andovce. Plocha: úžitková 105m2, zastavaná 127m2, pozemku 640m2. Podlaha: dlažba. Steny: stierky, omietky. Okná: plastové. Vybavenie kúpeľne: klasická va ...
259 990 €
Nové Zámky
941 23
941 23
57 x
Označiť zlý inzerát Chybnú kategóriu Ohodnotiť užívateľa Zmazať/Upraviť/Topovať
Predám rodinný dom s pekným pozemkom v Andovciach - [11.11. 2025]Typ: Rodinný dom
Ulica: Andovce
Obec: Andovce
Realitná kancelária Real Property & Consulting s.r.o. ponúka na predaj 3 izbový rodinný dom s pekným pozemkom v Andovciach. Dom bol postavený v roku 1964 z tehly, má škridlovú strechu, plastové okná. Dom je napojený na všetky inžinierske siete - ...
137 000 €
Nové Zámky
941 23
941 23
118 x
Označiť zlý inzerát Chybnú kategóriu Ohodnotiť užívateľa Zmazať/Upraviť/Topovať
Na predaj krásna novostavba rodinného domu v obci Andovce - [31.10. 2025]Typ: Rodinný dom
Obec: Andovce
Ponúkame na predaj krásnu novostavbu rodinného domu, ktorá sa nachádza na novovybudovanej ulici v obci Andovce. Jedná sa o 4-izbový rodinný dom postavený z tehly a skolaudovaný v roku 06/2024.
DOM
- úžitková plocha domu je 132m2
- vykurovanie je podlahové teplovod ...
255 000 €
Nové Zámky
941 23
941 23
509 x
Označiť zlý inzerát Chybnú kategóriu Ohodnotiť užívateľa Zmazať/Upraviť/Topovať
Dom na predaj - [29.10. 2025]Dom na predaj sa nachádza v novej časti obce v tichom prostredí. Rozloha pozemku je 440 m2, z toho zastavana plocha 150 m2. Cena zahŕňa stavbu na kľúč s prípojkami. V cene je zahrnutá fotovoltaika, príprava na krb a klimatizácia.
Možná dohoda na cene.
219 000 €
Nové Zámky
941 23
941 23
488 x
Označiť zlý inzerát Chybnú kategóriu Ohodnotiť užívateľa Zmazať/Upraviť/Topovať
Predaj kvalitnej novostavby Andovce okr. NZ - [26.10. 2025]HS Real vám prináša jedinečnú príležitosť splniť si sen o bývaní! ✨
Na predaj ponúkame priestranný 5-izbový rodinný dom v krásnej a tichej lokalite Andoviec, ktorý čaká na svojho nového majiteľa.
Dom je už vo výstavbe a ponúka ideálnu kombináciu kvality, komfortu a priestoru pre celú rodinu. Pos ...
269 000 €
Nové Zámky
941 23
941 23
523 x
Označiť zlý inzerát Chybnú kategóriu Ohodnotiť užívateľa Zmazať/Upraviť/Topovať