NA PREDAJ I Výrobno - skladová hala s kanceláriami
- TOP - [18.11. 2025]Zmazať/ Upraviť/ Topovať























Ponúkame na predaj flexibilnú výrobnú/skladovú halu s kompletným zázemím pre rozvoj vášho podnikania s prístupom aj pre kamióny.
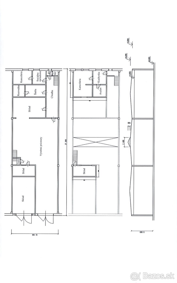
Výmera pozemku: 618 m²
Skladová/výrobná plocha: 406 m²
Svetlá výška haly: 5 m – ideálna pre skladovanie aj výrobu.
Kancelárie a zázemie: Vybavené kancelárske priestory pre administratívu, kuchynka a kompletné sociálne zariadenia pre zamestnancov.
Hala disponuje dvoma samostatnými vstupmi, čo umožňuje jednoduché rozdelenie na dve nezávislé prevádzky. Ideálne pre diverzifikáciu podnikania alebo prenájom časti priestorov.
Inžinierske siete:
Plyn: Plynové vykurovanie
Elektrina: Priemyselná trojfázová elektrina (380V)
Vodovod a kanalizácia: Napojenie na verejný vodovod a kanalizáciu.
Objekt sa nachádza v priemyselnej zóne s výbornou dostupnosťou a možnosťou vjazdu aj pre kamióny, čo zaručuje plynulú logistiku.
Táto nehnuteľnosť je ideálna pre expanziu podniku alebo ako investícia, nakoľko sa dá rozdeliť na dve samostatné prevádzky. Pre viac info volajte 0918 781 504 alebo píšte na dominika@donid.sk
Výmera pozemku: 618 m²
Skladová/výrobná plocha: 406 m²
Svetlá výška haly: 5 m – ideálna pre skladovanie aj výrobu.
Kancelárie a zázemie: Vybavené kancelárske priestory pre administratívu, kuchynka a kompletné sociálne zariadenia pre zamestnancov.
Hala disponuje dvoma samostatnými vstupmi, čo umožňuje jednoduché rozdelenie na dve nezávislé prevádzky. Ideálne pre diverzifikáciu podnikania alebo prenájom časti priestorov.
Inžinierske siete:
Plyn: Plynové vykurovanie
Elektrina: Priemyselná trojfázová elektrina (380V)
Vodovod a kanalizácia: Napojenie na verejný vodovod a kanalizáciu.
Objekt sa nachádza v priemyselnej zóne s výbornou dostupnosťou a možnosťou vjazdu aj pre kamióny, čo zaručuje plynulú logistiku.
Táto nehnuteľnosť je ideálna pre expanziu podniku alebo ako investícia, nakoľko sa dá rozdeliť na dve samostatné prevádzky. Pre viac info volajte 0918 781 504 alebo píšte na dominika@donid.sk
|
| |||||||||||||||||||||||||||||||
Kontaktovať inzerenta e-mailom
Kontaktovať e-mailom môže iba overený užívateľ.
Overenie je zadarmo.
Vaše telefónne číslo *
Kontaktovať e-mailom môže iba overený užívateľ.
Overenie je zadarmo.
Vaše telefónne číslo *


