Rod. dom, Kostolná 348/37, Bučany, Okr. Trnava, podiel 1/2
- [17.11. 2025]Zmazať/ Upraviť/ Topovať





















VÝHODNÁ PONUKA / DRAŽBA
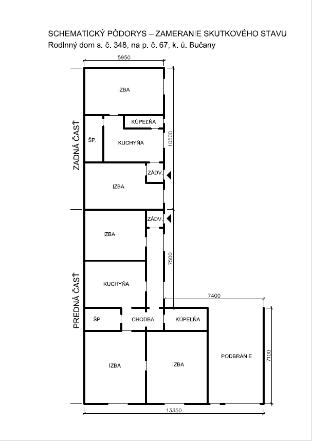
Predmetom dražby je spoluvlastnícky podiel 1/2 k rodinnému domu so súp. č. 348 a spoluvlastnícky podiel 3/9 k pozemkom p. č. 4 a p. č. 67 na Kostolnej ulici v obci Bučany.
Dom je jednopodlažný a má tvar L. Užívať sa začal v roku 1960. Dom bol počas svojej životnosti postupne čiastočne modernizovaný.
Dom pozostáva z dvoch častí. Vstup do domu je z ulice do dvora, odkiaľ je samostatný prístup do prednej a zadnej časti domu. Predná časť domu pozostáva z troch obytných miestností, zádveria, chodby, špajze a kúpeľne. Zadná časť domu pozostáva z dvoch obytných miestností, zádveria, kuchyne, kúpeľne a WC. V prednej časti domu v dvoch izbách a na chodbe sú osadené plastové okná.
Obývaná je momentálne iba predná časť domu.
Celková rozloha domu je 201,89 m2 a prislúcha k nemu pozemok o veľkosti 784 m2. Zároveň súčasťou dražby je ešte jeden pozemok o veľkosti 1395 m2.
Dom sa nachádza v širšom centre obce. Približne 10 minút od občianskej vybavenosti obce (rímskokatolícky kostol, obchod s potravinami, základná škola, materská škola, pošta a obecný úrad).
Predmetom dražby je spoluvlastnícky podiel 1/2 k rodinnému domu so súp. č. 348 a spoluvlastnícky podiel 3/9 k pozemkom p. č. 4 a p. č. 67 na Kostolnej ulici v obci Bučany.
Dom je jednopodlažný a má tvar L. Užívať sa začal v roku 1960. Dom bol počas svojej životnosti postupne čiastočne modernizovaný.
Dom pozostáva z dvoch častí. Vstup do domu je z ulice do dvora, odkiaľ je samostatný prístup do prednej a zadnej časti domu. Predná časť domu pozostáva z troch obytných miestností, zádveria, chodby, špajze a kúpeľne. Zadná časť domu pozostáva z dvoch obytných miestností, zádveria, kuchyne, kúpeľne a WC. V prednej časti domu v dvoch izbách a na chodbe sú osadené plastové okná.
Obývaná je momentálne iba predná časť domu.
Celková rozloha domu je 201,89 m2 a prislúcha k nemu pozemok o veľkosti 784 m2. Zároveň súčasťou dražby je ešte jeden pozemok o veľkosti 1395 m2.
Dom sa nachádza v širšom centre obce. Približne 10 minút od občianskej vybavenosti obce (rímskokatolícky kostol, obchod s potravinami, základná škola, materská škola, pošta a obecný úrad).
|
| |||||||||||||||||||||||||||||||
Kontaktovať inzerenta e-mailom
Kontaktovať e-mailom môže iba overený užívateľ.
Overenie je zadarmo.
Vaše telefónne číslo *
Kontaktovať e-mailom môže iba overený užívateľ.
Overenie je zadarmo.
Vaše telefónne číslo *
