Predaj 2 izbového bytu s balkónom, Veľký Krtíš.
- [17.11. 2025]Zmazať/ Upraviť/ Topovať





















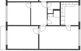
Realitná kancelária REX REAL,s.r.o. ( maklér: Mgr. Milena Bornstein Martušová , mobil: 0918146617, milenabornstein@rexreal.eu, alebo mimartusova@gmail.com, rexreal@eu.) ponúka exkluzívne na predaj veľký 2 izbový byt s balkónom vo výbornej lokalite, vo Veľkom Krtíši. Byt má rozlohu 61 m2. Nachádza sa na 1/8 poschodí zatepleného panelového domu. Byt je v pôvodnom stave, čo vytvára priestor novému majiteľovi prestavať si byt podľa vlastných predstáv. Dispozičné riešenie bytu: byt pozostáva z priestrannej chodby, dvoch veľkých obytných miestností z toho jedna obytná izba má výstup na balkón orientovaný na južnú stranu. Kuchyňa je v tvare písmena L, ďalej samostatnej kúpeľne a WC. V byte sú vymenené plastové okná, a na podlahách v obytných izbách plávajúce podlahy. Bytové jadro je pôvodné umakartové. Kuchynská linka je pôvodná s kombinovaným sporákom. Vchodové dvere sú tiež pôvodné, leminátové. Výťah stojí na každom poschodí K bytu prináleží latkovaná pivnica o výmere 1,90m2. Bytový dom je po kompletnej rekonštrukcii. Príjemne prekvapia spoločné priestory , veľmi dobre udržiavané. Parkovanie je možné pred bytovým domom. Jedná sa o predaj bytu, ktorý je vhodnou investičnou príležitosťou, ale byt je vhodný aj pre ľudí , ktorí si vedia vytvoriť príjemný domov podľa vlastných požiadaviek . Bytový dom sa nachádza na sídlisku, kde sa nachádza kompletnej občianska vybavenosť – škola, škôlka, nemocnica, zastávka, obchodné reťazce atď.
V prípade financovania nehnuteľnosti prostredníctvom hypotekárneho úveru Vám zabezpečíme výber optimálneho modelu financovania pre Váš zámer, sprostredkovanie a vybavenie hypotekárnych úverov, komplexné poradenstvo a servis. Súčasťou je aj právny a katastrálneho servis.
V prípade ak vás táto nehnuteľnosť zaujala, dohodnite si prosím termín obhliadky.
V prípade financovania nehnuteľnosti prostredníctvom hypotekárneho úveru Vám zabezpečíme výber optimálneho modelu financovania pre Váš zámer, sprostredkovanie a vybavenie hypotekárnych úverov, komplexné poradenstvo a servis. Súčasťou je aj právny a katastrálneho servis.
V prípade ak vás táto nehnuteľnosť zaujala, dohodnite si prosím termín obhliadky.
|
| |||||||||||||||||||||||||||||||
Kontaktovať inzerenta e-mailom
Kontaktovať e-mailom môže iba overený užívateľ.
Overenie je zadarmo.
Vaše telefónne číslo *
Kontaktovať e-mailom môže iba overený užívateľ.
Overenie je zadarmo.
Vaše telefónne číslo *
Podobné inzeráty
⭐ Svetlý trojizbový byt s veľkým potenciálom - VK - [17.11. 2025]Niektoré byty sú ako čisté plátno – stačí jediný pohľad a vidíte, čo všetko z nich môže vzniknúť.
A práve tento 3-izbový byt patrí k tým, ktoré v sebe ukrývajú omnoho viac, než sa zdá na prvý pohľad. Má priestor, svetlo, dobré základy a tichú adresu, ktorá sa dnes zháňa len veľmi ťažko.
⸻
Pre ...
63 000 €
Veľký Krtíš
990 01
990 01
44 x
Označiť zlý inzerát Chybnú kategóriu Ohodnotiť užívateľa Zmazať/Upraviť/Topovať
🌟 Svetlý, príjemný a tichý dvojizbový byt vo Veľkom Krtíši - [17.11. 2025]Niekedy stačí urobiť pár krokov cez prah a hneď viete, že tento priestor vám jednoducho sedí.
Byt pôsobí pokojne, čisto a prirodzene – presne tak, ako má pôsobiť domov.
Tento útulný 2-izbový byt na Hviezdoslavovej ulici vo Veľkom Krtíši ponúka výbornú atmosféru, praktickú dispozíciu a tiché pros ...
71 500 €
Veľký Krtíš
990 01
990 01
27 x
Označiť zlý inzerát Chybnú kategóriu Ohodnotiť užívateľa Zmazať/Upraviť/Topovať
🌞Svetlý trojizbový byt – ideálny základ pre moderný domov - [16.11. 2025]Predstavte si bývanie, kde sa každý deň začína pokojom, dostatkom svetla a priestorom, ktorý pôsobí príjemne už pri prvom pohľade.
Byt, ktorý má skvelé dispozície, výborné základy a čaká len na to, aby ste si ho prispôsobili presne podľa svojho štýlu.
Presne taký je tento 3-izbový byt s výmerou ...
63 000 €
Veľký Krtíš
990 01
990 01
66 x
Označiť zlý inzerát Chybnú kategóriu Ohodnotiť užívateľa Zmazať/Upraviť/Topovať
AKCIA❗️Priestranný dvojizbový byt s čiastočnou rekonštrukciu - [16.11. 2025]Niekedy stačí urobiť pár krokov cez prah a okamžite viete, že toto je priestor, v ktorom sa budete cítiť dobre.
Byt, ktorý pôsobí pokojne, svetlo a prirodzene – presne tak, ako domov pôsobiť má.
Tento príjemný 2-izbový byt na obľúbenej Hviezdoslavovej ulici vo Veľkom Krtíši ponúka presne to: kva ...
71 500 €
Veľký Krtíš
990 01
990 01
53 x
Označiť zlý inzerát Chybnú kategóriu Ohodnotiť užívateľa Zmazať/Upraviť/Topovať
hladam 2 izbovy byt vo Velkom Krtisi - [16.11. 2025]podmienka:
slusna lokalita, balkon, idealne do 4. poschodia
ponuky posielajte mailom,
telefonny kontakt poskytnem po prijati ponuky
dakujem
50 000 €
Veľký Krtíš
990 01
990 01
51 x
Označiť zlý inzerát Chybnú kategóriu Ohodnotiť užívateľa Zmazať/Upraviť/Topovať
Ponúknite 2 - 3 izbový byt vo Veľkom Krtíši - [16.11. 2025]Ponúknite 2 - 3 izbový byt vo Veľkom Krtíši s balkónom, lodžiou do 6.poschodia, podmienkou je prerobené murované jadro a nová elektroinštalácia, alebo čiastočne, v osobnom vlastníctve, bez tiarch, platba v hotovosti, ponuky iba emailom, alebo v sms správe, na neznáme telefonáty nereagujem, telefonic ...
Ponúknite
Veľký Krtíš
990 01
990 01
74 x
Označiť zlý inzerát Chybnú kategóriu Ohodnotiť užívateľa Zmazať/Upraviť/Topovať
Hľadám 2 izbový byt vo Veľkom Krtíši - [15.11. 2025]Hľadám na kúpu 2 izbový byt, môže byt aj starší to mi nevadi. Ideálne lokalita Venevská ale nebránim sa ani iným ponukám.
Prosim kontaktujte ma emailom
Nie som realitka, súkromná osoba
50 000 €
Veľký Krtíš
990 01
990 01
68 x
Označiť zlý inzerát Chybnú kategóriu Ohodnotiť užívateľa Zmazať/Upraviť/Topovať
✨ Priestranný trojizbový byt na rekonštrukciu podľa seba - [14.11. 2025]Predstavte si bývanie, kde vládne pokoj, priestor a dostatok svetla.
Byt, ktorý má výborné základy a čaká len na váš osobný štýl.
Miesto, kde po náročnom dni vypnete, venujete sa rodine a zároveň máte všetku občiansku vybavenosť doslova na pár krokov.
Presne taký je tento 3-izbový byt s výmerou ...
63 000 €
Veľký Krtíš
990 01
990 01
141 x
Označiť zlý inzerát Chybnú kategóriu Ohodnotiť užívateľa Zmazať/Upraviť/Topovať
✨ Útulný dvojizbový byt s balkónom – Hviezdoslavova, VK - [14.11. 2025]Niekedy stačí vojsť do bytu a hneď máte pocit, že presne takto má pôsobiť domov.
Tento svetlý 2-izbový byt na obľúbenej Hviezdoslavovej ulici vo Veľkom Krtíši ponúka pokoj, pohodlné bývanie a atmosféru, ktorú je ťažké nájsť inde – najmä v tejto lokalite.
Praktická dispozícia, príjemné svetlo a p ...
71 500 €
Veľký Krtíš
990 01
990 01
82 x
Označiť zlý inzerát Chybnú kategóriu Ohodnotiť užívateľa Zmazať/Upraviť/Topovať
3-izbový byt - [12.11. 2025]Predám 3-izbový byt s balkónom a pivnicou; celková plocha bytu 72,3 m²; 8/8 poschodie; ul. P.O. Hviezdoslava, Veľký Krtíš. Byt je v osobnom vlastníctve bez tiarch, v prípade záujmu ihneď k dispozícii.
Byt pred ukončením úplnej rekonštrukcie v stave holobytu, ideálny na dokončenie podľa vlastných ...
V texte
Veľký Krtíš
990 01
990 01
197 x
Označiť zlý inzerát Chybnú kategóriu Ohodnotiť užívateľa Zmazať/Upraviť/Topovať
