HALO reality - Predaj, trojizbový byt Očová, veľkorysý a sln
- [17.11. 2025]Zmazať/ Upraviť/ Topovať






























Hľadáte bývanie, ktoré spája moderný komfort s pokojnou vidieckou atmosférou? Predstavujeme vám výnimočný 3-izbový byt situovaný na 3. poschodí zatepleného bytového domu v srdci Očovej. Byt o rozlohe 76m2 je kompletne zrekonštruovaný a pripravený na okamžité nasťahovanie – stačí si priniesť osobné veci a bývať.
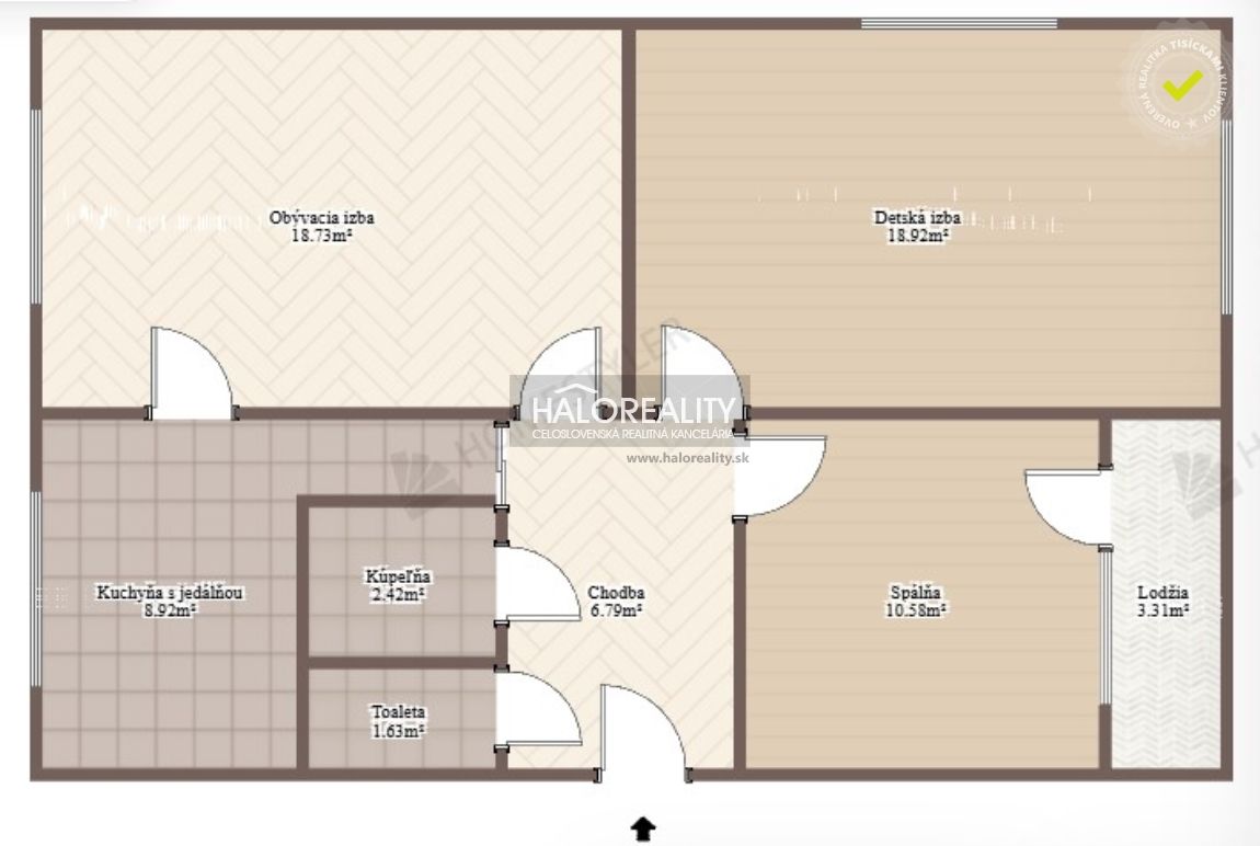
DISPOZÍCIA:
Byt má výborné dispozičné riešenie – žiadna z miestností nie je priechodná. Celková výmera poskytuje komfortné bývanie aj pre viacčlennú rodinu:
• Vstupná chodba – priestranná, s pohodlným prístupom do všetkých miestností.
• Tri samostatné izby – každá izba je veľkoryso riešená, jedna z nich má výstup na lodžiu, ideálnu na oddych.
• Kuchyňa s jedálenskou časťou – otvorený a praktický priestor na spoločné stolovanie aj varenie.
• Samostatná kúpeľňa – s vaňou a priestorom na práčku.
• Samostatná toaleta.
• Špajza (cca 3 m2) na medziposchodí a pivnica (cca 3 m2) na prízemí domu.
STAV NEHNUTEĽNOSTI:
Byt prešiel kompletnou a kvalitne prevedenou rekonštrukciou, vrátane:
• výmeny plastových okien,
• kompletne novej elektroinštalácie a rozvodov kúrenia (vrátane nových radiátorov),
• znížených a zateplených stropov (minerálnou vatou),
• nových vnútorných stierok a malieb,
• interiérových dverí s obložkovými zárubňami,
• pokládky kvalitnej laminátovej podlahy vo všetkých izbách,
• modernej kuchynskej linky na mieru so vstavanými spotrebičmi (umývačka riadu, elektrická rúra, plynová varná doska, digestor),
• murovanej kúpeľne a samostatnej toalety s elegantným obkladom a dlažbou.
BYTOVÝ DOM:
Bytový dom je po čerstvej kompletnej rekonštrukcii (ukončená pred 2 mesiacmi, čaká sa na kolaudačné rozhodnutie):
• nové zateplenie fasády,
• rekonštrukcia spoločných priestorov a schodiska,
• nová sedlová strecha s pochôdznym podkrovím,
• kúrenie zabezpečené vlastným plynovým kotlom pre 13 bytov – efektívne a úsporné riešenie,
• spoločný dvor s potokom – ideálne prostredie na oddych,
• bezproblémové parkovanie priamo pred domom.
VÝHODY:
• Kompletná rekonštrukcia bytu aj bytového domu – bez ďalších investícií
• Veľké nepriechodné izby + lodžia
• Nízke mesačné náklady (cca 180 € + energie)
• Tichá lokalita s plnou občianskou vybavenosťou
• Možnosť okamžitého nasťahovania
MESAČNÉ NÁKLADY:
Mesačné náklady pre 3 osoby: 180 € nájomné, 20€ elektrina, 4€ plyn.
LOKALITA:
Obec Očová ponúka ideálnu kombináciu vidieckeho pokoja a dostupnosti občianskej vybavenosti. V bezprostrednej blízkosti nájdete:
• základnú školu a materskú školu,
• potraviny, poštu, zdravotné stredisko,
• športoviská, detské ihriská a krásnu prírodu na dosah.
NÁZOR MAKLÉRA:
Tento byt predstavuje výnimočnú príležitosť pre tých, ktorí hľa
DISPOZÍCIA:
Byt má výborné dispozičné riešenie – žiadna z miestností nie je priechodná. Celková výmera poskytuje komfortné bývanie aj pre viacčlennú rodinu:
• Vstupná chodba – priestranná, s pohodlným prístupom do všetkých miestností.
• Tri samostatné izby – každá izba je veľkoryso riešená, jedna z nich má výstup na lodžiu, ideálnu na oddych.
• Kuchyňa s jedálenskou časťou – otvorený a praktický priestor na spoločné stolovanie aj varenie.
• Samostatná kúpeľňa – s vaňou a priestorom na práčku.
• Samostatná toaleta.
• Špajza (cca 3 m2) na medziposchodí a pivnica (cca 3 m2) na prízemí domu.
STAV NEHNUTEĽNOSTI:
Byt prešiel kompletnou a kvalitne prevedenou rekonštrukciou, vrátane:
• výmeny plastových okien,
• kompletne novej elektroinštalácie a rozvodov kúrenia (vrátane nových radiátorov),
• znížených a zateplených stropov (minerálnou vatou),
• nových vnútorných stierok a malieb,
• interiérových dverí s obložkovými zárubňami,
• pokládky kvalitnej laminátovej podlahy vo všetkých izbách,
• modernej kuchynskej linky na mieru so vstavanými spotrebičmi (umývačka riadu, elektrická rúra, plynová varná doska, digestor),
• murovanej kúpeľne a samostatnej toalety s elegantným obkladom a dlažbou.
BYTOVÝ DOM:
Bytový dom je po čerstvej kompletnej rekonštrukcii (ukončená pred 2 mesiacmi, čaká sa na kolaudačné rozhodnutie):
• nové zateplenie fasády,
• rekonštrukcia spoločných priestorov a schodiska,
• nová sedlová strecha s pochôdznym podkrovím,
• kúrenie zabezpečené vlastným plynovým kotlom pre 13 bytov – efektívne a úsporné riešenie,
• spoločný dvor s potokom – ideálne prostredie na oddych,
• bezproblémové parkovanie priamo pred domom.
VÝHODY:
• Kompletná rekonštrukcia bytu aj bytového domu – bez ďalších investícií
• Veľké nepriechodné izby + lodžia
• Nízke mesačné náklady (cca 180 € + energie)
• Tichá lokalita s plnou občianskou vybavenosťou
• Možnosť okamžitého nasťahovania
MESAČNÉ NÁKLADY:
Mesačné náklady pre 3 osoby: 180 € nájomné, 20€ elektrina, 4€ plyn.
LOKALITA:
Obec Očová ponúka ideálnu kombináciu vidieckeho pokoja a dostupnosti občianskej vybavenosti. V bezprostrednej blízkosti nájdete:
• základnú školu a materskú školu,
• potraviny, poštu, zdravotné stredisko,
• športoviská, detské ihriská a krásnu prírodu na dosah.
NÁZOR MAKLÉRA:
Tento byt predstavuje výnimočnú príležitosť pre tých, ktorí hľa
|
| |||||||||||||||||||||||||||||||
Kontaktovať inzerenta e-mailom
Kontaktovať e-mailom môže iba overený užívateľ.
Overenie je zadarmo.
Vaše telefónne číslo *
Kontaktovať e-mailom môže iba overený užívateľ.
Overenie je zadarmo.
Vaše telefónne číslo *









