TOP ponuka Zadar: 2i byt s terasou, záhradou a 2 parkovacími
- [16.11. 2025]Zmazať/ Upraviť/ Topovať
















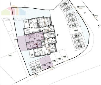
NOVOSTAVBA !! Bytový dom s 8 bytovými jednotkami.
Apartmány na prízemí majú záhrady!!
Byt je situovaný na prízemí rozostavaného bytového domu s celkovou úžitkovou plochou 55,58m2
Byt pozostáva zo vstupu, kuchyne s jedálňou a obývacou izbou, kúpeľne, 1 spálne a krytej terasy - loggie.
K bytu prislúcha komora SP2 o rozlohe 5,10m2 v suteréne budovy a 2 vonkajšie parkovacie státia PM3 a PM4 s rozlohou 13,75m2.
BYT S2 – byt na prízemí, stred, západ
DISPOZĆIA BYTU:
Kuchyňa a obývacia izba: 22,10 m²
Vstup: 1,80 m²
Izba 1: 12,25 m²
Kúpeľňa: 5,10 m²
CELKOM: 41,25 m²
Krytá terasa-loggia: 5,10 m² (koeficient 0,75) = 3,83 m²
BYT S2 - CELKOM: 45,08 m²
PRÍSLUŠENSTVO K BYTU S2
Sklad v suteréne Sp2: 5,10 m² (koeficient 0,50) = 2,55 m²
Záhrada V2: 24,55 m² (koeficient 0,10) = 2,45 m²
Parkovacie miesto PM3: 13,75 m² (koeficient 0,20) = 2,75 m²
Parkovacie miesto PM4: 13,75 m² (koeficient 0,20) = 2,75 m²
PRÍSLUŠENSTVO Sp2, V2, PM3, PM4 (celková plocha): 57,15 m²
ÚŽITKOVÁ PLOCHA (príslušenstva po prepočte koeficientom): 10,50 m²
ÚŽITKOVÁ HODNOTA PLOCHY S2 (byt + príslušenstvo): 55,58 m²
Pri samotnej stavbe sú použité materiály najvyššej kvality. Fasádny polystyrén 10 cm, deliace steny (tehla), klimatizácia každej miestnosti na vykurovanie a chladenie. Podlahové kúrenie v kúpeľni (možno usporiadať v celom byte.) Trojvrstvové sklo, trojvrstvové parkety, bezpečnostné a protipožiarne dvere. Kupujúci má možnosť vybrať si dokončovacie materiály v bytoch. ( parkety, dlažba. )
Kúrenie: tepelné čerpadlá, v každej miestnosti je podlahové kúrenie, komín.
Sťahovanie: začiatok roka 2026.
Blízkosť všetkých zariadení potrebných pre každodenný život (obchody, školy, škôlky atď.)
Cena: 166.740 €
Viac informácií Vám radi poskytneme na telefónnom čísle 0905 436 650, alebo mailovej adrese moravcik@vasereality.sk
Pri kontaktovaní emailom, Vás prosíme uvádzať na Vás i telefonický kontakt.
Ďalších viac ako 500 nehnuteľností nájdete na vasereality.sk
Apartmány na prízemí majú záhrady!!
Byt je situovaný na prízemí rozostavaného bytového domu s celkovou úžitkovou plochou 55,58m2
Byt pozostáva zo vstupu, kuchyne s jedálňou a obývacou izbou, kúpeľne, 1 spálne a krytej terasy - loggie.
K bytu prislúcha komora SP2 o rozlohe 5,10m2 v suteréne budovy a 2 vonkajšie parkovacie státia PM3 a PM4 s rozlohou 13,75m2.
BYT S2 – byt na prízemí, stred, západ
DISPOZĆIA BYTU:
Kuchyňa a obývacia izba: 22,10 m²
Vstup: 1,80 m²
Izba 1: 12,25 m²
Kúpeľňa: 5,10 m²
CELKOM: 41,25 m²
Krytá terasa-loggia: 5,10 m² (koeficient 0,75) = 3,83 m²
BYT S2 - CELKOM: 45,08 m²
PRÍSLUŠENSTVO K BYTU S2
Sklad v suteréne Sp2: 5,10 m² (koeficient 0,50) = 2,55 m²
Záhrada V2: 24,55 m² (koeficient 0,10) = 2,45 m²
Parkovacie miesto PM3: 13,75 m² (koeficient 0,20) = 2,75 m²
Parkovacie miesto PM4: 13,75 m² (koeficient 0,20) = 2,75 m²
PRÍSLUŠENSTVO Sp2, V2, PM3, PM4 (celková plocha): 57,15 m²
ÚŽITKOVÁ PLOCHA (príslušenstva po prepočte koeficientom): 10,50 m²
ÚŽITKOVÁ HODNOTA PLOCHY S2 (byt + príslušenstvo): 55,58 m²
Pri samotnej stavbe sú použité materiály najvyššej kvality. Fasádny polystyrén 10 cm, deliace steny (tehla), klimatizácia každej miestnosti na vykurovanie a chladenie. Podlahové kúrenie v kúpeľni (možno usporiadať v celom byte.) Trojvrstvové sklo, trojvrstvové parkety, bezpečnostné a protipožiarne dvere. Kupujúci má možnosť vybrať si dokončovacie materiály v bytoch. ( parkety, dlažba. )
Kúrenie: tepelné čerpadlá, v každej miestnosti je podlahové kúrenie, komín.
Sťahovanie: začiatok roka 2026.
Blízkosť všetkých zariadení potrebných pre každodenný život (obchody, školy, škôlky atď.)
Cena: 166.740 €
Viac informácií Vám radi poskytneme na telefónnom čísle 0905 436 650, alebo mailovej adrese moravcik@vasereality.sk
Pri kontaktovaní emailom, Vás prosíme uvádzať na Vás i telefonický kontakt.
Ďalších viac ako 500 nehnuteľností nájdete na vasereality.sk
|
| |||||||||||||||||||||||||||||||
Kontaktovať inzerenta e-mailom
Kontaktovať e-mailom môže iba overený užívateľ.
Overenie je zadarmo.
Vaše telefónne číslo *
Kontaktovať e-mailom môže iba overený užívateľ.
Overenie je zadarmo.
Vaše telefónne číslo *