Starší rodinný dom s veľkým pozemkom v kľudnej časti obce
- [16.11. 2025]Zmazať/ Upraviť/ Topovať
























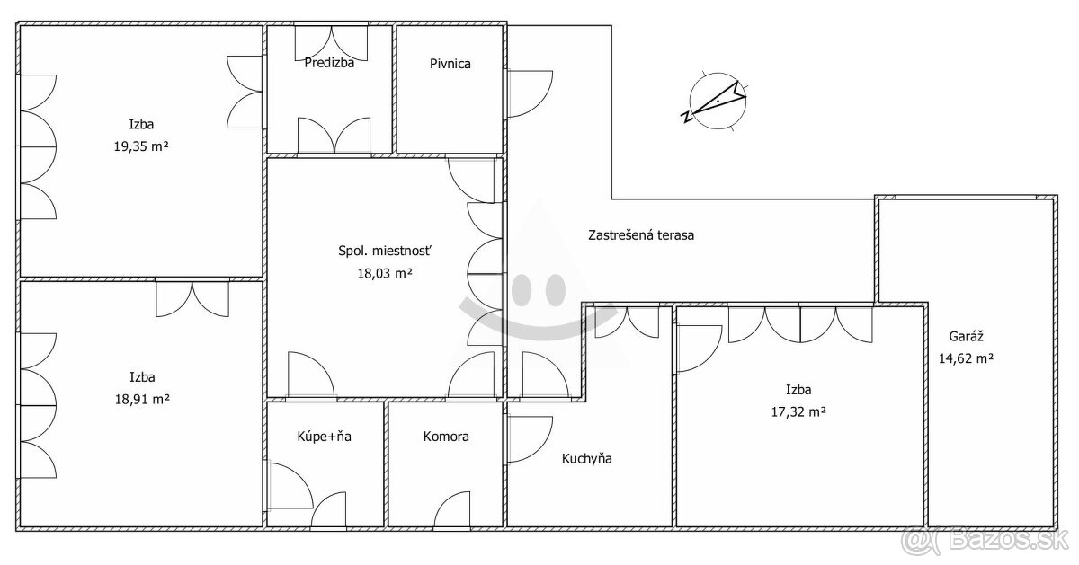
Vo výhradnom zastúpení majiteľa Vám ponúkame na predaj starší rodinný dom s veľkým pozemkom v obci Svätý Peter. Dom sa nachádza v kľudnej časti obce mimo hlavnej cesty. Celková plocha pozemku je 3418 m2 a zastavaná plocha predstavuje 153 m2. Rodinný dom je v pôvodnom stave a dispozične pozostáva z predizby, priechodnej obývačky, spálne, priechodnej spoločenskej miestnosti, kúpeľne s toaletou, kuchyne, veľkej komory a ďalšej spálne. Súčasťou domu je aj garáž.
V suteréne rodinného domu sa nachádza plynový kotol, kotol na drevo a elektrický bojler.
Strecha domu bola rekonštruovaná v r. 2012. Okrem tejto rekonštrukcie je dom v pôvodnom stave.
Na priestrannom pozemku sa nachádza plechová garáž, väčšia šopa a niekoľko chlievikov pre hospodárske zvieratá. Ďalej sa tu nachádza viacero ovocných stromov.
Bližšie informácie Vám rád poskytnem na telefónnom čísle 0948 457 557 a pomôžem Vám v komplexnom poradenstve, právnych službách a vo výbere najlepšej ponuky úveru v banke - bezplatne.
V suteréne rodinného domu sa nachádza plynový kotol, kotol na drevo a elektrický bojler.
Strecha domu bola rekonštruovaná v r. 2012. Okrem tejto rekonštrukcie je dom v pôvodnom stave.
Na priestrannom pozemku sa nachádza plechová garáž, väčšia šopa a niekoľko chlievikov pre hospodárske zvieratá. Ďalej sa tu nachádza viacero ovocných stromov.
Bližšie informácie Vám rád poskytnem na telefónnom čísle 0948 457 557 a pomôžem Vám v komplexnom poradenstve, právnych službách a vo výbere najlepšej ponuky úveru v banke - bezplatne.
|
| |||||||||||||||||||||||||||||||
Kontaktovať inzerenta e-mailom
Kontaktovať e-mailom môže iba overený užívateľ.
Overenie je zadarmo.
Vaše telefónne číslo *
Kontaktovať e-mailom môže iba overený užívateľ.
Overenie je zadarmo.
Vaše telefónne číslo *



