Na predaj priestranný 3-izbový byt s dvoma balkónmi v meste
- [16.11. 2025]Zmazať/ Upraviť/ Topovať

























Typ: 3-izbový byt
Ulica: Nábrežná
Obec: Nové Zámky
RK TRINITY Vám ponúka na predaj priestranný 3-izbový byt s dvoma balkónmi v meste Nové Zámky. Nachádza sa Nábrežnej ulici.
Byt:
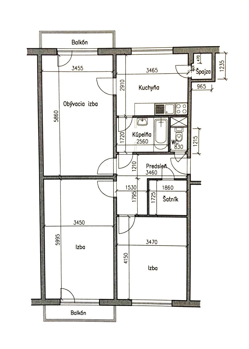
- úžitková plocha: 82,14m2
- nachádza sa na 3.poschodí
- orientovaný je na východ a západ
- byt je po kompletnej rekonštrukcii
- obývacia a detská izba disponuje klimatizáciou
- zabezpečený je bezpečnostnými dverami
- k bytu prislúcha pivnica
- bytovka je zateplená + nový výťah
Rekonštrukcia bytu:
- plastové okná, kuchynská linka vyrobená na mieru so vstavanými spotrebičmi, kúpeľňa so sanitou, stropy, omietky, menené rozvody elektriny, vody, laminátové podlahy, zrenovované parkety v spáľni, dlažba, interiérové a vchodové dvere, znížené stropy so zabudovanými svetlami v kúpeľni, na chodbe a toalete, rolldor skrine v spáľni, vstavaná skriňa na chodbe...
Dispozícia:
- vstupná chodba, kuchyňa, komora, obývacia izba s výstupom na balkón, spáľňa, detská izba s výstupom na balkón, šatník, kúpeľňa a samostatná toaleta
Výhody:
- vyhľadávaná lokalita
- v blízkosti sa nachádza ZŠ, MŠ, lekári, lekáreň, ihriská, hrádza, reštaurácie, centrum obchodov: Billa, Lidl, Biedronka ..........
- dobrí susedia
Cena: 143.000.-€
*vrátane všetkých poplatkov spojených s predajom nehnuteľnosti
Čo nás odlišuje od iných realitných kancelárii?
- v cene nehnuteľnosti máte (rezervačné zmluvy, kúpne zmluvy, poplatky na katastri) vyhotové u Autorizovaného Advokáta
- vybavíme za Vás prepis všetkých energií (voda, plyn, elektrina)
- spolupracujeme s najlepšími znalcami, geodetmi, advokátmi
- vieme vyhotoviť ,,potvrdenie trhovej ceny,, potrebné pri dedičskom konaní
- zabezpečíme financovanie nehnuteľnosti cez ktorúkoľvek BANKU
Status: aktívne
Vlastníctvo: osobné
Úžitková plocha: 82.14 m2
Podlahová plocha: 82.14 m2
Stav: úplne prerobený
Počet izieb: 3
Typ budovy: panelová stavba
Balkón: áno
Pivnica: áno
Verejné vonkajšie parkovanie: áno
Špajza: áno
Výťah: áno
Poschodie: 3
Celková plocha: 82.14 m2
Počet balkónov: 2
Inžinierske siete: áno
Internet: áno
Optická sieť: áno
Ulica: Nábrežná
Obec: Nové Zámky
RK TRINITY Vám ponúka na predaj priestranný 3-izbový byt s dvoma balkónmi v meste Nové Zámky. Nachádza sa Nábrežnej ulici.
Byt:
- úžitková plocha: 82,14m2
- nachádza sa na 3.poschodí
- orientovaný je na východ a západ
- byt je po kompletnej rekonštrukcii
- obývacia a detská izba disponuje klimatizáciou
- zabezpečený je bezpečnostnými dverami
- k bytu prislúcha pivnica
- bytovka je zateplená + nový výťah
Rekonštrukcia bytu:
- plastové okná, kuchynská linka vyrobená na mieru so vstavanými spotrebičmi, kúpeľňa so sanitou, stropy, omietky, menené rozvody elektriny, vody, laminátové podlahy, zrenovované parkety v spáľni, dlažba, interiérové a vchodové dvere, znížené stropy so zabudovanými svetlami v kúpeľni, na chodbe a toalete, rolldor skrine v spáľni, vstavaná skriňa na chodbe...
Dispozícia:
- vstupná chodba, kuchyňa, komora, obývacia izba s výstupom na balkón, spáľňa, detská izba s výstupom na balkón, šatník, kúpeľňa a samostatná toaleta
Výhody:
- vyhľadávaná lokalita
- v blízkosti sa nachádza ZŠ, MŠ, lekári, lekáreň, ihriská, hrádza, reštaurácie, centrum obchodov: Billa, Lidl, Biedronka ..........
- dobrí susedia
Cena: 143.000.-€
*vrátane všetkých poplatkov spojených s predajom nehnuteľnosti
Čo nás odlišuje od iných realitných kancelárii?
- v cene nehnuteľnosti máte (rezervačné zmluvy, kúpne zmluvy, poplatky na katastri) vyhotové u Autorizovaného Advokáta
- vybavíme za Vás prepis všetkých energií (voda, plyn, elektrina)
- spolupracujeme s najlepšími znalcami, geodetmi, advokátmi
- vieme vyhotoviť ,,potvrdenie trhovej ceny,, potrebné pri dedičskom konaní
- zabezpečíme financovanie nehnuteľnosti cez ktorúkoľvek BANKU
Status: aktívne
Vlastníctvo: osobné
Úžitková plocha: 82.14 m2
Podlahová plocha: 82.14 m2
Stav: úplne prerobený
Počet izieb: 3
Typ budovy: panelová stavba
Balkón: áno
Pivnica: áno
Verejné vonkajšie parkovanie: áno
Špajza: áno
Výťah: áno
Poschodie: 3
Celková plocha: 82.14 m2
Počet balkónov: 2
Inžinierske siete: áno
Internet: áno
Optická sieť: áno
|
| |||||||||||||||||||||||||||||||
Kontaktovať inzerenta e-mailom
Kontaktovať e-mailom môže iba overený užívateľ.
Overenie je zadarmo.
Vaše telefónne číslo *
Kontaktovať e-mailom môže iba overený užívateľ.
Overenie je zadarmo.
Vaše telefónne číslo *




