Na predaj priestranný a slnečný 2,5-izbový byt na Novohradsk
- [15.11. 2025]Zmazať/ Upraviť/ Topovať





























Tím VICTORY REALITY ponúka na predaj priestranný a slnečný 2,5-izbový byt na Novohradskej ulici v centre mesta Lučenec (lokalita Čínsky múr).
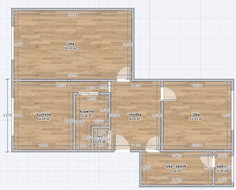
Byt má výmeru 64,7 m² a nachádza sa na 6. poschodí z 8 v zateplenom bytovom dome s výťahom.
DISPOZÍCIA BYTU:
• vstupná chodba
• kuchyňa so špajzou
• kúpeľňa s vaňou
• samostatné WC
• 2 samostatné izby
• polizba / šatník s veľkou roll-door skriňou a výstupom na lodžiu
• pivnica v suteréne
• orientácia východ – západ
VYBAVENIE A STAV:
• byt prešiel kompletnou rekonštrukciou
• plastové okná
• plávajúce podlahy v izbách, dlažba v kuchyni a kúpeľni
• murované jadro
• kuchynská linka na mieru so spotrebičmi
• interiérové dvere s obložkovými zárubňami
• nové stierky v celom byte
• nová elektroinštalácia a vodoinštalácia
BYTOVÝ DOM:
• zateplený bytový dom
• výťah
• vchod na čip
VÝHODY:
• byt sa predáva vrátane zariadenia
• vynikajúca poloha priamo v centre mesta
• kompletná občianska vybavenosť v pešej dostupnosti: obchody, školy, škôlky, zdravotné strediská, služby, MHD
• bez nutnosti ďalších investícií – vhodný na okamžité bývanie aj ako investičný byt na prenájom
NÁZOR MAKLÉRA:
Exkluzívne bývanie v centre mesta, ktoré spája výnimočnú lokalitu, kompletnú občiansku vybavenosť a pohodlný mestský život. Byt ponúka krásny výhľad na mesto a poskytuje maximálny komfort bez ďalších investícií.
CENA NEHNUTEĽNOSTI ZAHŔŇA:
províziu realitnej kancelárie
kompletný právny servis:
- rezervačná zmluva
- kúpna zmluva
- návrh na vklad do katastra
úhradu správneho poplatku za vklad vlastníckeho práva
osvedčenie podpisov na kúpnej zmluve
protokolárne odovzdanie nehnuteľnosti vrátane prepisu energií
Byt má výmeru 64,7 m² a nachádza sa na 6. poschodí z 8 v zateplenom bytovom dome s výťahom.
DISPOZÍCIA BYTU:
• vstupná chodba
• kuchyňa so špajzou
• kúpeľňa s vaňou
• samostatné WC
• 2 samostatné izby
• polizba / šatník s veľkou roll-door skriňou a výstupom na lodžiu
• pivnica v suteréne
• orientácia východ – západ
VYBAVENIE A STAV:
• byt prešiel kompletnou rekonštrukciou
• plastové okná
• plávajúce podlahy v izbách, dlažba v kuchyni a kúpeľni
• murované jadro
• kuchynská linka na mieru so spotrebičmi
• interiérové dvere s obložkovými zárubňami
• nové stierky v celom byte
• nová elektroinštalácia a vodoinštalácia
BYTOVÝ DOM:
• zateplený bytový dom
• výťah
• vchod na čip
VÝHODY:
• byt sa predáva vrátane zariadenia
• vynikajúca poloha priamo v centre mesta
• kompletná občianska vybavenosť v pešej dostupnosti: obchody, školy, škôlky, zdravotné strediská, služby, MHD
• bez nutnosti ďalších investícií – vhodný na okamžité bývanie aj ako investičný byt na prenájom
NÁZOR MAKLÉRA:
Exkluzívne bývanie v centre mesta, ktoré spája výnimočnú lokalitu, kompletnú občiansku vybavenosť a pohodlný mestský život. Byt ponúka krásny výhľad na mesto a poskytuje maximálny komfort bez ďalších investícií.
CENA NEHNUTEĽNOSTI ZAHŔŇA:
províziu realitnej kancelárie
kompletný právny servis:
- rezervačná zmluva
- kúpna zmluva
- návrh na vklad do katastra
úhradu správneho poplatku za vklad vlastníckeho práva
osvedčenie podpisov na kúpnej zmluve
protokolárne odovzdanie nehnuteľnosti vrátane prepisu energií
|
| |||||||||||||||||||||||||||||||
Kontaktovať inzerenta e-mailom
Kontaktovať e-mailom môže iba overený užívateľ.
Overenie je zadarmo.
Vaše telefónne číslo *
Kontaktovať e-mailom môže iba overený užívateľ.
Overenie je zadarmo.
Vaše telefónne číslo *








