STAVEBNÉ POZEMKY NA LIPTOVE
- [15.11. 2025]Zmazať/ Upraviť/ Topovať












Ponúkame Vám na predaj pozemky na skok do prírody v novom projekte na kraji dedinky PODTUREŇ vzdialenej od Liptovského Mikuláša cca 7km.
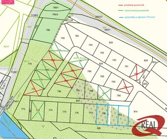
Projekt je zameraný na výstavbu rodinných domov na pozemkoch o výmere 508-1003m2.
Pozemky budú vybavené prípojkami na vodu, elektrinu a kanalizáciu.
Súčasťou výstavby sietí bude vybudovaná asfaltová prístupová cesta ako aj verejné osvetlenie.
Všetky pozemky sú ROVINATÉ!!!
OKOLIE:
- výborné napojenie na diaľnicu D1.
- Liptovský Mikuláš cca 7min autom
- Termálny prameň Liptovský ján
- Jánska dolina
- Liptovská Mara
- Liptovský hrad
- archeologické múzeum
- aquaparky Tatralandia a Bešeňová
- lyžiarske stredisko Jasná a Opalisko
- Demänová
- turistické trasy
VYBAVENOSŤ:
- potraviny COOP Jednota
- materská škola
- železničná stanica
- Futbalové ihrisko
- reštaurácia/pizzéria
Cena: 123,-Eur/m2
Info: Michal Toriška
tel. 0904 905 148
email: mtoriska@qreal.sk
Projekt je zameraný na výstavbu rodinných domov na pozemkoch o výmere 508-1003m2.
Pozemky budú vybavené prípojkami na vodu, elektrinu a kanalizáciu.
Súčasťou výstavby sietí bude vybudovaná asfaltová prístupová cesta ako aj verejné osvetlenie.
Všetky pozemky sú ROVINATÉ!!!
OKOLIE:
- výborné napojenie na diaľnicu D1.
- Liptovský Mikuláš cca 7min autom
- Termálny prameň Liptovský ján
- Jánska dolina
- Liptovská Mara
- Liptovský hrad
- archeologické múzeum
- aquaparky Tatralandia a Bešeňová
- lyžiarske stredisko Jasná a Opalisko
- Demänová
- turistické trasy
VYBAVENOSŤ:
- potraviny COOP Jednota
- materská škola
- železničná stanica
- Futbalové ihrisko
- reštaurácia/pizzéria
Cena: 123,-Eur/m2
Info: Michal Toriška
tel. 0904 905 148
email: mtoriska@qreal.sk
|
| |||||||||||||||||||||||||||||||
Kontaktovať inzerenta e-mailom
Kontaktovať e-mailom môže iba overený užívateľ.
Overenie je zadarmo.
Vaše telefónne číslo *
Kontaktovať e-mailom môže iba overený užívateľ.
Overenie je zadarmo.
Vaše telefónne číslo *