Nebytový priestor BA Dúbravka, Cabanova ulica, 81,45 m2
- [15.11. 2025]Zmazať/ Upraviť/ Topovať




























ABSOLUTE REAL / Útulný nebytový priestor v BA – Dúbravke, Cabanova ulica, 81.45 m2
Realitná kancelária ABSOLUTE REAL v zastúpení majiteľa predáva nebytový priestor o rozlohe 81.45 m2 v lokalite Bratislava Dúbravka na ulici Cabanova.
Priestory sú vhodné ako obchodné priestory, kancelária, prevádzka na služby – masér, kaderníctvo, manikúra, joga atď.
Lokalita:
● Dobrá občianska vybavenosť – Billa, Kraj potravín, Saratov, školy, škôlky, športový areál, zdravotné stredisko, les, kostol, banka, trh, reštaurácie, kaviarne
● Ľahké napojenie na mestskú diaľnicu
● MHD
● Verejné parkovanie
Byt:
● 1/8 podlažie, VZS orientácia
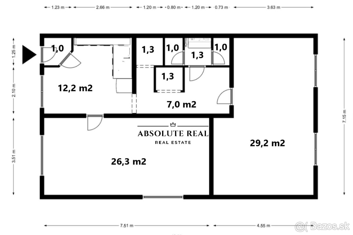
● Dispozícia: izba 26,3 m2, Izba 29,3 m2, samostatná kuchyňa 12,2 m2, zádverie 1,0 m2, chodba 7,0 m2, 2x sprchový kút, 2x WC, kúpeľňa
● Práčka
● Indukčná varná doska, elektrická rúra, 2x chladnička s mrazničkou
● Plastové okná, žalúzie, sieťky, vonkajšie rolety
● Lino parkety + dlažba
● Optický internet
● Predáva sa aj spoluvlastnícky podiel na pozemku
● Mesačné náklady 270 € správca + elektrina podľa potreby
● Voľný ihneď, možnosť prevziať podnájomníkov v prípade záujmu
Bytový dom:
● Výťah
● Energetický certifikát B
Cena:
● 189.000 € vrátane servisu realitnej kancelárie a advokáta. DOHODA NA CENE MOŽNÁ.
Realitná kancelária ABSOLUTE REAL vám pri prevode vlastníckeho práva zabezpečí:
- vypracovanie rezervačnej zmluvy
- bezplatné poradenstvo s našim hypotekárnym špecialistom v prípade potreby
- vypracovanie kúpnej zmluvy advokátom, zrýchlené katastrálne konanie do 20 dní
- vypracovanie návrhu na vklad do katastra nehnuteľností advokátom
- osobnú asistenciu pri úkonoch spojených s notárom, bankou a katastrom
- osobnú účasť pri úkonoch spojených s protokolárnym odovzdaním nehnuteľnosti
- úhradu správneho poplatku vo výške 100 EUR za návrh na vklad vlastníckeho práva do katastra nehnuteľností
Tešíme sa na obhliadku s vami!
PS: Potrebujete najskôr predať svoju nehnuteľnosť? Radi vám s tým pomôžeme.))
Realitná kancelária ABSOLUTE REAL v zastúpení majiteľa predáva nebytový priestor o rozlohe 81.45 m2 v lokalite Bratislava Dúbravka na ulici Cabanova.
Priestory sú vhodné ako obchodné priestory, kancelária, prevádzka na služby – masér, kaderníctvo, manikúra, joga atď.
Lokalita:
● Dobrá občianska vybavenosť – Billa, Kraj potravín, Saratov, školy, škôlky, športový areál, zdravotné stredisko, les, kostol, banka, trh, reštaurácie, kaviarne
● Ľahké napojenie na mestskú diaľnicu
● MHD
● Verejné parkovanie
Byt:
● 1/8 podlažie, VZS orientácia
● Dispozícia: izba 26,3 m2, Izba 29,3 m2, samostatná kuchyňa 12,2 m2, zádverie 1,0 m2, chodba 7,0 m2, 2x sprchový kút, 2x WC, kúpeľňa
● Práčka
● Indukčná varná doska, elektrická rúra, 2x chladnička s mrazničkou
● Plastové okná, žalúzie, sieťky, vonkajšie rolety
● Lino parkety + dlažba
● Optický internet
● Predáva sa aj spoluvlastnícky podiel na pozemku
● Mesačné náklady 270 € správca + elektrina podľa potreby
● Voľný ihneď, možnosť prevziať podnájomníkov v prípade záujmu
Bytový dom:
● Výťah
● Energetický certifikát B
Cena:
● 189.000 € vrátane servisu realitnej kancelárie a advokáta. DOHODA NA CENE MOŽNÁ.
Realitná kancelária ABSOLUTE REAL vám pri prevode vlastníckeho práva zabezpečí:
- vypracovanie rezervačnej zmluvy
- bezplatné poradenstvo s našim hypotekárnym špecialistom v prípade potreby
- vypracovanie kúpnej zmluvy advokátom, zrýchlené katastrálne konanie do 20 dní
- vypracovanie návrhu na vklad do katastra nehnuteľností advokátom
- osobnú asistenciu pri úkonoch spojených s notárom, bankou a katastrom
- osobnú účasť pri úkonoch spojených s protokolárnym odovzdaním nehnuteľnosti
- úhradu správneho poplatku vo výške 100 EUR za návrh na vklad vlastníckeho práva do katastra nehnuteľností
Tešíme sa na obhliadku s vami!
PS: Potrebujete najskôr predať svoju nehnuteľnosť? Radi vám s tým pomôžeme.))
|
| |||||||||||||||||||||||||||||||
Kontaktovať inzerenta e-mailom
Kontaktovať e-mailom môže iba overený užívateľ.
Overenie je zadarmo.
Vaše telefónne číslo *
Kontaktovať e-mailom môže iba overený užívateľ.
Overenie je zadarmo.
Vaše telefónne číslo *







