880a Pozemky a haly v priemyselnom parku pri Košiciach
- [14.11. 2025]Zmazať/ Upraviť/ Topovať












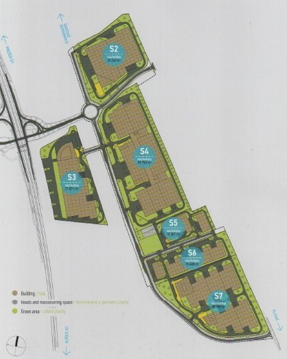
Ponúkame Vám
- stavebné pozemky s prípojkami na všetky médiá a asfaltovou prístupovou komunikáciou. (Minimálna rozloha 1 ha.)
- pomoc pri vybavovaní územného a stavebného povolenia na Vami požadovanú halu,
- možnosť výstavby haly podľa Vašich potrieb.
Umiestnenie: okrajová časť obce smer Prešov
Popis:
Logisticko – priemyselný park s rozlohou takmer 40 ha leží v polovici vzdialenosti medzi jestvujúcimi
diaľničnými križovatkami na D1 – Budimír a Lemešany, na hlavnej sídelno rozvojovej osi Košice – Prešov.
Hlavný príjazd do Logisticko-priemyselného parku je z diaľnice D1
Veľmi dobre napojiteľnosť na siete TI – elektrická energia, pitná voda, kanalizácia, a plyn.
V areály sa počíta okrem prístupových a obslužných komunikácii aj s plochou pre statickú dopravu, zeleň
a zázemie pre zamestnancov a návštevníkov (služby, stravovanie, prechodné ubytovanie a pod.)
Dostupnosť:
12 km od centra Košíc 18 km od centra Prešova 98 km od poľských hraníc 97 km od ukrajinských hraníc 38 km od maďarských hraníc 21 km od košického letiska 27 km od železničnej stanice Haniska
Využitie:
Logistika, nezávadná výroba, obchod, služby a distribúcia na medzinárodnej úrovni.
Svojou polohou dáva záujemcom možnosť umiestniť svoj biznis na križovatke dôležitých obchodných ciest
strednej a východnej Európy.
Počet obyvateľov v okruhu do 50 km od priemyselného parku je cca 1,3 mil.
- stavebné pozemky s prípojkami na všetky médiá a asfaltovou prístupovou komunikáciou. (Minimálna rozloha 1 ha.)
- pomoc pri vybavovaní územného a stavebného povolenia na Vami požadovanú halu,
- možnosť výstavby haly podľa Vašich potrieb.
Umiestnenie: okrajová časť obce smer Prešov
Popis:
Logisticko – priemyselný park s rozlohou takmer 40 ha leží v polovici vzdialenosti medzi jestvujúcimi
diaľničnými križovatkami na D1 – Budimír a Lemešany, na hlavnej sídelno rozvojovej osi Košice – Prešov.
Hlavný príjazd do Logisticko-priemyselného parku je z diaľnice D1
Veľmi dobre napojiteľnosť na siete TI – elektrická energia, pitná voda, kanalizácia, a plyn.
V areály sa počíta okrem prístupových a obslužných komunikácii aj s plochou pre statickú dopravu, zeleň
a zázemie pre zamestnancov a návštevníkov (služby, stravovanie, prechodné ubytovanie a pod.)
Dostupnosť:
12 km od centra Košíc 18 km od centra Prešova 98 km od poľských hraníc 97 km od ukrajinských hraníc 38 km od maďarských hraníc 21 km od košického letiska 27 km od železničnej stanice Haniska
Využitie:
Logistika, nezávadná výroba, obchod, služby a distribúcia na medzinárodnej úrovni.
Svojou polohou dáva záujemcom možnosť umiestniť svoj biznis na križovatke dôležitých obchodných ciest
strednej a východnej Európy.
Počet obyvateľov v okruhu do 50 km od priemyselného parku je cca 1,3 mil.
|
| |||||||||||||||||||||||||||||||
Kontaktovať inzerenta e-mailom
Kontaktovať e-mailom môže iba overený užívateľ.
Overenie je zadarmo.
Vaše telefónne číslo *
Kontaktovať e-mailom môže iba overený užívateľ.
Overenie je zadarmo.
Vaše telefónne číslo *
Podobné inzeráty
Stavebný pozemok pri centre-Košice-Juh, Slnečná ulica 773m2 - [15.11. 2025]Typ: Pozemok pre rodinné domy
Ulica: Slnečná
Mestská časť: Juh
Obec: Košice-Juh
video-obhliadka na tomto linku: https://lnk.sk/gjnhl
Ing. Miroslav Klimek, PhD. zo spoločnosti INSPIREAL Vám ponúka na predaj stavebný pozemok priamo v Košiciach, so všetkými inžinierskými sieťami v ...
1 €
Košice
040 01
040 01
11 x
Označiť zlý inzerát Chybnú kategóriu Ohodnotiť užívateľa Zmazať/Upraviť/Topovať
Pozemok v m. č. Košice – Barca 13150 m2 pri letisku - [15.11. 2025]Na priemyselné využitie - napr. výrobná hala
Ponúkame na predaj investičný pozemok v lokalite Košice – Barca pri areáli letiska
Pozemok sa nachádza za Faureciou, má rozlohu 13150 m2. Je vhodný na priemyselné využitie.
Pozemok je momentálne vedený ako orná pôda.
GPS: 48.674017° 21.223710°
...
66 €
Košice
040 01
040 01
54 x
Označiť zlý inzerát Chybnú kategóriu Ohodnotiť užívateľa Zmazať/Upraviť/Topovať
947b Komerčný pozemok Košice - Šaca - [14.11. 2025]Umiestnenie: Košice - Šaca, medzi obytnou zónou a areálom USS. Podľa platného projektu rýchlostnej komunikácie R2 sa pozemok následne ocitne vedľa R2. Projekt R2 zároveň obsahuje vybudovanie nového prístupu k pozemku. (viď mapa a foto). V súčasnosti vedie k pozemku poľná cesta na parcele vo vlastníc ...
21 €
Košice
040 01
040 01
37 x
Označiť zlý inzerát Chybnú kategóriu Ohodnotiť užívateľa Zmazať/Upraviť/Topovať
NA PREDAJ - ORNÁ PÔDA – BIDOVCE - [14.11. 2025]ID:9391
Ponúkame na predaj pozemok v k. ú. obce Bidovce:
- obec je vzdialená cca 15 km od Košíc,
- pozemok je evidovaný ako orná pôda,
- jeho výmera je 5 271 m²
- pozemok sa nachádza v blízkosti dialnice D1,
- vhodný ako investícia.
CENA: 16,-EUR/m2
Tel. maklér: 0918 370 447
Infolin ...
16 €
Košice
040 01
040 01
44 x
Označiť zlý inzerát Chybnú kategóriu Ohodnotiť užívateľa Zmazať/Upraviť/Topovať
RealityKolesár predáva pozemok 543m2 Bidovce KE okolie - [14.11. 2025]RealityKolesár predáva pozemok 543 m2, Bidovce, KE okolie
Pozemok 543 m2 sa nachádza v starej časti medzi domami v obci Bidovce s elektrickou prípojkou na pozemku, na ceste sa nachádza kanál aj vodovod. Šírka pozemku 16 m hĺbka 34 m. Do centra obce je kúsok.
Cena: 84.900,-€. V prípade záujmu ...
84 900 €
Košice
040 01
040 01
44 x
Označiť zlý inzerát Chybnú kategóriu Ohodnotiť užívateľa Zmazať/Upraviť/Topovať
POZEMOK KOŠICE PANORÁMA 441 m2 cena len 100 eur m2 - [14.11. 2025]Na predaj stavebný pozemok pozemok susedí z novopostaveným rodinným domom o výmere 441 m2 na Vysnom Opatskom časť Heringes. Elektricka prípojka teraz vŕtaná studňa v hodnote 7000 eur na pozemku. Stavebné práce urobené za 30 000 eur zbúranie stavby postavenie oporného múru
44 000 €
Košice
040 01
040 01
63 x
Označiť zlý inzerát Chybnú kategóriu Ohodnotiť užívateľa Zmazať/Upraviť/Topovať
Pozemok s chatkou na podnikanie aj relax | Vyšné Opátske - [14.11. 2025]Typ: Pozemok na rekreáciu
Ulica: Osiková
Obec: Košice-Vyšné Opátske
Ponúkame na predaj nehnuteľnosť vo vyhľadávanej lokalite Vyšné Opátske (Košice) – 6-árový, slnečný a upravený pozemok s nádherným panoramatickým výhľadom na mesto, ktorý v sebe spája rekreačný potenciál s výnimočnou investičnou ...
75 000 €
Košice
040 01
040 01
79 x
Označiť zlý inzerát Chybnú kategóriu Ohodnotiť užívateľa Zmazať/Upraviť/Topovať
Pozemok v záhradkárskej oblasti | Košice - Kavečany - [14.11. 2025]Typ: Pozemky - pre rodinné domy
Obec: Košice-Kavečany
Invest & Real | Valéria Piroško-Kiraľová Vám exkluzívne ponúka na predaj stavebný pozemok o výmere 1472 m² v časti Košice - Kavečany.
Pozemok sa nachádza na kopci v tichej záhradkárskej oblasti a je umiestnený mimo zastavaného územi ...
235 000 €
Košice
040 01
040 01
47 x
Označiť zlý inzerát Chybnú kategóriu Ohodnotiť užívateľa Zmazať/Upraviť/Topovať
Pozemky neďaleko Košíc – obec Mudrovce - [14.11. 2025]ID:6798
Ponúkame na predaj pozemky v obci Mudrovce:
- obec je vzdialená len 25 km od Košíc,
- pozemky sú situované v tichej lokalite v blízkosti lesa,
- sú rovinaté, udržiavané, momentálne evidované ako záhrada,
- v súčasnosti sú na predaj už len 2 pozemky a to: 3 - 416 m2, 4 - 422 m2,
...
21 500 €
Košice
040 01
040 01
44 x
Označiť zlý inzerát Chybnú kategóriu Ohodnotiť užívateľa Zmazať/Upraviť/Topovať
VEĽKÁ ZĽAVA Stavebný pozemok v k. ú. obce Rudník - [14.11. 2025]ID:6291
- nachádza sa v katastrálnom území obce Rudník, vzdialený len 15 minút od Košíc,
- krásne tiché prostredie ponúka príjemné súkromie v lone prírody,
- okolie poskytuje množstvo príležitosti pre oddych a rekreáciu,
- rozloha pozemku je 1 139 m2,
- inžinierske siete v blízkosti poze ...
90 000 €
Košice
040 01
040 01
47 x
Označiť zlý inzerát Chybnú kategóriu Ohodnotiť užívateľa Zmazať/Upraviť/Topovať