APARTMÁNY LITMANOVÁ - 3 izbové apartmány SKI Litmanová
- [14.11. 2025]Zmazať/ Upraviť/ Topovať





























Realitná kancelária GARANT REAL Vám exkluzívne ponúka na predaj jedinečný projekt v lone prekrásnej prírody a zároveň v centre športového vyžitia.
PROJEKT:
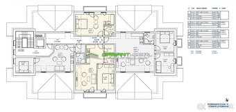
Navrhované objekty apartmánových domov sú identické s rozdielnym funkčným využitím suterénu.
V objekte „A“ bola v 1. nadzemnom podlaží pôvodne naplánovaná reštaurácia a v objekte „B“ recepcia, obchodné priestrory. Tieto podlažia boli zmenené na apartmány v kombinácii so skladovacími kobkami. V objekte „C sú v 1. nadzemnom podlaží umiestnené garáže a skladovacie kobky k apartmánom.
Každý apartmánový dom je 3 podlažný s využitým podkrovím sedlovej strechy, obsahuje 22, resp. 25 apartmánov.
Budova „A“, (ktorá sa nachádza najbližšie k lyžiarskemu svahu) a budova „B" bude v krátkej dobe skolaudovaná. Aktuálne prebieha aj výstavba budovy„C", ktorej apartmány sú už v predaji !
MIESTO REALIZÁCIE:
Katastrálne územie obce Litmanová – severne od obce, mimo intravilánu obce, východne od potoka Rozdiel - prítok Litmanovského potoka, vrámci existujúceho lyžiarskeho areálu.
TECHNICKÉ VYBAVENIE:
Objekt po architektonickej stránke je navrhovaný podhorského charakteru so sedlovou krížovou strechou, s vikiermi so sklonom 45 stupňov, v tvarosloví kúpeľných stavieb.
Konštrukčný systém stavby je navrhovaný stenového systému v kombinácií so železobetónovými stĺpmi. Strop a preklady monolitické železobetónové.
Murivo je navrhované z murovacích tvárnic POROTHERM (obvodové murivo hr. 400mm, stredné nosné múry 250mm, priečky hr. 100 mm a 150 mm – protihlukové priečky) na maltu vápenno – cementovú.
Strecha je navrhovaná sedlová s dreveným hambákovým krovom s krytinou - TONDACH s kremičitým posypom.
Schodište je navrhované monolitické železobetónové s nášľapnou keramickou vrstvou.
Výťah je navrhovaný osobný s výťahovou šachtou 1400/1600mm - lanový osobný výťah typu SCHINDLER 3300 , nosnosť 400 kg, počet osôb 5
Dvere sú navrhované drevené. s oceľovou zárubňou, – laminované – systém BEN.
Okná a balkónové dvere sú navrhované plastové, s izolačným dvojskolm a obvodovým uzatváraním, prepážky sú riešené hr. 6 mm v rámci izolačného dvojskla.
Vykurovanie je navrhované elektrické – elektrickými vykurovacími rohožmi zn. HAKL s termostatom. TÚV bude zabezpečená ku všetkým zdravotechnickým zariadeniam s teplotou min. 45 – 50 stupňov celzia.
Elektroinštalácia - Všetky riešenia, návrh a montáž elektrického systému a komponentov sa bude riadiť platnými časťami IEC/VDE, STN normami.
Bližšie informácie nájdete na stránke: apartmanylitmanova.sk
V prípade záujmu nás kedykoľvek kontaktujte na tel. č. 0907 030 622 alebo na info@apartmanylitmanova.sk kde Vám zodpovieme na všetky otázky a dohodneme sa na ďalšom postupe v prípade, že budete mať záujem o niektorý z voľných apartmánov.
PROJEKT:
Navrhované objekty apartmánových domov sú identické s rozdielnym funkčným využitím suterénu.
V objekte „A“ bola v 1. nadzemnom podlaží pôvodne naplánovaná reštaurácia a v objekte „B“ recepcia, obchodné priestrory. Tieto podlažia boli zmenené na apartmány v kombinácii so skladovacími kobkami. V objekte „C sú v 1. nadzemnom podlaží umiestnené garáže a skladovacie kobky k apartmánom.
Každý apartmánový dom je 3 podlažný s využitým podkrovím sedlovej strechy, obsahuje 22, resp. 25 apartmánov.
Budova „A“, (ktorá sa nachádza najbližšie k lyžiarskemu svahu) a budova „B" bude v krátkej dobe skolaudovaná. Aktuálne prebieha aj výstavba budovy„C", ktorej apartmány sú už v predaji !
MIESTO REALIZÁCIE:
Katastrálne územie obce Litmanová – severne od obce, mimo intravilánu obce, východne od potoka Rozdiel - prítok Litmanovského potoka, vrámci existujúceho lyžiarskeho areálu.
TECHNICKÉ VYBAVENIE:
Objekt po architektonickej stránke je navrhovaný podhorského charakteru so sedlovou krížovou strechou, s vikiermi so sklonom 45 stupňov, v tvarosloví kúpeľných stavieb.
Konštrukčný systém stavby je navrhovaný stenového systému v kombinácií so železobetónovými stĺpmi. Strop a preklady monolitické železobetónové.
Murivo je navrhované z murovacích tvárnic POROTHERM (obvodové murivo hr. 400mm, stredné nosné múry 250mm, priečky hr. 100 mm a 150 mm – protihlukové priečky) na maltu vápenno – cementovú.
Strecha je navrhovaná sedlová s dreveným hambákovým krovom s krytinou - TONDACH s kremičitým posypom.
Schodište je navrhované monolitické železobetónové s nášľapnou keramickou vrstvou.
Výťah je navrhovaný osobný s výťahovou šachtou 1400/1600mm - lanový osobný výťah typu SCHINDLER 3300 , nosnosť 400 kg, počet osôb 5
Dvere sú navrhované drevené. s oceľovou zárubňou, – laminované – systém BEN.
Okná a balkónové dvere sú navrhované plastové, s izolačným dvojskolm a obvodovým uzatváraním, prepážky sú riešené hr. 6 mm v rámci izolačného dvojskla.
Vykurovanie je navrhované elektrické – elektrickými vykurovacími rohožmi zn. HAKL s termostatom. TÚV bude zabezpečená ku všetkým zdravotechnickým zariadeniam s teplotou min. 45 – 50 stupňov celzia.
Elektroinštalácia - Všetky riešenia, návrh a montáž elektrického systému a komponentov sa bude riadiť platnými časťami IEC/VDE, STN normami.
Bližšie informácie nájdete na stránke: apartmanylitmanova.sk
V prípade záujmu nás kedykoľvek kontaktujte na tel. č. 0907 030 622 alebo na info@apartmanylitmanova.sk kde Vám zodpovieme na všetky otázky a dohodneme sa na ďalšom postupe v prípade, že budete mať záujem o niektorý z voľných apartmánov.
|
| |||||||||||||||||||||||||||||||
Kontaktovať inzerenta e-mailom
Kontaktovať e-mailom môže iba overený užívateľ.
Overenie je zadarmo.
Vaše telefónne číslo *
Kontaktovať e-mailom môže iba overený užívateľ.
Overenie je zadarmo.
Vaše telefónne číslo *
Podobné inzeráty
APARTMÁNY LITMANOVÁ - 2 izbové apartmány v SKI Litmanová - [14.11. 2025]Realitná kancelária GARANT REAL Vám exkluzívne ponúka na predaj jedinečný projekt v lone prekrásnej prírody a zároveň v centre športového vyžitia.
PROJEKT:
Navrhované objekty apartmánových domov sú identické s rozdielnym funkčným využitím suterénu.
V objekte „A“ bola v 1. na ...
66 417 €
Stará Ľubovňa
065 31
065 31
28 x
Označiť zlý inzerát Chybnú kategóriu Ohodnotiť užívateľa Zmazať/Upraviť/Topovať
APARTMÁNY LITMANOVÁ - 1 izbové apartmány v SKI Litmanová - [14.11. 2025]Realitná kancelária GARANT REAL Vám exkluzívne ponúka na predaj jedinečný projekt v lone prekrásnej prírody a zároveň v centre športového vyžitia.
PROJEKT:
Navrhované objekty apartmánových domov sú identické s rozdielnym funkčným využitím suterénu.
V objekte „A“ bola v 1. na ...
59 291 €
Stará Ľubovňa
065 31
065 31
28 x
Označiť zlý inzerát Chybnú kategóriu Ohodnotiť užívateľa Zmazať/Upraviť/Topovať








