Priestranný 2-izbový byt ideálny na rekonštrukciu Bratislava
- [14.11. 2025]Zmazať/ Upraviť/ Topovať








Ponúkame na predaj 2-izbový byt na Svätoplukovej ulici v Bratislave, v mestskej časti Ružinov - Nivy.
Byt je v pôvodnom stave s príležitosťou kompletnej rekonštrukcie podľa vlastných predstáv.
Informácie o byte a dome:
• 2. poschodie / 3
• Tehlový bytový dom
• Bez výťahu
• Byt orientovaný na dve strany: na Svätoplukovu ulicu a do dvora
• Svetlý byt s príjemnou atmosférou v obľúbenej lokalite
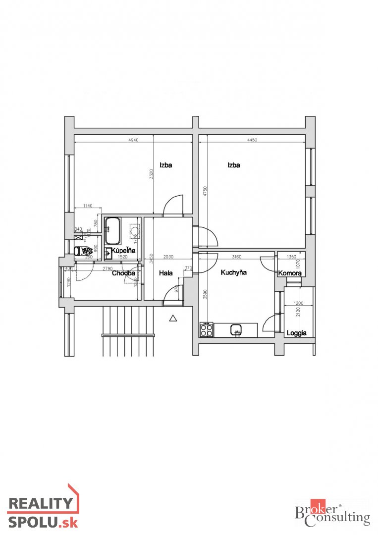
Výmera bytu:
izba 17,29 m², izba 21,14 m², hala 6,64 m², kuchyňa 11,34 m², komora 1,44 m², chodba 4,80 m², kúpeľňa 2,69 m², WC 1,19 m².
Podlahová plocha bytu bez pivnice 66,53 m², pivnica má 7,25 m².
Vypočítaná celková podlahová plocha 73,78 m².
Loggia 2,54 m².
Byt sa nachádza v obľúbenej a vyhľadávanej lokalite 500 bytov v Bratislave v k.ú. Nivy. Táto lokalita ponúka kompletnú občiansku vybavenosť – v pešej dostupnosti sa nachádzajú obchody, trhovisko, školy, škôlky, reštaurácie, zdravotnícke zariadenia aj športoviská. Výborné dopravné napojenie a dostupnosť MHD zabezpečujú rýchle a pohodlné spojenie so všetkými časťami mesta.
Byt je vhodný:
• Pre jednotlivcov alebo páry, ktoré hľadajú priestranný byt neďaleko centra a chcú si ho zrekonštruovať podľa vlastných predstáv
• Štartovací by pre mladú rodinu s deťmi, ktorá ocení všetky vymoženosti veľkomesta a zároveň má rýchly prístup k prírode a voľnočasovým aktivitám
• Pre investorov, ktorí hľadajú byt na rekonštrukciu s potenciálom prenájmu alebo následného predaja v atraktívnej lokalite
• Pre ľudí, ktorí uprednostňujú bývanie s dobrou dostupnosťou služieb a MHD
V cene sú započítané právne služby súvisiace s prevodom nehnuteľnosti, správne poplatky na katastri a poplatky za overenie podpisov u notára. V prípade záujmu zabezpečíme rýchle a nezávislé poradenstvo v oblasti financovania kúpy a získanie najvýhodnejších podmienok pre hypotekárny úver podľa podmienok kupujúceho.
Obhliadku je možné dohodnúť na našej bezplatnej zákazníckej linke.
Byt je v pôvodnom stave s príležitosťou kompletnej rekonštrukcie podľa vlastných predstáv.
Informácie o byte a dome:
• 2. poschodie / 3
• Tehlový bytový dom
• Bez výťahu
• Byt orientovaný na dve strany: na Svätoplukovu ulicu a do dvora
• Svetlý byt s príjemnou atmosférou v obľúbenej lokalite
Výmera bytu:
izba 17,29 m², izba 21,14 m², hala 6,64 m², kuchyňa 11,34 m², komora 1,44 m², chodba 4,80 m², kúpeľňa 2,69 m², WC 1,19 m².
Podlahová plocha bytu bez pivnice 66,53 m², pivnica má 7,25 m².
Vypočítaná celková podlahová plocha 73,78 m².
Loggia 2,54 m².
Byt sa nachádza v obľúbenej a vyhľadávanej lokalite 500 bytov v Bratislave v k.ú. Nivy. Táto lokalita ponúka kompletnú občiansku vybavenosť – v pešej dostupnosti sa nachádzajú obchody, trhovisko, školy, škôlky, reštaurácie, zdravotnícke zariadenia aj športoviská. Výborné dopravné napojenie a dostupnosť MHD zabezpečujú rýchle a pohodlné spojenie so všetkými časťami mesta.
Byt je vhodný:
• Pre jednotlivcov alebo páry, ktoré hľadajú priestranný byt neďaleko centra a chcú si ho zrekonštruovať podľa vlastných predstáv
• Štartovací by pre mladú rodinu s deťmi, ktorá ocení všetky vymoženosti veľkomesta a zároveň má rýchly prístup k prírode a voľnočasovým aktivitám
• Pre investorov, ktorí hľadajú byt na rekonštrukciu s potenciálom prenájmu alebo následného predaja v atraktívnej lokalite
• Pre ľudí, ktorí uprednostňujú bývanie s dobrou dostupnosťou služieb a MHD
V cene sú započítané právne služby súvisiace s prevodom nehnuteľnosti, správne poplatky na katastri a poplatky za overenie podpisov u notára. V prípade záujmu zabezpečíme rýchle a nezávislé poradenstvo v oblasti financovania kúpy a získanie najvýhodnejších podmienok pre hypotekárny úver podľa podmienok kupujúceho.
Obhliadku je možné dohodnúť na našej bezplatnej zákazníckej linke.
|
| |||||||||||||||||||||||||||||||
Kontaktovať inzerenta e-mailom
Kontaktovať e-mailom môže iba overený užívateľ.
Overenie je zadarmo.
Vaše telefónne číslo *
Kontaktovať e-mailom môže iba overený užívateľ.
Overenie je zadarmo.
Vaše telefónne číslo *