Rodinný dom Valča, novostavba v štádiu holodomu
- TOP - [20.11. 2025]Zmazať/ Upraviť/ Topovať























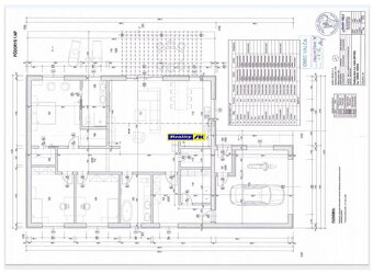
[Rodinný dom Valča na predaj, novostavba v štádiu dokončenia holodomu sa nachádza v pokojnej časti na periférii obce v smere na sloviansku dolinu. Leží na rovinatom pozemku s rozlohou 850m2. Pozostáva z vstupnej chodby, troch samostatných izieb, obývacej haly, kuchyne, kúpeľne s WC a ďalšieho samostatného WC, vstavanej garáže. Orientácia stavby je západ-juh. Stavba je momentálne v štádiu dostavby holodomu. Technický popis je uvedený nižšie. Veľkou výhodou je lokalita, kvalita stavby ako aj rozvinutá infraštruktúra a vybavenosť obce Valča.
> -murivo Ytong 300mm
> -bez vonkajšieho zateplenia
> -strecha sedlová hliníkový falcovaný plech
> -okná a dvere vchodové (Hliníkové okna a dvere so zatepleného profilu
> S dvojzložkovým stredovým tesnením a prídavnou tepelnou vložkou Aluprof MB79N SI určený pre nízkoenergetickú výstavbu.Izolačné trojsklo s teplým rámikom Swisspacer a Ug = 0,5 w/m2k)
> -garážová dvojbrána PEMAT, panel ITP 40mm antracit, tichý systém, celoobvodové tesnenie brány
> -dom napojený na el.
> -príprava na inteligenciu LOXONE ale tiež alternatíva bez inteligencie
> -príprava na kamerový systém
> -fotovoltaika panely plus menič 4,2KW Goodwe
V cene je zahrnutý kompletný právny servis a poplatky spojené z katastrálnym konaním. V prípade záujmu o obhliadku, alebo ďalšie informácie ma kontaktujte na nižšie uvedenom tel.čísle.
Zastavaná plocha: 230m²
Obytná plocha: 205m²
Celková rozloha: 805m²
Úžitková plocha: 205m²
Vlastníctvo: osobné
Stav: holopriestor
Odvoz odpadu: áno
Voda: verejný vodovod
El. napätie: 230/400V
Plyn: nie
Kanalizácia: áno
Internet: wifi
Kúpeľňa: vaňa a sprchovací kút
Vykurovanie: vlastné - elektrické
Balkón: nie
Terasa: áno - 1
Garáž: áno
Parkovanie: áno
Inžinierske siete: áno
Postavené z: Ytong
Energetický certifikát: áno
Predzáhradka: neuvedené
Bezbariérový prístup : áno
Okná: hliníkové
Terén: rovina
> -murivo Ytong 300mm
> -bez vonkajšieho zateplenia
> -strecha sedlová hliníkový falcovaný plech
> -okná a dvere vchodové (Hliníkové okna a dvere so zatepleného profilu
> S dvojzložkovým stredovým tesnením a prídavnou tepelnou vložkou Aluprof MB79N SI určený pre nízkoenergetickú výstavbu.Izolačné trojsklo s teplým rámikom Swisspacer a Ug = 0,5 w/m2k)
> -garážová dvojbrána PEMAT, panel ITP 40mm antracit, tichý systém, celoobvodové tesnenie brány
> -dom napojený na el.
> -príprava na inteligenciu LOXONE ale tiež alternatíva bez inteligencie
> -príprava na kamerový systém
> -fotovoltaika panely plus menič 4,2KW Goodwe
V cene je zahrnutý kompletný právny servis a poplatky spojené z katastrálnym konaním. V prípade záujmu o obhliadku, alebo ďalšie informácie ma kontaktujte na nižšie uvedenom tel.čísle.
Zastavaná plocha: 230m²
Obytná plocha: 205m²
Celková rozloha: 805m²
Úžitková plocha: 205m²
Vlastníctvo: osobné
Stav: holopriestor
Odvoz odpadu: áno
Voda: verejný vodovod
El. napätie: 230/400V
Plyn: nie
Kanalizácia: áno
Internet: wifi
Kúpeľňa: vaňa a sprchovací kút
Vykurovanie: vlastné - elektrické
Balkón: nie
Terasa: áno - 1
Garáž: áno
Parkovanie: áno
Inžinierske siete: áno
Postavené z: Ytong
Energetický certifikát: áno
Predzáhradka: neuvedené
Bezbariérový prístup : áno
Okná: hliníkové
Terén: rovina
|
| |||||||||||||||||||||||||||||||
Kontaktovať inzerenta e-mailom
Kontaktovať e-mailom môže iba overený užívateľ.
Overenie je zadarmo.
Vaše telefónne číslo *
Kontaktovať e-mailom môže iba overený užívateľ.
Overenie je zadarmo.
Vaše telefónne číslo *


