Novostavba Slovany, okres Martin, rodinný dom - bungalov
- [14.11. 2025]Zmazať/ Upraviť/ Topovať


























🌲 VYSNÍVANÉ BÝVANIE POD HORAMI – BUNGALOV S VEĽKÝM POZEMKOM LEN 10 MIN OD MARTINA!
Hľadáte pokojné bývanie s výbornou dostupnosťou do mesta, krásnymi výhľadmi a veľkým súkromím?
Táto ponuka je presne pre vás!
V exkluzívnej štvrti Borovice (Slovany, okres Martin) ponúkam na predaj 4-izbový bungalov na výnimočne veľkom a slnečnom pozemku – 702 m², s ktorým v tejto lokalite nemá konkurenciu.
✅ HLAVNÉ VÝHODY:
Len 10 min autom od centra Martina
Veľký rovinatý pozemok – 702 m² (najväčší v štvrti!)
Tiché a bezpečné prostredie s krásnou prírodou na dosah
Očarujúce výhľady na hory a okolitú zeleň
Moderná dispozícia – ideálne pre rodinu
Možnosť dokončiť podľa vlastných predstáv
🏡 PARAMETRE DOMU:
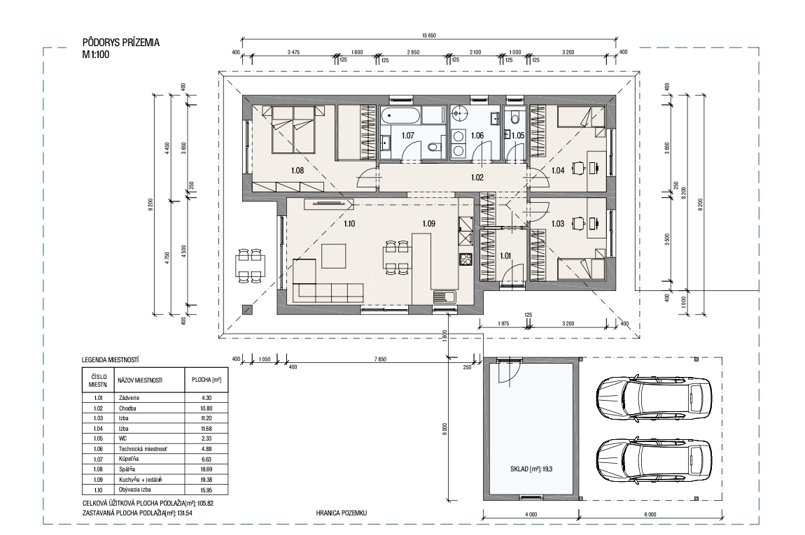
Úžitková plocha: 106 m²
Zastavaná plocha: 132 m²
Pozemok: 702 m² (rovinatý, s ideálnou orientáciou)
Dispozícia:
Vstupná chodba so zádverím
Priestranná obývačka s kuchyňou a výstupom na terasu
3 nepriechodné izby
Kúpeľňa a samostatné WC
Technická miestnosť
Dom je rozdelený na dennú a nočnú zónu – komfort pre každého člena rodiny
🛠️ AKTUÁLNY STAV:
Dom je vo fáze hrubej stavby:
Postavené múry a priečky
Zastrešený kvalitným dreveným krovom a škridlou
👉 Možnosť dokončenia do holodomu – bez starostí! Cena holodomu: 185 000 €
💡 INŽINIERSKE SIETE:
Elektrina
Obecný vodovod a kanalizácia (po kolaudácii)
Dočasne riešené vlastnou studňou a žumpou
📍 LOKALITA – BOROVICE (SLOVANY):
Pokojná a novovybudovaná štvrť v lone prírody
Krásne prostredie s lesmi, lúkami a čistým vzduchom
Ideálne miesto na rodinné bývanie aj relax po práci
Centrum Martin len 10 minút autom
Predávam ako súkromná osoba – bez sprostredkovateľov a zbytočných poplatkov.
🏡 Príďte sa presvedčiť osobne – možno je toto váš nový domov!
📞 Volajte alebo píšte pre obhliadku – rád vám poskytnem všetky informácie.
+421 904 391 211
+421 915 261 661
Hľadáte pokojné bývanie s výbornou dostupnosťou do mesta, krásnymi výhľadmi a veľkým súkromím?
Táto ponuka je presne pre vás!
V exkluzívnej štvrti Borovice (Slovany, okres Martin) ponúkam na predaj 4-izbový bungalov na výnimočne veľkom a slnečnom pozemku – 702 m², s ktorým v tejto lokalite nemá konkurenciu.
✅ HLAVNÉ VÝHODY:
Len 10 min autom od centra Martina
Veľký rovinatý pozemok – 702 m² (najväčší v štvrti!)
Tiché a bezpečné prostredie s krásnou prírodou na dosah
Očarujúce výhľady na hory a okolitú zeleň
Moderná dispozícia – ideálne pre rodinu
Možnosť dokončiť podľa vlastných predstáv
🏡 PARAMETRE DOMU:
Úžitková plocha: 106 m²
Zastavaná plocha: 132 m²
Pozemok: 702 m² (rovinatý, s ideálnou orientáciou)
Dispozícia:
Vstupná chodba so zádverím
Priestranná obývačka s kuchyňou a výstupom na terasu
3 nepriechodné izby
Kúpeľňa a samostatné WC
Technická miestnosť
Dom je rozdelený na dennú a nočnú zónu – komfort pre každého člena rodiny
🛠️ AKTUÁLNY STAV:
Dom je vo fáze hrubej stavby:
Postavené múry a priečky
Zastrešený kvalitným dreveným krovom a škridlou
👉 Možnosť dokončenia do holodomu – bez starostí! Cena holodomu: 185 000 €
💡 INŽINIERSKE SIETE:
Elektrina
Obecný vodovod a kanalizácia (po kolaudácii)
Dočasne riešené vlastnou studňou a žumpou
📍 LOKALITA – BOROVICE (SLOVANY):
Pokojná a novovybudovaná štvrť v lone prírody
Krásne prostredie s lesmi, lúkami a čistým vzduchom
Ideálne miesto na rodinné bývanie aj relax po práci
Centrum Martin len 10 minút autom
Predávam ako súkromná osoba – bez sprostredkovateľov a zbytočných poplatkov.
🏡 Príďte sa presvedčiť osobne – možno je toto váš nový domov!
📞 Volajte alebo píšte pre obhliadku – rád vám poskytnem všetky informácie.
+421 904 391 211
+421 915 261 661
|
| |||||||||||||||||||||||||||||||
Kontaktovať inzerenta e-mailom
Kontaktovať e-mailom môže iba overený užívateľ.
Overenie je zadarmo.
Vaše telefónne číslo *
Kontaktovať e-mailom môže iba overený užívateľ.
Overenie je zadarmo.
Vaše telefónne číslo *





