08 - 2-izbový apartmán v srdci Rajeckých Teplíc
- [14.11. 2025]Zmazať/ Upraviť/ Topovať
















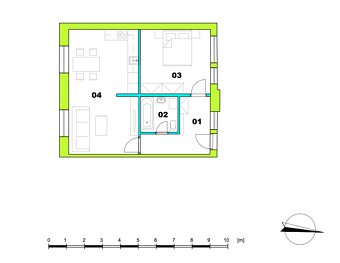
Ponúkame Vám na predaj 2-izbový apartmán priamo v centre mesta Rajecké Teplice, pár krokov od kúpeľov Aphrodite, s podlahovou plochou 53,11 m² a pivnicou 3,10 m² na 3. NP. Apartmán ponúka presvetlenú dennú zónu orientovanú na JZ, praktickú spálňu a komfort v pešom dosahu všetkého, čo v Tepliciach milujete. Ideálna voľba na pokojné bývanie aj investičné prenajímanie.
Cena: 173 523 € s DPH
Možnosť dokúpenia parkovacieho miesta v cene 15 000 € s DPH.
Objekt prešiel kompletnou rekonštrukciou v r. 2025. Apartmány sa predávajú v štandarde.
Lokalita:
Rajecké Teplice sú ikonické kúpeľné mestečko v Rajeckej doline – kombinujú celoročné wellness (Aphrodite), pokojné centrum, zeleň a výbornú dostupnosť do/zo Žiliny. V pešej vzdialenosti nájdeš spa & wellness, reštaurácie, kaviarne, potraviny, park a služby. Okolie ponúka cyklotrasy, turistiku a lyžovačku v širšom okolí, takže lokalita funguje 12 mesiacov v roku.
Prečo je to skvelé miesto na bývanie a investíciu
Lokalita: Pešia dostupnosť.
Wellness & relax: Aphrodite a hotelové služby zvyšujú dopyt po krátkodobých pobytoch.
Príroda na dosah: Rajecká dolina, Súľovské skaly, Lietavský hrad, Čičmany – výlety pre rodiny aj športovcov.
Dostupnosť: Žilina autom - 20 min.
Celoročné využitie.
Investičné plusy
Stabilný domáci dopyt po kúpeľných a víkendových pobytoch.
Krátkodobý prenájom funguje aj mimo hlavnú sezónu vďaka kúpeľom.
Stav nehnuteľnosti - Kompletná rekonštrukcia. Cena: 173 523 €. Nájdete na stránke realityMGM.sk pod ID ZA015940. Call centrum tel: 0910 86 11 86.
Cena: 173 523 € s DPH
Možnosť dokúpenia parkovacieho miesta v cene 15 000 € s DPH.
Objekt prešiel kompletnou rekonštrukciou v r. 2025. Apartmány sa predávajú v štandarde.
Lokalita:
Rajecké Teplice sú ikonické kúpeľné mestečko v Rajeckej doline – kombinujú celoročné wellness (Aphrodite), pokojné centrum, zeleň a výbornú dostupnosť do/zo Žiliny. V pešej vzdialenosti nájdeš spa & wellness, reštaurácie, kaviarne, potraviny, park a služby. Okolie ponúka cyklotrasy, turistiku a lyžovačku v širšom okolí, takže lokalita funguje 12 mesiacov v roku.
Prečo je to skvelé miesto na bývanie a investíciu
Lokalita: Pešia dostupnosť.
Wellness & relax: Aphrodite a hotelové služby zvyšujú dopyt po krátkodobých pobytoch.
Príroda na dosah: Rajecká dolina, Súľovské skaly, Lietavský hrad, Čičmany – výlety pre rodiny aj športovcov.
Dostupnosť: Žilina autom - 20 min.
Celoročné využitie.
Investičné plusy
Stabilný domáci dopyt po kúpeľných a víkendových pobytoch.
Krátkodobý prenájom funguje aj mimo hlavnú sezónu vďaka kúpeľom.
Stav nehnuteľnosti - Kompletná rekonštrukcia. Cena: 173 523 €. Nájdete na stránke realityMGM.sk pod ID ZA015940. Call centrum tel: 0910 86 11 86.
|
| |||||||||||||||||||||||||||||||
Kontaktovať inzerenta e-mailom
Kontaktovať e-mailom môže iba overený užívateľ.
Overenie je zadarmo.
Vaše telefónne číslo *
Kontaktovať e-mailom môže iba overený užívateľ.
Overenie je zadarmo.
Vaše telefónne číslo *