PREDAJ - investičná príležitosť - historocká budova Banská Š
- [14.11. 2025]Zmazať/ Upraviť/ Topovať


























PREDAJ: Rozsiahla historická budova v centre Banskej Štiavnice s možnosťou prestavby na apartmány.
DOBRÉ REALITY – silná slovenská realitná sieť ponúka na predaj historickú budovu v centre Banskej Štiavnice na ulici Andreja Kmeťa.
PREDMET PONUKY
Východne orientovaná priestranná budova so zastavanou plochou 589m2 sa nachádza priamo v centre Banskej Štiavnice. Umiestnenie objektu v rámci mesta zabezpečuje veľmi dobrú dostupnosť a možnosť parkovania na priľahlých verejných parkoviskách.
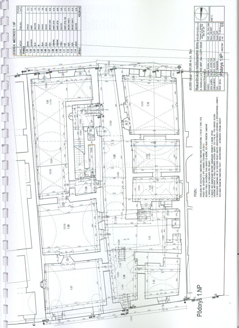
Hlavný vstup do budovy je priamo z ulice Andreja Kmeťa a je možnosť vybudovať aj zadný vstup zo Striebornej ulice. Z ulice A. Kmeťa vedú aj vstupy do dvoch plne zrekonštruovaných obchodných priestorov, ktoré sa v budove nachádzajú. Dispozične budova pozostáva z jedného prízemného podlažia, troch nadzemných podlaží a podkrovia . V Strede budovy sa nachádza menšie nádvorie.
Presné dispozičné rozloženie jednotlivých podlaží aj s rozmermi je uvedené v pôdorysoch vo fotogalérií.
Podľa dostupných informácií bola budova postavená približne v roku 1673.
DISPOZIĆNÉ RIEŠENIE:
1.PP: podlahová plocha: 138,53m2- skladové pivničné priestory s klenbovými stropmi
1.NP: podlahová plocha: 422,64m2 - dva samostatné obchodné priestory, skladové priestory pozostávajúce z viacerých miestností s klenbovými stropmi
2.NP: podlahová plocha: 407,82m2 a 3.NP: podlahová plocha: 428,09m2 - tvoria vstupné haly a miestnosti, ktoré boli v minulosti využívané ako bytové priestory.
Podkrovie : v podkroví sa nachádza rozľahlý priestor s drevenými hradami a sedlovou strechou s plechovou krytinou.
Celková podlahová plocha objektu je 1397,08m2
Inžinierske siete:
- prístupová cesta mestská, dlažbová
- elektrina priamo v budove
- pitná voda z verejného vodovodu,
- plynová prípojka
- verejná kanalizácia
Konštrukčné a materiálové prvky:
- Nosné murivo celého objektu je prevažne z kameňa.
- Stropná konštrukcia nad 1.PP je klenbová, kamenná, nad 1.NP až 3.NP je drevený trámový strop s rovným podhľadom
- Konštrukcia strechy: sedlová s nerovnakou výškou hrebeňa, strešná krytina je pozinkovaný plech.
- Vonkajšia omietka vápenno-cementová, hladká
- Okná: pôvodné drevené
- Dvere: pôvodné drevené rámové
- Vnútorné schodisko kamenné
- Vykurovanie – v zrekonštruovaných obchodných priestoroch zabezpečuje plynový kotol
Doplňujúce informácie:
- Nehnuteľnosť je národnou kultúrnou pamiatkou.
LOKALITA
Banská Štiavnica sa nachádzajú v srdci Štiavnických vrchov a je vyhľadávaným kultúrnym a historickým centrom v rámci Stredného Slovenska. Poskytuje plnú občiansku vybavenosť s množstvom obchodov, reštaurácií a bohatým kultúrnym programom. Je veľmi dobre dostupná z Bratislavy (do 2 hodín diaľnicou R1).
Oblasť poskytuje široké možnosti celoročného kultúrneho vyžitia, turistiky, cykloturistiky, rekreácie, letných aj zimných športov. K okoliu Banskej Štiavnice neodmysliteľne pat
DOBRÉ REALITY – silná slovenská realitná sieť ponúka na predaj historickú budovu v centre Banskej Štiavnice na ulici Andreja Kmeťa.
PREDMET PONUKY
Východne orientovaná priestranná budova so zastavanou plochou 589m2 sa nachádza priamo v centre Banskej Štiavnice. Umiestnenie objektu v rámci mesta zabezpečuje veľmi dobrú dostupnosť a možnosť parkovania na priľahlých verejných parkoviskách.
Hlavný vstup do budovy je priamo z ulice Andreja Kmeťa a je možnosť vybudovať aj zadný vstup zo Striebornej ulice. Z ulice A. Kmeťa vedú aj vstupy do dvoch plne zrekonštruovaných obchodných priestorov, ktoré sa v budove nachádzajú. Dispozične budova pozostáva z jedného prízemného podlažia, troch nadzemných podlaží a podkrovia . V Strede budovy sa nachádza menšie nádvorie.
Presné dispozičné rozloženie jednotlivých podlaží aj s rozmermi je uvedené v pôdorysoch vo fotogalérií.
Podľa dostupných informácií bola budova postavená približne v roku 1673.
DISPOZIĆNÉ RIEŠENIE:
1.PP: podlahová plocha: 138,53m2- skladové pivničné priestory s klenbovými stropmi
1.NP: podlahová plocha: 422,64m2 - dva samostatné obchodné priestory, skladové priestory pozostávajúce z viacerých miestností s klenbovými stropmi
2.NP: podlahová plocha: 407,82m2 a 3.NP: podlahová plocha: 428,09m2 - tvoria vstupné haly a miestnosti, ktoré boli v minulosti využívané ako bytové priestory.
Podkrovie : v podkroví sa nachádza rozľahlý priestor s drevenými hradami a sedlovou strechou s plechovou krytinou.
Celková podlahová plocha objektu je 1397,08m2
Inžinierske siete:
- prístupová cesta mestská, dlažbová
- elektrina priamo v budove
- pitná voda z verejného vodovodu,
- plynová prípojka
- verejná kanalizácia
Konštrukčné a materiálové prvky:
- Nosné murivo celého objektu je prevažne z kameňa.
- Stropná konštrukcia nad 1.PP je klenbová, kamenná, nad 1.NP až 3.NP je drevený trámový strop s rovným podhľadom
- Konštrukcia strechy: sedlová s nerovnakou výškou hrebeňa, strešná krytina je pozinkovaný plech.
- Vonkajšia omietka vápenno-cementová, hladká
- Okná: pôvodné drevené
- Dvere: pôvodné drevené rámové
- Vnútorné schodisko kamenné
- Vykurovanie – v zrekonštruovaných obchodných priestoroch zabezpečuje plynový kotol
Doplňujúce informácie:
- Nehnuteľnosť je národnou kultúrnou pamiatkou.
LOKALITA
Banská Štiavnica sa nachádzajú v srdci Štiavnických vrchov a je vyhľadávaným kultúrnym a historickým centrom v rámci Stredného Slovenska. Poskytuje plnú občiansku vybavenosť s množstvom obchodov, reštaurácií a bohatým kultúrnym programom. Je veľmi dobre dostupná z Bratislavy (do 2 hodín diaľnicou R1).
Oblasť poskytuje široké možnosti celoročného kultúrneho vyžitia, turistiky, cykloturistiky, rekreácie, letných aj zimných športov. K okoliu Banskej Štiavnice neodmysliteľne pat
|
| |||||||||||||||||||||||||||||||
Kontaktovať inzerenta e-mailom
Kontaktovať e-mailom môže iba overený užívateľ.
Overenie je zadarmo.
Vaše telefónne číslo *
Kontaktovať e-mailom môže iba overený užívateľ.
Overenie je zadarmo.
Vaše telefónne číslo *





