Predaj, rodinný dom, Tešedíkovo, okr. Šaľa, pozemok 813 m2
- [14.11. 2025]Zmazať/ Upraviť/ Topovať
























HLAVATÝ Reality v exkluzívnom zastúpení ponúka na predaj 3-izbový rodinný dom s úžitkovou plochou 97 m2 v obci Tešedíkovo, vzdialenej len 6 km od okresného mesta Šaľa.
POPIS:
Rodinný dom v pôvodnom stave sa nachádza na pozemku s rozlohou 813 m2. Obvodové múry a priečky sú postavené z pálenej a nepálenej tehly. Príprava teplej úžitkovej vody je zabezpečená elektrickým bojlerom v kúpeľni. Centrálne vykurovanie je radiátormi s napojením na plynový kotol v prístavbe v zadnej časti domu. V strednej časti pozemku sa pri dome nachádza altánok a murovaný skladový priestor. V zadnej časti je záhrada so studňou. Za pozemkom je rybník. Rodinný dom je napojený na všetky inžinierske siete (voda, elektrina, plyn a kanalizácia).
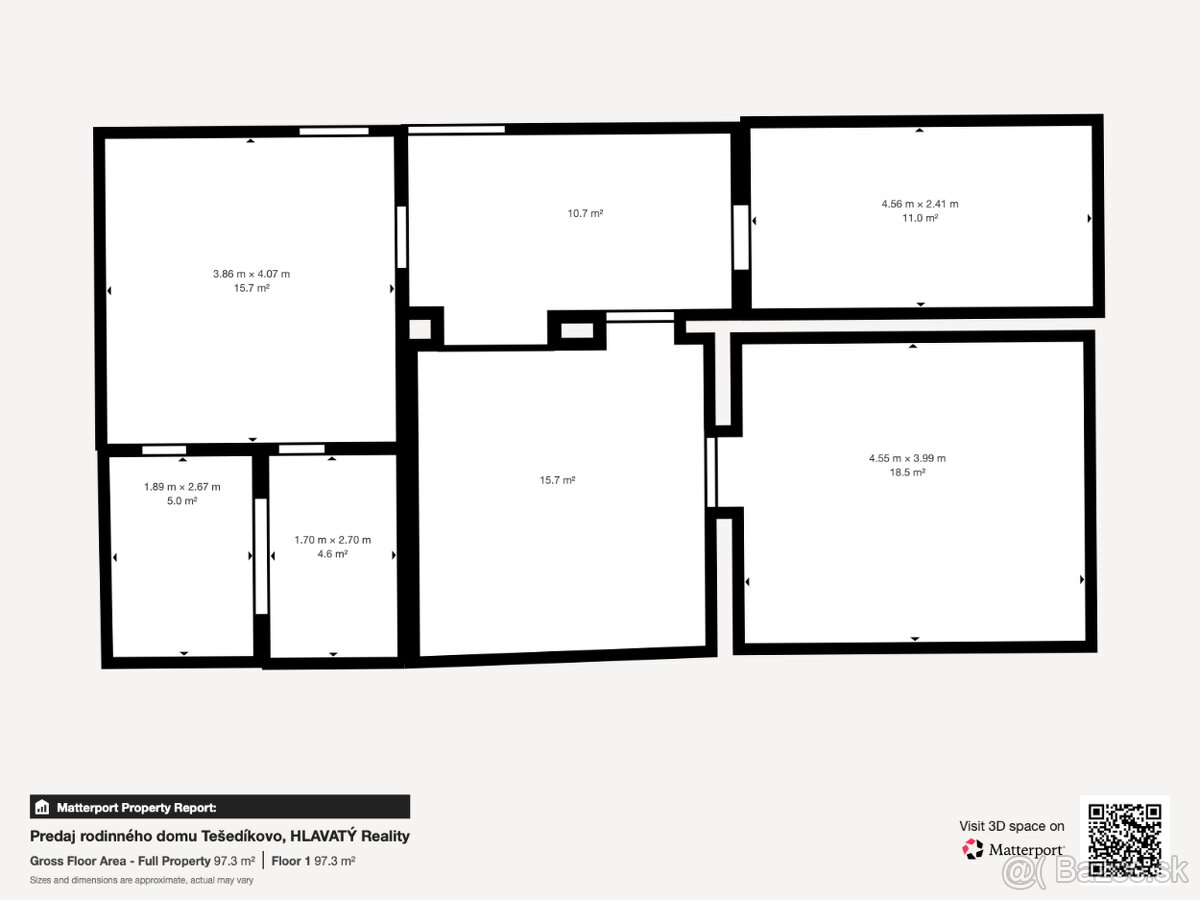
DISPOZIČNÉ RIEŠENIE:
Do domu sa dostaneme z dvora a dvere vedú priamo do kuchyne, kde sa nachádza vstup do kúpeľne a špajze. Z kuchyne je vstup do predsiene, kde je samostatná toaleta a ďalej pokračujeme do ďalších troch izieb.
Pre lepšiu predstavu o dispozičnom riešení si prosím pozrite virtuálnu prehliadku:
https://my.matterport.com/show/?m=MPsQ4MjngfN
POLOHA:
Rodinný dom je situovaný v pokojnej časti obce. Neďaleko sa nachádza kultúrny dom a centrum obce s obchodmi a cukrárňou. Obec Tešedíkovo má kompletnú občiansku vybavenosť – základnú školu, materské školy, kultúrny dom, nákupné centrum, potraviny, poštu, ...
NAŠE HODNOTENIE:
Rodinný dom v pôvodnom stave ponúka možnosť kompletnej rekonštrukcie podľa vlastných predstáv, kde môže vzniknúť ideálne miesto pre celoročné bývanie alebo víkendové využitie domu za účelom oddychu od ruchu mesta. Dostatočne veľký pozemok Vám umožní realizáciu úžitkovej ako aj okrasnej záhrady, ktorá Vám zabezpečí príjemný relax s rodinou a priateľmi. Ak teda hľadáte rodinný dom s postačujúcim pozemkom, ktorý sa nachádza neďaleko centra obce a to všetko za primeranú cenu, tak táto nehnuteľnosť je určená práve Vám!
Bližšie informácie Vám radi poskytneme na telefónnom čísle ... Zobraziť telefón.
Cena za nehnuteľnosť zahŕňa províziu, právny servis a správny poplatok na katastri. Pre našich klientov vybavíme prepis všetkých energií (voda, plyn, elektrina). Zároveň poskytujeme hypotekárne služby prostredníctvom GEPARD – hypotekárny broker kde Vám zabezpečíme najlepšiu ponuku na financovanie kúpy nehnuteľnosti formou hypotekárneho úveru v ktorejkoľvek banke.
POPIS:
Rodinný dom v pôvodnom stave sa nachádza na pozemku s rozlohou 813 m2. Obvodové múry a priečky sú postavené z pálenej a nepálenej tehly. Príprava teplej úžitkovej vody je zabezpečená elektrickým bojlerom v kúpeľni. Centrálne vykurovanie je radiátormi s napojením na plynový kotol v prístavbe v zadnej časti domu. V strednej časti pozemku sa pri dome nachádza altánok a murovaný skladový priestor. V zadnej časti je záhrada so studňou. Za pozemkom je rybník. Rodinný dom je napojený na všetky inžinierske siete (voda, elektrina, plyn a kanalizácia).
DISPOZIČNÉ RIEŠENIE:
Do domu sa dostaneme z dvora a dvere vedú priamo do kuchyne, kde sa nachádza vstup do kúpeľne a špajze. Z kuchyne je vstup do predsiene, kde je samostatná toaleta a ďalej pokračujeme do ďalších troch izieb.
Pre lepšiu predstavu o dispozičnom riešení si prosím pozrite virtuálnu prehliadku:
https://my.matterport.com/show/?m=MPsQ4MjngfN
POLOHA:
Rodinný dom je situovaný v pokojnej časti obce. Neďaleko sa nachádza kultúrny dom a centrum obce s obchodmi a cukrárňou. Obec Tešedíkovo má kompletnú občiansku vybavenosť – základnú školu, materské školy, kultúrny dom, nákupné centrum, potraviny, poštu, ...
NAŠE HODNOTENIE:
Rodinný dom v pôvodnom stave ponúka možnosť kompletnej rekonštrukcie podľa vlastných predstáv, kde môže vzniknúť ideálne miesto pre celoročné bývanie alebo víkendové využitie domu za účelom oddychu od ruchu mesta. Dostatočne veľký pozemok Vám umožní realizáciu úžitkovej ako aj okrasnej záhrady, ktorá Vám zabezpečí príjemný relax s rodinou a priateľmi. Ak teda hľadáte rodinný dom s postačujúcim pozemkom, ktorý sa nachádza neďaleko centra obce a to všetko za primeranú cenu, tak táto nehnuteľnosť je určená práve Vám!
Bližšie informácie Vám radi poskytneme na telefónnom čísle ... Zobraziť telefón.
Cena za nehnuteľnosť zahŕňa províziu, právny servis a správny poplatok na katastri. Pre našich klientov vybavíme prepis všetkých energií (voda, plyn, elektrina). Zároveň poskytujeme hypotekárne služby prostredníctvom GEPARD – hypotekárny broker kde Vám zabezpečíme najlepšiu ponuku na financovanie kúpy nehnuteľnosti formou hypotekárneho úveru v ktorejkoľvek banke.
|
| |||||||||||||||||||||||||||||||
Kontaktovať inzerenta e-mailom
Kontaktovať e-mailom môže iba overený užívateľ.
Overenie je zadarmo.
Vaše telefónne číslo *
Kontaktovať e-mailom môže iba overený užívateľ.
Overenie je zadarmo.
Vaše telefónne číslo *



