3 izbový byt s terasou, č. IIB_10J, v novostavbe na predaj,
- [13.11. 2025]Zmazať/ Upraviť/ Topovať





























3 izbový byt v novom developerskom projekte "Byty Ruppeldtova" na predaj.
Nachádza sa vo vyhľadávanej lokalite širšieho centra mesta Martin, konkrétne na ulici Ruppeldtova, podľa ktorej je projekt aj pomenovaný.
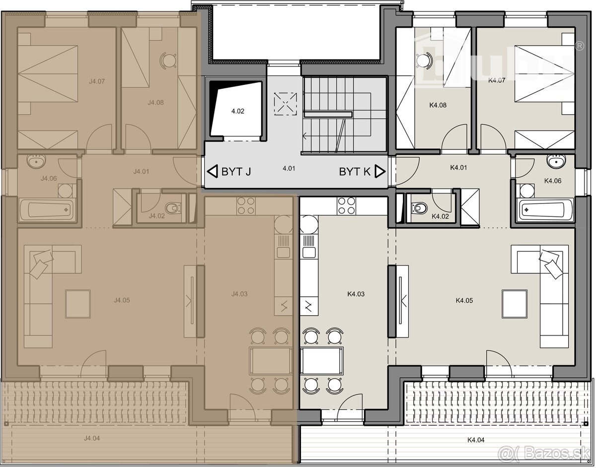
Ponúkaný 3 izbový byt II.B_10J, má celkovú výmeru 98,99 m2, (podlahová plocha bytu 78,20m2 + 19,52 m2 terasa+ 1,27 m2 pivnica), nachádza sa na 4/4 podlaží s výťahom.
Byty sú predávané s vyšším stredným štandardom, ktorý zahŕňa vstupné bezpečnostné dvere, interiérové dvere, omietky stien a stropov, laminátové podlahy, keramický obklad, dlažbu a sanitu, podlahové kúrenie, príprava na klimatizáciu, príprava pre vonkajšie žalúzie. Štandard neobsahuje kuchynskú linku, zariadenie bytu a svietidlá.
Súčasťou každého z bytu je priestranný balkón alebo terasa.
Zámerom tohto developerského projektu je vybudovať moderný bytový komplex, pozostávajúci zo šiestich bytových domov, celkom s 57 - mimi bytovými jednotkami, 7 - mimi komerčnými nebytovými priestormi, vrátane dostatočného počtu vnútorných a vonkajších parkovacích miest, spolu 6 garáží a 76 parkovacích miest.
Výstavba prvej etapy bola úspešne ukončená v roku 2024, všetky byty a nebytové priestory sú predané.
V druhej etape prebieha výstaba ďalších dvoch bytových domov Ruppeldtova I.B a Ruppeldtova II.B.
Bytový dom II.B, v ktorom sa nachádza aj tento byt, pozostáva z jednenástich bytových jednotiek (z čoho 6 bytov je trojizbových, dva byty sú 2 izbové s balkónmi a 3 byty sú dvojizbové s predzáhradkami).
Projekt vďaka svojej výnimočnej lokalite, ponúka kompletnú občiansku vybavenosť, ktorá zahŕňa v pešej dostupnosti niekoľkých minút školy, škôlky, potraviny, nákupné centrum, reštaurácie, a tiež nemocnicu, polikliniky a iné zdravotnícke zariadenia.
Momentálne je byt vo výstavbe, predpokladaný termín ukončenia a kolaudácie je koniec leta 2026.
Cena bytu je 263 600 € s DPH. K bytu je potrebné dokúpiť parkovacie miesto v cene 12 300 € s DPH.
V prípade záujmu o viac informácií ma kontaktujte: Mgr. Milan Valušek, tel. 0904 742 743, mail: valusek.m@bubyreality.sk, alebo na stránke bytyruppeldtova.sk
Nachádza sa vo vyhľadávanej lokalite širšieho centra mesta Martin, konkrétne na ulici Ruppeldtova, podľa ktorej je projekt aj pomenovaný.
Ponúkaný 3 izbový byt II.B_10J, má celkovú výmeru 98,99 m2, (podlahová plocha bytu 78,20m2 + 19,52 m2 terasa+ 1,27 m2 pivnica), nachádza sa na 4/4 podlaží s výťahom.
Byty sú predávané s vyšším stredným štandardom, ktorý zahŕňa vstupné bezpečnostné dvere, interiérové dvere, omietky stien a stropov, laminátové podlahy, keramický obklad, dlažbu a sanitu, podlahové kúrenie, príprava na klimatizáciu, príprava pre vonkajšie žalúzie. Štandard neobsahuje kuchynskú linku, zariadenie bytu a svietidlá.
Súčasťou každého z bytu je priestranný balkón alebo terasa.
Zámerom tohto developerského projektu je vybudovať moderný bytový komplex, pozostávajúci zo šiestich bytových domov, celkom s 57 - mimi bytovými jednotkami, 7 - mimi komerčnými nebytovými priestormi, vrátane dostatočného počtu vnútorných a vonkajších parkovacích miest, spolu 6 garáží a 76 parkovacích miest.
Výstavba prvej etapy bola úspešne ukončená v roku 2024, všetky byty a nebytové priestory sú predané.
V druhej etape prebieha výstaba ďalších dvoch bytových domov Ruppeldtova I.B a Ruppeldtova II.B.
Bytový dom II.B, v ktorom sa nachádza aj tento byt, pozostáva z jednenástich bytových jednotiek (z čoho 6 bytov je trojizbových, dva byty sú 2 izbové s balkónmi a 3 byty sú dvojizbové s predzáhradkami).
Projekt vďaka svojej výnimočnej lokalite, ponúka kompletnú občiansku vybavenosť, ktorá zahŕňa v pešej dostupnosti niekoľkých minút školy, škôlky, potraviny, nákupné centrum, reštaurácie, a tiež nemocnicu, polikliniky a iné zdravotnícke zariadenia.
Momentálne je byt vo výstavbe, predpokladaný termín ukončenia a kolaudácie je koniec leta 2026.
Cena bytu je 263 600 € s DPH. K bytu je potrebné dokúpiť parkovacie miesto v cene 12 300 € s DPH.
V prípade záujmu o viac informácií ma kontaktujte: Mgr. Milan Valušek, tel. 0904 742 743, mail: valusek.m@bubyreality.sk, alebo na stránke bytyruppeldtova.sk
|
| |||||||||||||||||||||||||||||||
Kontaktovať inzerenta e-mailom
Kontaktovať e-mailom môže iba overený užívateľ.
Overenie je zadarmo.
Vaše telefónne číslo *
Kontaktovať e-mailom môže iba overený užívateľ.
Overenie je zadarmo.
Vaše telefónne číslo *
Podobné inzeráty
3 izbový byt s terasou, č. IIB_11K, v novostavbe Byty Ruppel - [20.11. 2025]Ponúkam na predaj 3 izbový byt s terasou, v novom developerskom projekte "Byty Ruppeldtova".
Byt sa nachádza vo vyhľadávanej lokalite, v blízkosti univerzitnej nemocnice, na ulici Ruppeldtova, podľa ktorej je projekt aj pomenovaný.
Ponúkaný 3 izbový byt II.B_11K, má celkovú vým ...
263 600 €
Martin
036 01
036 01
1 x
Označiť zlý inzerát Chybnú kategóriu Ohodnotiť užívateľa Zmazať/Upraviť/Topovať
Posledný 2 izbový byt, č. IIB_3C, v novostavbe Byty Ruppeldt - [20.11. 2025]Posledný 2 izbový byt s predzáhradkou na predaj, v novom developerskom projekte "Byty Ruppeldtova".
Byt sa nachádza vo vyhľadávanej lokalite, v blízkosti univerzitnej nemocnice, na ulici Ruppeldtova, podľa ktorej je projekt aj pomenovaný.
Ponúkaný 2 izbový byt II.B_3C, má celkovú výmeru 70,84 m2, ...
163 600 €
Martin
036 01
036 01
1 x
Označiť zlý inzerát Chybnú kategóriu Ohodnotiť užívateľa Zmazať/Upraviť/Topovať
2 izbový byt v centre Martina, kompletná rekonštrukcia, na p - [20.11. 2025]Štýlový 2-izbový byt na predaj, tehlová bytovka, vyhľadávaná lokalite v centre Martina, na ulici L. Novomeského.
Byt prešiel kompletnou, vkusnou rekonštrukciou a predáva sa spolu so zariadením – stačí sa už len nasťahovať.
Podlahová plocha bytu je 54,16 m², k tomu balkón 4,30 m² a d ...
168 000 €
Martin
036 01
036 01
1 x
Označiť zlý inzerát Chybnú kategóriu Ohodnotiť užívateľa Zmazať/Upraviť/Topovať
2- izbový byt Martin - CENTRUM - KOMPLETNÁ REKONŠTRUKCIA bal - [20.11. 2025]ASTORIA Vám ponúka na predaj 2-izbový byt v centre Martina na ul. Thurzova o rozlohe 60 m2. Nachádza sa na 2. z 5 poschodí, je orientovaný na severnú (kuchyňa) a južnú (obývačka, spálňa) svetovú stranu. Byt prešiel kompletnou rekonštrukciou: murované jadro, nové stúpačky, rozvody elektriny, vo ...
139 900 €
Martin
036 01
036 01
36 x
Označiť zlý inzerát Chybnú kategóriu Ohodnotiť užívateľa Zmazať/Upraviť/Topovať
3 izbový zrekonštruovaný byt na predaj Vrútky - TOP - [20.11. 2025]Ponúkame Vám 3 izbový zrekonštruovaný byt na predaj meste Vrútky.
Byt sa nachádza na 2. poschodí z 2. bytového domu, ktorý rovnako ako byt prešiel rekonštrukciou v podobe zateplenia, výmeny rozvodov stupačiek. Výmera bytu je 61m2. Mesačné náklady sú vo výške 200€ vrátane energií. Byt je po rekon ...
140 000 €
Martin
036 01
036 01
36 x
Označiť zlý inzerát Chybnú kategóriu Ohodnotiť užívateľa Zmazať/Upraviť/Topovať
moderný 3-izbový byt v novostavbe - Martin - MALÁ HORA - TOP - [20.11. 2025]Ponúkame Vám na predaj moderný 3-izbový bytu v novostavbe v Martine (MALÁ HORA).
Nachádza sa na 1. poschodí v bytovke s výťahom.
Plocha 64m2 + 12m2 balkón.
Orientácia: západ a juh
Predáva sa kompletne zariadený.
K bytu prislúcha aj kopka na poschodí a veľká pivnica na prízemí.
Parkovanie pred ...
189 900 €
Martin
036 01
036 01
67 x
Označiť zlý inzerát Chybnú kategóriu Ohodnotiť užívateľa Zmazať/Upraviť/Topovať
REZERVOVANÉ - NA PREDAJ 2.izb. byt na SEVERE - [19.11. 2025]REZERVOVANÉ - Moderný 2-izbový byt po kompletnej rekonštrukcii na Severe
Ponúkame na predaj priestranný a presvetlený 2-izbový byt s celkovou výmerou 60 m², nachádzajúci sa v obľúbenej lokalite na Severe v Martine. Byt je situovaný na 3. poschodí päťposchodového bytového domu bez výťahu a ponúka a ...
145 900 €
Martin
036 01
036 01
43 x
Označiť zlý inzerát Chybnú kategóriu Ohodnotiť užívateľa Zmazať/Upraviť/Topovať
REZERVOVANÝ 3 izbový byt s nadštandardnou loggiou, Martin – - [19.11. 2025]Ponúkame na predaj 3-izbový byt v centre Martina, na ul. Thurzova. Bytový dom je zateplený, dobre udržiavaný.
Vzhľadom k lokalite je samozrejmosťou výborná občianska vybavenosť - obchody a služby, školské zariadenia, lekári, ihriská a pod.. Výhodou je aj pešia dostupnosť vlakovej a autobusovej st ...
153 000 €
Martin
036 01
036 01
44 x
Označiť zlý inzerát Chybnú kategóriu Ohodnotiť užívateľa Zmazať/Upraviť/Topovať
Prerobený 3 izbový byt na predaj Martin-Ľadoveň - [19.11. 2025]Ponúkame Vám na predaj čerstvo takmer kompletne prerobený 3 izbový byt v Martine na vyhľadávanom sídlisku Ľadoveň. Byt má rozlohu 69 m2 + plocha loggie, orientácia východ/západ. Nachádza sa na 8.poschodí v zateplenom panelovom bytovom dome, kde samozrejme nájdete aj výťah. Výhodou umiestnenia na naj ...
168 000 €
Martin
036 01
036 01
38 x
Označiť zlý inzerát Chybnú kategóriu Ohodnotiť užívateľa Zmazať/Upraviť/Topovať
Predaj 3izbového bytu,novostavba Dolný Kubín - [19.11. 2025]Realitná kancelária REMAX Vám ponúka nový 3 iz.byt v Dolnom Kubíne v centre na Hviezdoslavovom námestí.
BYT ZÁKLADNÉ ÚDAJE:
Lokalita: Dolný Kubín
Dispozícia: 3iz. byt/bez nábytku/
Úžitková plocha bytu:79 m2 (bez pivnice)
Poschodie: 1/2
Konštrukcia domu: Tehla,kvadra
Stav: novostavba
Energi ...
199 900 €
Martin
036 01
036 01
42 x
Označiť zlý inzerát Chybnú kategóriu Ohodnotiť užívateľa Zmazať/Upraviť/Topovať








