Posledný 2 izbový byt, č. IIB_3C, v novostavbe Byty Ruppeldt
- [13.11. 2025]Zmazať/ Upraviť/ Topovať
























Posledný 2 izbový byt s predzáhradkou na predaj, v novom developerskom projekte "Byty Ruppeldtova".
Byt sa nachádza vo vyhľadávanej lokalite, v blízkosti univerzitnej nemocnice, na ulici Ruppeldtova, podľa ktorej je projekt aj pomenovaný.
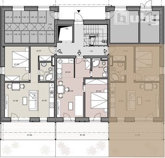
Ponúkaný 2 izbový byt II.B_3C, má celkovú výmeru 70,84 m2, (podlahová plocha bytu 44,23 m2 + 12,99 m2 terasa + 12,35 m2 predzáhradka + 1,27 m2 pivnica), nachádza sa na 1/4 podlaží s výťahom.
Byt sa predáva s vyšším stredným štandardom, ktorý zahŕňa vstupné bezpečnostné dvere, interiérové dvere, omietky stien a stropov, laminátové podlahy, keramický obklad, dlažbu a sanitu, podlahové kúrenie, príprava na klimatizáciu, príprava pre vonkajšie žalúzie. Štandard neobsahuje kuchynskú linku, zariadenie bytu a svietidlá. Súčasťou bytu je priestranná terasa s predzáhradkou.
Zámerom tohto developerského projektu je vybudovať moderný bytový komplex, pozostávajúci zo šiestich bytových domov, celkom s 57 - mimi bytovými jednotkami, 7 - mimi komerčnými nebytovými priestormi, vrátane dostatočného počtu vnútorných a vonkajších parkovacích miest, spolu 6 garáží a 76 parkovacích miest. Bytový dom II.B, v ktorom sa nachádza aj tento byt, pozostáva z jednenástich bytových jednotiek (z čoho 6 bytov je trojizbových, dva byty sú 2 izbové s balkónmi a 3 byty sú dvojizbové s predzáhradkami).
Projekt vďaka svojej výnimočnej lokalite, ponúka kompletnú občiansku vybavenosť, ktorá zahŕňa v pešej dostupnosti niekoľkých minút školy, škôlky, potraviny, nákupné centrum, reštaurácie, a tiež nemocnicu, polikliniky a iné zdravotnícke zariadenia. Momentálne sú byty vo výstavbe, predpokladaný termín ukončenia a kolaudácie je koniec leta 2026.
Cena bytu je 163 600 € s DPH. K bytu je potrebné dokúpiť parkovacie miesto v cene 12 300 € s DPH.
V prípade záujmu o viac informácií ma kontaktujte: Mgr. Milan Valušek, tel. 0904 742 743, mail: valusek.m@bubyreality.sk, alebo na stránke bytyruppeldtova.sk
Byt sa nachádza vo vyhľadávanej lokalite, v blízkosti univerzitnej nemocnice, na ulici Ruppeldtova, podľa ktorej je projekt aj pomenovaný.
Ponúkaný 2 izbový byt II.B_3C, má celkovú výmeru 70,84 m2, (podlahová plocha bytu 44,23 m2 + 12,99 m2 terasa + 12,35 m2 predzáhradka + 1,27 m2 pivnica), nachádza sa na 1/4 podlaží s výťahom.
Byt sa predáva s vyšším stredným štandardom, ktorý zahŕňa vstupné bezpečnostné dvere, interiérové dvere, omietky stien a stropov, laminátové podlahy, keramický obklad, dlažbu a sanitu, podlahové kúrenie, príprava na klimatizáciu, príprava pre vonkajšie žalúzie. Štandard neobsahuje kuchynskú linku, zariadenie bytu a svietidlá. Súčasťou bytu je priestranná terasa s predzáhradkou.
Zámerom tohto developerského projektu je vybudovať moderný bytový komplex, pozostávajúci zo šiestich bytových domov, celkom s 57 - mimi bytovými jednotkami, 7 - mimi komerčnými nebytovými priestormi, vrátane dostatočného počtu vnútorných a vonkajších parkovacích miest, spolu 6 garáží a 76 parkovacích miest. Bytový dom II.B, v ktorom sa nachádza aj tento byt, pozostáva z jednenástich bytových jednotiek (z čoho 6 bytov je trojizbových, dva byty sú 2 izbové s balkónmi a 3 byty sú dvojizbové s predzáhradkami).
Projekt vďaka svojej výnimočnej lokalite, ponúka kompletnú občiansku vybavenosť, ktorá zahŕňa v pešej dostupnosti niekoľkých minút školy, škôlky, potraviny, nákupné centrum, reštaurácie, a tiež nemocnicu, polikliniky a iné zdravotnícke zariadenia. Momentálne sú byty vo výstavbe, predpokladaný termín ukončenia a kolaudácie je koniec leta 2026.
Cena bytu je 163 600 € s DPH. K bytu je potrebné dokúpiť parkovacie miesto v cene 12 300 € s DPH.
V prípade záujmu o viac informácií ma kontaktujte: Mgr. Milan Valušek, tel. 0904 742 743, mail: valusek.m@bubyreality.sk, alebo na stránke bytyruppeldtova.sk
|
| |||||||||||||||||||||||||||||||
Kontaktovať inzerenta e-mailom
Kontaktovať e-mailom môže iba overený užívateľ.
Overenie je zadarmo.
Vaše telefónne číslo *
Kontaktovať e-mailom môže iba overený užívateľ.
Overenie je zadarmo.
Vaše telefónne číslo *



