Na prenájom komerčný - nebytový priestor v novostavbe v Mart
- [13.11. 2025]Zmazať/ Upraviť/ Topovať


















Ponúkam na prenájom nebytový priestor v novostavbe, ktorý je predurčený pre vaše podnikateľské aktivity. Vďaka vynikajúcej lokalite a kvalitnému prevedeniu, je tento priestor perfektnou voľbou pre rozvoj vášho biznisu.
Nachádza vo výbornej lokalite blízko nemocnice, s výbornou dostupnosťou a frekventovanou polohou, čo zaručuje vysoký potenciál návštevnosti a viditeľnosti.
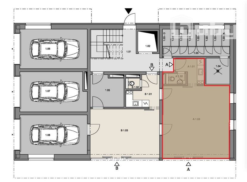
Jedná sa o veľký otvorený priestor s výkladom, zo vstupom od ulice. Za dverami je kuchynka a samostatná toaleta s umývadlom.
Celková výmera 40,54m2 (hlavná miestnosť 34,77 m2, vstup + kuchynka 4,38 m2, toaleta 1,51 m2)
Jedno vyhradené parkovacie miesto pre zákazníkov a druhé pre zamestnancov priamo pred budovou.
Priestor je k dispozícii ihneď. Prístup 24/7.
Ideálny ako obchodné priestory, kancelárie, showroom, zdravotnícke zariadenie, kozmetický alebo kadernícky salón a ďalšie podnikateľské aktivity.
Cena dohodou...
Priestor je k dispozícii aj na predaj.
Pre viac informácií alebo záujem o obhliadku, ma kontaktujte: Mgr. Milan Valušek, tel. 0904 742 743, mail: valusek.m@bubyreality.sk
Nachádza vo výbornej lokalite blízko nemocnice, s výbornou dostupnosťou a frekventovanou polohou, čo zaručuje vysoký potenciál návštevnosti a viditeľnosti.
Jedná sa o veľký otvorený priestor s výkladom, zo vstupom od ulice. Za dverami je kuchynka a samostatná toaleta s umývadlom.
Celková výmera 40,54m2 (hlavná miestnosť 34,77 m2, vstup + kuchynka 4,38 m2, toaleta 1,51 m2)
Jedno vyhradené parkovacie miesto pre zákazníkov a druhé pre zamestnancov priamo pred budovou.
Priestor je k dispozícii ihneď. Prístup 24/7.
Ideálny ako obchodné priestory, kancelárie, showroom, zdravotnícke zariadenie, kozmetický alebo kadernícky salón a ďalšie podnikateľské aktivity.
Cena dohodou...
Priestor je k dispozícii aj na predaj.
Pre viac informácií alebo záujem o obhliadku, ma kontaktujte: Mgr. Milan Valušek, tel. 0904 742 743, mail: valusek.m@bubyreality.sk
|
| |||||||||||||||||||||||||||||||
Kontaktovať inzerenta e-mailom
Kontaktovať e-mailom môže iba overený užívateľ.
Overenie je zadarmo.
Vaše telefónne číslo *
Kontaktovať e-mailom môže iba overený užívateľ.
Overenie je zadarmo.
Vaše telefónne číslo *