Apartmán / komerčný - nebytový priestor IB_NP_1A na predaj,
- [13.11. 2025]Zmazať/ Upraviť/ Topovať
























Ponúkam na predaj apartmán / komerčný nebytový priestor v novom developerskom projekte "Byty Ruppeldtova", nachádzajúci sa vo vyhľadávanej lokalite širšieho centra mesta Martin, konkrétne na ulici Ruppeldtova, podľa ktorej je projekt aj pomenovaný.
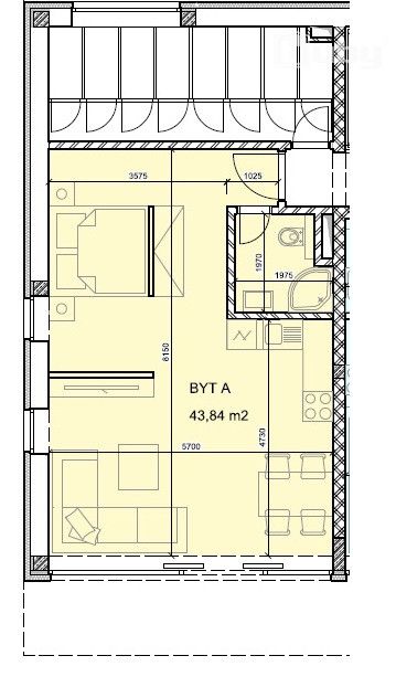
Ponúkaný apartmán / nebytový priestor I.B_NP_1A, má celkovú výmeru 43,84 m2, (apartmán / nebytový priestor 39,95 m2 + 3,89 m2 kúpeľňa s WC), nachádza sa na 1/3 podlaží.
Jedná sa o veľký otvorený priestor s výkladom, s dvoma vstupmi - hlavný vchod do bytovky alebo od ulice.
Ideálny na krátkodobý prenájom, alebo ako obchodné priestory, kancelárie, showroom, zdravotnícke zariadenie, kozmetický alebo kadernícky salón a ďalšie podnikateľské aktivity.
Priestory sú predávané s vyšším stredným štandardom, ktorý zahŕňa vstupné bezpečnostné dvere, interiérové dvere, omietky stien a stropov, keramický obklad, dlažbu a sanitu, podlahové kúrenie, príprava na klimatizáciu, príprava pre vonkajšie žalúzie. Štandard neobsahuje kuchynskú linku, zariadenie a svietidlá.
Zámerom tohto developerského projektu je vybudovať moderný bytový komplex, pozostávajúci zo šiestich bytových domov, celkom s 57 - mimi bytovými jednotkami, 7 - mimi komerčnými nebytovými priestormi, vrátane dostatočného počtu vnútorných a vonkajších parkovacích miest, spolu 6 garáží a 76 parkovacích miest.
Výstavba prvej etapy bola úspešne ukončená v roku 2024, všetky byty a nebytové priestory sú predané.
V druhej etape prebieha výstaba ďalších dvoch bytových domov Ruppeldtova I.B a Ruppeldtova II.B.
Bytový dom I.B v ktorom sa nachádza aj tento nebytový priestor, pozostáva z ôsmich bytových jednotiek (z čoho 6 bytov je trojizbových a dva byty sú 2 izbové) a troch komerčných nebytových priestorov.
Projekt vďaka svojej výnimočnej lokalite, ponúka kompletnú občiansku vybavenosť, ktorá zahŕňa v pešej dostupnosti niekoľkých minút školy, škôlky, potraviny, nákupné centrum, reštaurácie, a tiež nemocnicu, polikliniky a iné zdravotnícke zariadenia.
Momentálne je priestor vo výstavbe, predpokladaný termín ukončenia a kolaudácie je koniec leta 2026.
Cena apartmánu / nebytového priestoru je 135 300 € s DPH. K bytu je potrebné dokúpiť parkovacie miesto v cene 12 300 € s DPH.
V prípade záujmu o viac informácií ma kontaktujte: Mgr. Milan Valušek, tel. 0904 742 743, mail: valusek.m@bubyreality.sk, alebo na stránke bytyruppeldtova.sk
Ponúkaný apartmán / nebytový priestor I.B_NP_1A, má celkovú výmeru 43,84 m2, (apartmán / nebytový priestor 39,95 m2 + 3,89 m2 kúpeľňa s WC), nachádza sa na 1/3 podlaží.
Jedná sa o veľký otvorený priestor s výkladom, s dvoma vstupmi - hlavný vchod do bytovky alebo od ulice.
Ideálny na krátkodobý prenájom, alebo ako obchodné priestory, kancelárie, showroom, zdravotnícke zariadenie, kozmetický alebo kadernícky salón a ďalšie podnikateľské aktivity.
Priestory sú predávané s vyšším stredným štandardom, ktorý zahŕňa vstupné bezpečnostné dvere, interiérové dvere, omietky stien a stropov, keramický obklad, dlažbu a sanitu, podlahové kúrenie, príprava na klimatizáciu, príprava pre vonkajšie žalúzie. Štandard neobsahuje kuchynskú linku, zariadenie a svietidlá.
Zámerom tohto developerského projektu je vybudovať moderný bytový komplex, pozostávajúci zo šiestich bytových domov, celkom s 57 - mimi bytovými jednotkami, 7 - mimi komerčnými nebytovými priestormi, vrátane dostatočného počtu vnútorných a vonkajších parkovacích miest, spolu 6 garáží a 76 parkovacích miest.
Výstavba prvej etapy bola úspešne ukončená v roku 2024, všetky byty a nebytové priestory sú predané.
V druhej etape prebieha výstaba ďalších dvoch bytových domov Ruppeldtova I.B a Ruppeldtova II.B.
Bytový dom I.B v ktorom sa nachádza aj tento nebytový priestor, pozostáva z ôsmich bytových jednotiek (z čoho 6 bytov je trojizbových a dva byty sú 2 izbové) a troch komerčných nebytových priestorov.
Projekt vďaka svojej výnimočnej lokalite, ponúka kompletnú občiansku vybavenosť, ktorá zahŕňa v pešej dostupnosti niekoľkých minút školy, škôlky, potraviny, nákupné centrum, reštaurácie, a tiež nemocnicu, polikliniky a iné zdravotnícke zariadenia.
Momentálne je priestor vo výstavbe, predpokladaný termín ukončenia a kolaudácie je koniec leta 2026.
Cena apartmánu / nebytového priestoru je 135 300 € s DPH. K bytu je potrebné dokúpiť parkovacie miesto v cene 12 300 € s DPH.
V prípade záujmu o viac informácií ma kontaktujte: Mgr. Milan Valušek, tel. 0904 742 743, mail: valusek.m@bubyreality.sk, alebo na stránke bytyruppeldtova.sk
|
| |||||||||||||||||||||||||||||||
Kontaktovať inzerenta e-mailom
Kontaktovať e-mailom môže iba overený užívateľ.
Overenie je zadarmo.
Vaše telefónne číslo *
Kontaktovať e-mailom môže iba overený užívateľ.
Overenie je zadarmo.
Vaše telefónne číslo *
Podobné inzeráty
Na predaj 3 izbový byt 65 m² Martin - Sever - [14.11. 2025]Reality EGYPS ponúka na predaj 3-izbový byt o výmere 65 m² v obľúbenej časti Martin – Sever.
Nachádza sa na 6. poschodí a je po čiastočnej rekonštrukcii, nové plastové okná, nové rozvody kúrenia a radiátory, nový balkón.
Mesačné náklady cca 180 €/2 osoby.
Byt má prechodnú obývačku, výbornú ...
132 000 €
Martin
036 01
036 01
29 x
Označiť zlý inzerát Chybnú kategóriu Ohodnotiť užívateľa Zmazať/Upraviť/Topovať
veľký moderný 4-izb. mezonet - 122m2 - Vrútky - PREDAJ - TOP - [15.11. 2025]Ponúkame Vám na predaj veľký 4-izbový mezonetový byt (122,73m2) vo Vrútkach (Ul. Cyrila a Metoda)
Nachádza sa na 4. poschodí v štvorposchodovom bytovom dome s výťahom (postavený v roku 2010, murovaný).
- nová kuchyňa - 2023
- klimatizáciu v podkroví - 2023
- automatické tienenie - 2024
- sprc ...
195 000 €
Martin
036 01
036 01
110 x
Označiť zlý inzerát Chybnú kategóriu Ohodnotiť užívateľa Zmazať/Upraviť/Topovať
Na predaj: 3-izbový byt s loggiou – Záturčie - [14.11. 2025]Ponúkam na predaj 3-izbový byt o výmere 60,45 m² v dostupnej lokalite Záturčie (Martin). Nachádza sa na 7./8 poschodí v zrekonštruovanom panelovom dome s novým výťahom. Na poschodí sú len dva byty, čo zabezpečuje súkromie a pokoj.
Dispozícia: chodba, obývačka, spálňa s výstupom na loggiu, detská ...
120 000 €
Martin
036 01
036 01
79 x
Označiť zlý inzerát Chybnú kategóriu Ohodnotiť užívateľa Zmazať/Upraviť/Topovať
3 izbový byt s loggiou, Turany - [14.11. 2025]Ponúkame na predaj 3-izbový byt v blízkosti Martina, v meste Turany. To poskytuje svojim obyvateľom kompletnú občiansku vybavenosť a dobrú dostupnosť okresného mesta.
Byt sa nachádza sa na 3.p. z troch v bytovom dome bez výťahu. Je orientovaný na juh (obývačka s loggiou, detská izba) a sever (sp ...
105 000 €
Martin
036 01
036 01
77 x
Označiť zlý inzerát Chybnú kategóriu Ohodnotiť užívateľa Zmazať/Upraviť/Topovať
2 izbový byt s loggiou Martin Sever - TOP - [15.11. 2025]Ponúkame na predaj kompletne zrekonštruovaný 2 izbový byt vo vyhľadávanej lokalite Martin Sever. Byt s výmerou 50m2 sa nachádza na prízemí 5 poschodového, rovnako zrekonštruovaného bytového domu. Byt prešiel kompletnou rekonštrukciou. Pozostáva z vstupnej chodby, dvoch samostatných izieb, kuchyne, W ...
126 000 €
Martin
036 01
036 01
72 x
Označiť zlý inzerát Chybnú kategóriu Ohodnotiť užívateľa Zmazať/Upraviť/Topovať
Ideálny byt na prerábku, s možnosťou 3-izbového riešenia - [14.11. 2025]Hľadáte byt, ktorý si môžete prerobiť presne podľa vlastných predstáv?
Tento 2-izbový byt na Podháji v Martine je výnimočná príležitosť pre každého, kto chce tvoriť, prerábať a získať priestor presne podľa seba.
Nachádza sa na 1. nadzemnom podlaží zatepleného tehlového domu v tichej lokalite s b ...
94 999 €
Martin
036 01
036 01
197 x
Označiť zlý inzerát Chybnú kategóriu Ohodnotiť užívateľa Zmazať/Upraviť/Topovať
Predaj, NOVOSTAVBA dvojizbového bytu v projekte Nové Terasy, - [14.11. 2025]TARGETreal vám ponúka 2-izbový byt v projekte Nové Terasy - Sučany
NOVÝ PROJEKT: Nové Terasy - Sučany
Zažite komfort moderného bývania s jedinečnou atmosférou exteriéru priamo z vášho bytu! Predstavujeme vám projekt Nové Terasy v Sučanoch, ktorý ponúka 10 exkluzívnych bytových jednotiek s pr ...
155 000 €
Martin
036 01
036 01
33 x
Označiť zlý inzerát Chybnú kategóriu Ohodnotiť užívateľa Zmazať/Upraviť/Topovať
3izb. byt s potenciálom, Martin-Sever, Predaj-Výmena
- [14.11. 2025]Na predaj: priestranný 3-izbový byt v obľúbenej lokalite – Severná ulica, sídlisko Martin-Sever.
Výmena za 2-izbový (sever, centrum) + Váš doplatok.
Ponúkame na predaj svetlý a priestranný 3-izbový byt, orientácia západ s rozlohou 69,8 m², nachádzajúci sa na 2. poschodí z 5 v zrekonštruovanom pa ...
160 000 €
Martin
036 01
036 01
69 x
Označiť zlý inzerát Chybnú kategóriu Ohodnotiť užívateľa Zmazať/Upraviť/Topovať
Na predaj 3 izbový byt v centre Martina - [14.11. 2025]TUreality Vám ponúka na predaj 3 -izbový byt vyhľadávanej lokalite Martin - Centrum. Byt s rozlohou 78 m2 sa nachádza na vyvýšenom 1. poschodí z 3. Dispozícia: priestranná vstupná chodba, kúpeľňa s ceľkou rohovou vaňou a toaletou, špajza, veľká priestranná obývačka s vstupom do nepriechodnej izby, k ...
Ponúknite
Martin
036 01
036 01
84 x
Označiť zlý inzerát Chybnú kategóriu Ohodnotiť užívateľa Zmazať/Upraviť/Topovať
moderný 3-izbový byt v novostavbe - Martin - Malá hora - [13.11. 2025]Ponúkame Vám na predaj moderný 3-izbový bytu v novostavbe v Martine (MALÁ HORA).
Nachádza sa na 1. poschodí v bytovke s výťahom.
Plocha 64m2 + 12m2 balkón.
Orientácia: západ a juh
Predáva sa kompletne zariadený.
K bytu prislúcha aj kopka na poschodí a veľká pivnica na prízemí.
Parkovanie pred domom. ...
199 900 €
Martin
036 01
036 01
49 x
Označiť zlý inzerát Chybnú kategóriu Ohodnotiť užívateľa Zmazať/Upraviť/Topovať



