Na predaj novostavba - bungalov, Slovany, okres Martin.
- [13.11. 2025]Zmazať/ Upraviť/ Topovať






























Ponúkam na predaj nové rodinné domy typu bungalov v obci Slovany, okres Martin.
Jedná sa o nový projekt rodinných domov, v novovznikajúcej časti Borovice.
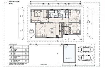
Domy sú 4 izbové, postavené na pozemkoch o výmere 600 m2, zastavaná plocha domu 132 m2, úžitková plocha 106 m2.
Predávajú sa v štádiu hrubej stavby (základy, obvodové múry, priečky, drevený krov, krytina - škridľa,). Po dohode, možnosť dokončiť podľa Vašich predstáv.
Dispozične je dom rozdelený na dennú a nočnú časť. Pozostáva zo vstupnej chodby so zádverím, troch samostatých nepriechodných izieb, kúpeľne, samostatnej toalety, technickej miestnosti a veľkej obývacej izby spojenenej s kuchyňou a výstupom na terasu.
Napojenie na IS : elektrina, obecný vodovod, kanalizácia.
Cena dohodou...
Pre viac informácií ma neváhajte kontaktovať: Mgr. Milan Valušek, tel. 0904 742 743, mail: valusek.m@bubyreality.sk
Jedná sa o nový projekt rodinných domov, v novovznikajúcej časti Borovice.
Domy sú 4 izbové, postavené na pozemkoch o výmere 600 m2, zastavaná plocha domu 132 m2, úžitková plocha 106 m2.
Predávajú sa v štádiu hrubej stavby (základy, obvodové múry, priečky, drevený krov, krytina - škridľa,). Po dohode, možnosť dokončiť podľa Vašich predstáv.
Dispozične je dom rozdelený na dennú a nočnú časť. Pozostáva zo vstupnej chodby so zádverím, troch samostatých nepriechodných izieb, kúpeľne, samostatnej toalety, technickej miestnosti a veľkej obývacej izby spojenenej s kuchyňou a výstupom na terasu.
Napojenie na IS : elektrina, obecný vodovod, kanalizácia.
Cena dohodou...
Pre viac informácií ma neváhajte kontaktovať: Mgr. Milan Valušek, tel. 0904 742 743, mail: valusek.m@bubyreality.sk
|
| |||||||||||||||||||||||||||||||
Kontaktovať inzerenta e-mailom
Kontaktovať e-mailom môže iba overený užívateľ.
Overenie je zadarmo.
Vaše telefónne číslo *
Kontaktovať e-mailom môže iba overený užívateľ.
Overenie je zadarmo.
Vaše telefónne číslo *









