Na predaj rozostavaný rodinný dom - platňa, Slovany, okres M
- [13.11. 2025]Zmazať/ Upraviť/ Topovať





















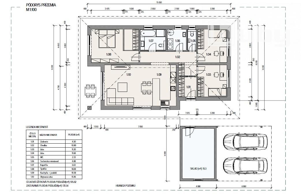
Ponúkam unikátnu možnosť kúpy a následného pokračovania vo výstavbe - rozostavanej platne na 4 izbový bungalov, v obci Slovany okres Martin.
Na výber je jedna z dvoch platní s pozemkami o výmere 600 m2, v novovznikajúcej časti obce Slovany - Borovice.
Na tejto platni je naprojektovaný 4 izbový bungalov, zastavaná plocha domu 132 m2, úžitková plocha 106 m2.
Dispozícia domu je rozdelená na dennú a nočnú časť. Pozostáva zo vstupnej chodby so zádverím, troch samostatých nepriechodných izieb, kúpeľne, samostatnej toalety, technickej miestnosti a veľkej obývacej izby spojenenej s kuchyňou a výstupom na terasu.
Napojenie na IS : elektrina, obecný vodovod, kanalizácia.
Cena rozostavanej platne spolu s pozemkom 99 000 €.
Pre viac informácií ma neváhajte kontaktovať: Mgr. Milan Valušek, tel. 0904 742 743, mail: valusek.m@bubyreality.sk
Na výber je jedna z dvoch platní s pozemkami o výmere 600 m2, v novovznikajúcej časti obce Slovany - Borovice.
Na tejto platni je naprojektovaný 4 izbový bungalov, zastavaná plocha domu 132 m2, úžitková plocha 106 m2.
Dispozícia domu je rozdelená na dennú a nočnú časť. Pozostáva zo vstupnej chodby so zádverím, troch samostatých nepriechodných izieb, kúpeľne, samostatnej toalety, technickej miestnosti a veľkej obývacej izby spojenenej s kuchyňou a výstupom na terasu.
Napojenie na IS : elektrina, obecný vodovod, kanalizácia.
Cena rozostavanej platne spolu s pozemkom 99 000 €.
Pre viac informácií ma neváhajte kontaktovať: Mgr. Milan Valušek, tel. 0904 742 743, mail: valusek.m@bubyreality.sk
|
| |||||||||||||||||||||||||||||||
Kontaktovať inzerenta e-mailom
Kontaktovať e-mailom môže iba overený užívateľ.
Overenie je zadarmo.
Vaše telefónne číslo *
Kontaktovať e-mailom môže iba overený užívateľ.
Overenie je zadarmo.
Vaše telefónne číslo *
