Kancelárie na prenájom, Martin.
- [13.11. 2025]Zmazať/ Upraviť/ Topovať


























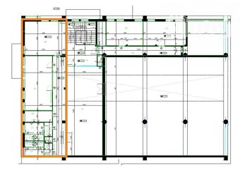
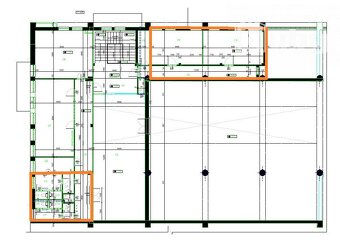
Ponúkam na prenájom kancelárske priestory v širšom centre Martina.
1. Súbor troch kancelárií (cca 70 m2 + kuchynka + spoločné dámske a pánske toalety + možnosť využívať zasadačku)
Jedná sa o kancelárske priestory pozostávajúce z troch miestností (prvá kancelária 30 m2 a druhá kancelária 33 m2 (možnosť predeliť na polovicu a kuchynky).
Cena prenájmu je 450 €/mesiac + energie cca150€/mesiac +DPH.
2. Súbor dvoch kancelárií (cca 40 m2+ spoločné dámske a pánske toalety + možnosť využívať zasadačku)
Jedná sa o kancelárske priestory pozostávajúce z dvoch miestností (prvá kancelária 19 m2 a druhá kancelária 22 m2.
Cena prenájmu je 320 €/mesiac + energie cca150€/mesiac +DPH.
Nachádzajú sa na druhom poschodí, parkovanie pred budovou. Oba priestory sú k dispozícii ihneď.
V blízkosti sa nachádza vlaková a autobusová stanica, výjazd na rýchlostnú cestu.
V prípade záujmu ma kontaktujte na čísle 0904 742 743, mail: valusek.m@bubyreality.sk
1. Súbor troch kancelárií (cca 70 m2 + kuchynka + spoločné dámske a pánske toalety + možnosť využívať zasadačku)
Jedná sa o kancelárske priestory pozostávajúce z troch miestností (prvá kancelária 30 m2 a druhá kancelária 33 m2 (možnosť predeliť na polovicu a kuchynky).
Cena prenájmu je 450 €/mesiac + energie cca150€/mesiac +DPH.
2. Súbor dvoch kancelárií (cca 40 m2+ spoločné dámske a pánske toalety + možnosť využívať zasadačku)
Jedná sa o kancelárske priestory pozostávajúce z dvoch miestností (prvá kancelária 19 m2 a druhá kancelária 22 m2.
Cena prenájmu je 320 €/mesiac + energie cca150€/mesiac +DPH.
Nachádzajú sa na druhom poschodí, parkovanie pred budovou. Oba priestory sú k dispozícii ihneď.
V blízkosti sa nachádza vlaková a autobusová stanica, výjazd na rýchlostnú cestu.
V prípade záujmu ma kontaktujte na čísle 0904 742 743, mail: valusek.m@bubyreality.sk
|
| |||||||||||||||||||||||||||||||
Kontaktovať inzerenta e-mailom
Kontaktovať e-mailom môže iba overený užívateľ.
Overenie je zadarmo.
Vaše telefónne číslo *
Kontaktovať e-mailom môže iba overený užívateľ.
Overenie je zadarmo.
Vaše telefónne číslo *
Podobné inzeráty
Prenájom |Kancelárske priestory v historickej budove na ulic - [16.11. 2025]TARGETreal ponúka na prenájom exkluzívne kancelárske priestory v krásne zrekonštruovanej historickej budove priamo na ulici A. Kmeťa – v prestížnej lokalite centra Martina, s výbornou dostupnosťou do centra a na pešiu zónu. Kancelária sa skladá z dvoch miestností, dokopy má 55 m2. Priestory sú voľné ...
550 €
Martin
036 01
036 01
26 x
Označiť zlý inzerát Chybnú kategóriu Ohodnotiť užívateľa Zmazať/Upraviť/Topovať
NA PRENÁJOM PRIESTOR - MARTIN - 21m2 - [14.11. 2025]Typ: Kancelárske priestory
Mestská časť: Sever
Obec: Martin
*****KOLLÁR REALITY*****
Svetlý priestor na prenájom – 21 m²
Lokalita: Výborná občianska vybavenosť s bezproblémovým verejným parkovaním.
Priestor:
Rozloha: 21 m²
Vybavenie: Malá kuchynka a zdieľané WC
Podlaha: Plá ...
400 €
Martin
036 01
036 01
48 x
Označiť zlý inzerát Chybnú kategóriu Ohodnotiť užívateľa Zmazať/Upraviť/Topovať
Kancelárske priestory na prenájom, Martin. - [13.11. 2025]Ponúkam na prenájom kancelárske priestory v Martine.
K dispozícii viac kancelárií, niektoré sa dajú vzájomne prepojiť. Výmery kancelárií od 18 m2.
Cena ze prenájom od 160 €/mesiac s DPH. V cene sú energie, parkovacie miesto, upratovanie spoločných priestorov, kuchynka, fajčiarska a relax zón ...
160 €
Martin
036 01
036 01
31 x
Označiť zlý inzerát Chybnú kategóriu Ohodnotiť užívateľa Zmazať/Upraviť/Topovať
Kancelárske priestory na prenájom - TOP - [10.11. 2025]Ponúkame na prenájom kancelárske priestory v centre mesta Martin . Kancelária má plochu 53m2 a pozostáva s dvoch prechodných miestností 32m2 a 21m2 je na druhom poschodí, kancelárie sa prenajímajú bez zariadenia. Parkovanie je zabezpečené v zadnej časti budovy a je v cene nájmu a jedná sa o 3 parkov ...
550 €
Martin
036 01
036 01
358 x
Označiť zlý inzerát Chybnú kategóriu Ohodnotiť užívateľa Zmazať/Upraviť/Topovať
PRENÁJOM: Kancelárske priestory s wc a vlastným parkovaním Z - [16.10. 2025]AstonReal Vám EXKLUZÍVNE ponúka na prenájom niekoľko kancelárskych priestorov v Martine v industriálnej zóne ZŤS. Objekt sa nachádza pri hlavnom Martinskom obchvate na frekventovanom mieste. Budova má 3 podlažia, vnútorná podlahová plocha daných priestorov je cca 150 m2. Samostatne alebo dokopy sa d ...
200 €
Martin
036 01
036 01
112 x
Označiť zlý inzerát Chybnú kategóriu Ohodnotiť užívateľa Zmazať/Upraviť/Topovať
PRENÁJOM - kancelárske priestory 20, 40, 60, 150m2 - širšie - [24.9. 2025]Ponúkame na prenájom kancelárske priestory v širšom centre Martina o výmere od 20m2; v budove s výbornou dopravnou dostupnosťou. V budove sú optické siete GAYA, parkovanie pre nájomníkov vyhradené za budovou a je bezplatné. V cene nájmu sú zahrnuté aj energie. Cena nájmu a energie sú bez DPH a začín ...
170 €
Martin
036 01
036 01
508 x
Označiť zlý inzerát Chybnú kategóriu Ohodnotiť užívateľa Zmazať/Upraviť/Topovať
FINREA│ Kancelárske priestory rôznych rozmerov v centre mest - [22.9. 2025]Dávame do pozornosti prenájom kancelárskych priestorov v centre mesta. Kancelárie sú rôznych veľkostí a nachádzajú sa v udržiavanej a zrekonštruovanej budove v tesnej blízkosti centra MT. Kancelárie majú podlahové kúrenie a sú klimatizované. K dispozícii sú toalety na chodbách a kuchynka alebo kuchy ...
520 €
Martin
036 01
036 01
135 x
Označiť zlý inzerát Chybnú kategóriu Ohodnotiť užívateľa Zmazať/Upraviť/Topovať
FINREA│PRENÁJOM Kancelárie v Martine 25m2 - [22.9. 2025]Hľadáte kancelársky priestor pre Vaše podnikanie? Máme pre Vás riešenie. Kancelária priamo v novostavbe s výmerou 25 m2 /5x5/. Budova sa nachádza v širšom centre Martina.
V blízkosti sa nachádza vlaková a autobusová stanica, výjazd na rýchlostnú cestu.
Cena prenájmu je 250 ...
250 €
Martin
036 01
036 01
137 x
Označiť zlý inzerát Chybnú kategóriu Ohodnotiť užívateľa Zmazať/Upraviť/Topovať





