3-izb. nezariadený byt v Karlovej Vsi na Púpavovej ul. vráta
- TOP - [14.11. 2025]Zmazať/ Upraviť/ Topovať























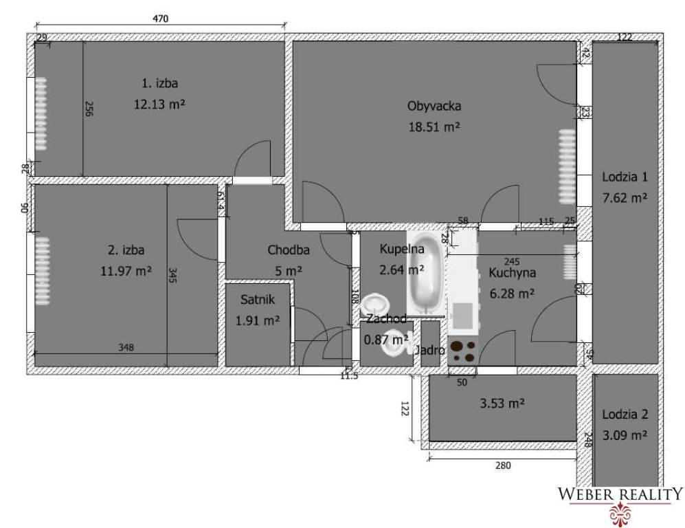
Ponúkame na prenájom 3-izbový, nezariadený byt v Karlovej Vsi (Púpavová ul.) s rozlohou 64 m2 na 3.poschodí z 3 v nízkopodlažnom bytovom dome.
V byte sú 2 nepriechodné (samostatné izby - spálne), + priestranná obývačka, z ktorej sa vstupuje do kuchyne, loggia s výmerou 10 m2 pozdĺž celej obývačky aj kuchyne, kúpeľňa s vaňou, samostatné wc, klimatizácia.
Byt je nezariadený, je tu len chladnička, automatická práčka a šatníková skriňa v spálni (nábytok na fotkách bude odsťahovaný).
Okolie, kde sa byt nachádza je tiché, je tu detské ihrisko, park, veľa zelene, v dome sa nachádza len 6 bytov, sú tu slušní susedia, parkovanie je regulované, avšak je tu možnosť prihlásenia sa na trvalý pobyt (kôli parkovaniu).
V cene sú všetky energie, byt je voľný od 1.decembra 2025 a vhodná pre max 3-4 ľudí. Rada Vám odpoviem na ďalšie otázky, kontaktná osoba: Lucia Weber 0908 800 800, +421 908 800 800 počas pracovných dní, alebo na mail: weber@weberreality.sk
Dodatok k cene: vrátane Energií
Obytná plocha: 64m²
Celková rozloha: 64m²
Úžitková plocha: 64m²
Vlastníctvo: osobné
Stav: úplne prerobený
Plyn: áno
Kúpeľňa: vaňa
Lódžia: áno
Pivnica: áno
Výťah: nie
Parkovanie: verejné
Postavené z: panel
Zariadenie: nezariadený
Zateplený objekt: áno
Klimatizácia: áno
Káblová televízia: áno
Energetický certifikát: B
Okná: plastové
Orientácia: juhovýchodná
V byte sú 2 nepriechodné (samostatné izby - spálne), + priestranná obývačka, z ktorej sa vstupuje do kuchyne, loggia s výmerou 10 m2 pozdĺž celej obývačky aj kuchyne, kúpeľňa s vaňou, samostatné wc, klimatizácia.
Byt je nezariadený, je tu len chladnička, automatická práčka a šatníková skriňa v spálni (nábytok na fotkách bude odsťahovaný).
Okolie, kde sa byt nachádza je tiché, je tu detské ihrisko, park, veľa zelene, v dome sa nachádza len 6 bytov, sú tu slušní susedia, parkovanie je regulované, avšak je tu možnosť prihlásenia sa na trvalý pobyt (kôli parkovaniu).
V cene sú všetky energie, byt je voľný od 1.decembra 2025 a vhodná pre max 3-4 ľudí. Rada Vám odpoviem na ďalšie otázky, kontaktná osoba: Lucia Weber 0908 800 800, +421 908 800 800 počas pracovných dní, alebo na mail: weber@weberreality.sk
Dodatok k cene: vrátane Energií
Obytná plocha: 64m²
Celková rozloha: 64m²
Úžitková plocha: 64m²
Vlastníctvo: osobné
Stav: úplne prerobený
Plyn: áno
Kúpeľňa: vaňa
Lódžia: áno
Pivnica: áno
Výťah: nie
Parkovanie: verejné
Postavené z: panel
Zariadenie: nezariadený
Zateplený objekt: áno
Klimatizácia: áno
Káblová televízia: áno
Energetický certifikát: B
Okná: plastové
Orientácia: juhovýchodná
|
| |||||||||||||||||||||||||||||||
Kontaktovať inzerenta e-mailom
Kontaktovať e-mailom môže iba overený užívateľ.
Overenie je zadarmo.
Vaše telefónne číslo *
Kontaktovať e-mailom môže iba overený užívateľ.
Overenie je zadarmo.
Vaše telefónne číslo *


