Na predaj rodinný dom s projektom na rekonštrukciu v Mýtnej
- [13.11. 2025]Zmazať/ Upraviť/ Topovať

























Predstavujeme Vám možnosť kúpy rodinného domu postaveného z váľku na rovinatom a slnečnom pozemku s celkovou výmerou 551 m². Tento dom ponúka potenciál na vytvorenie komfortného a priestranného bývania v atraktívnej lokalite, ktorá je vhodná pre rodiny i ako investičná príležitosť. Výhodou nehnuteľnosti je aj jej plánovaná rekonštrukcia s projektom, čo umožňuje novému majiteľovi realizovať vlastné predstavy a vytvoriť ideálne bývanie.
Základné informácie:
Typ nehnuteľnosti - Rodinný dom
Rozloha pozemku- 551 m²
Stav nehnuteľnosti - dom je pripravený na rekonštrukciu s platným projektom.
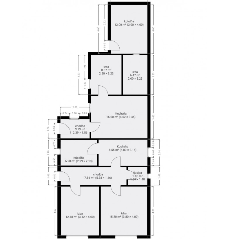
Dispozícia a vybavenie:
Vstupná chodba, dve obytné izby, kuchyňa, špajza, kúpeľňa s toaletou
Letná kuchynka, ktorú je možné prepojiť s obytnou časťou a zväčšiť tak obytný priestor.
Dostupnosť a výhody:
Výborná lokalita obec s kompletnou občianskou vybavenosťou, vrátane obchodov, meterskej školy a verejnej dopravy(vlakové spojenie, mestské a diaľkove autobusové spojenie)
Výborné napojenie: Rýchla dostupnosť na rýchlostnú cestu R2, ktorá spája obec s okolými mestami a regionálnymi centrami.
Inžinierske siete a technický stav:
elektrická energia, plynová pripojka, vlastná studňa, odpad žumpa
Stav nehnuteľnosti je vhodný na kompletnú rekonštrukciu, pričom je k dispozícii úplný projekt na jej renováciu.
Ďalšie informácie:
V cene je zahrnutý hotový projekt na rekonštrukciu domu, ktorý umožňuje rýchly začiatok renovácie a realizácia vlastných predstáv.
Cena ponúkanej nehnuteľnosti je konečná a zahŕňa (je v cene):
- vypracovanie potrebnej zmluvnej dokumentácie a realizáciu celej transakcie,
- poplatky za overenie podpisov u notára,
- asistenciu pri odovzdaní nehnuteľnosti a prehlásení energií a služieb,
- ďalšiu potrebnú asistenciu podľa dohody.
Naša realitná kancelária PROXAM reality sídli v Ipeľských tehelniach (oproti hotel Slovan) na 1. poschodí.
V pracovných dňoch nás môžete navštíviť.
Základné informácie:
Typ nehnuteľnosti - Rodinný dom
Rozloha pozemku- 551 m²
Stav nehnuteľnosti - dom je pripravený na rekonštrukciu s platným projektom.
Dispozícia a vybavenie:
Vstupná chodba, dve obytné izby, kuchyňa, špajza, kúpeľňa s toaletou
Letná kuchynka, ktorú je možné prepojiť s obytnou časťou a zväčšiť tak obytný priestor.
Dostupnosť a výhody:
Výborná lokalita obec s kompletnou občianskou vybavenosťou, vrátane obchodov, meterskej školy a verejnej dopravy(vlakové spojenie, mestské a diaľkove autobusové spojenie)
Výborné napojenie: Rýchla dostupnosť na rýchlostnú cestu R2, ktorá spája obec s okolými mestami a regionálnymi centrami.
Inžinierske siete a technický stav:
elektrická energia, plynová pripojka, vlastná studňa, odpad žumpa
Stav nehnuteľnosti je vhodný na kompletnú rekonštrukciu, pričom je k dispozícii úplný projekt na jej renováciu.
Ďalšie informácie:
V cene je zahrnutý hotový projekt na rekonštrukciu domu, ktorý umožňuje rýchly začiatok renovácie a realizácia vlastných predstáv.
Cena ponúkanej nehnuteľnosti je konečná a zahŕňa (je v cene):
- vypracovanie potrebnej zmluvnej dokumentácie a realizáciu celej transakcie,
- poplatky za overenie podpisov u notára,
- asistenciu pri odovzdaní nehnuteľnosti a prehlásení energií a služieb,
- ďalšiu potrebnú asistenciu podľa dohody.
Naša realitná kancelária PROXAM reality sídli v Ipeľských tehelniach (oproti hotel Slovan) na 1. poschodí.
V pracovných dňoch nás môžete navštíviť.
|
| |||||||||||||||||||||||||||||||
Kontaktovať inzerenta e-mailom
Kontaktovať e-mailom môže iba overený užívateľ.
Overenie je zadarmo.
Vaše telefónne číslo *
Kontaktovať e-mailom môže iba overený užívateľ.
Overenie je zadarmo.
Vaše telefónne číslo *




