Prenájom skladový priestor 34m2 prízemie Kamenná cesta
- [13.11. 2025]
Zmazať/ Upraviť/ Topovať
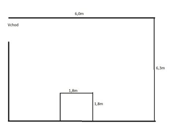
RA Reality vám ponúkajú na prenájom skladový priestor o rozlohe 34m2 na vyvýšenom prízemí (cca 6 schodov) budovy na Kamennej ulici. Skladový priestor je prístupný z príjazdovej cesty cez vstupné platové dvere, po niekoľkých metroch spoločnej chodby. Rozmer skladového priestoru 6 m x 6,3m. Vo vnútry skladového priestoru sa nachádza malá kotolňa o rozmere 1,8 x 1,8m. Skladový priestor má aj denné svetlo cez okná osadené vo výške. Sklad má možnosť vykurovania so samostatným meraním energie. Cena za prenájom 170,- € / mesiac+DPH. Energie fakturované zvlášť, podľa skutočnej spotreby. Možnosť prenajať si predajný resp. kancelársky priestor nachádzajúci sa hneď vedľa skladového priestoru, prístup priamo z vonku cez kovové schody.
Meno:
| Peter
|
Telefón:
| 090... zobraz číslo
|
| Lokalita: |  | 010 01 Žilina |
Videlo: | 79 ľudí |
Cena: | 170 € |
|
|