Nový Projekt.
- [13.11. 2025]Zmazať/ Upraviť/ Topovať


















V exkluzívnom zastúpení majiteľa Vám ponúkam na predaj komplet hotový projekt s tromi bytvými jednotkami v obci Zubrohlava v blízkosti Oravskej Priehrady.Táto časť spadá pod okres Námestovo, kde pozemok na ktorom sa budú stavať byty je v územnom pláne a patrí do katastrálneho územia slanica.
Celkova výmera stavebného pozemku je 1466m².
Tiché miesto na bývanie s potenciálom nárastu na cene bytu. Prístupová cesta je spevnená asfaltová, komplet inžinierske siete, kanalizacia, obecný vodovod,internet.
Projekt novostavieb, bytových jednotiek ponuka dve parkovne miesta pre každý byt. V cene je zahrnutá výmena zmeny plánu strechy na rovnú.
Majiteľ sa rozhodol projekt s pozemkom, komplet so stavebným povoleným predať šikovnému developerovi. Veľmi vyhodnou kúpou projektu bytov je ich výstavba v krásnej tichej lokalite kúsok od Oravskej Priehrady na skok autom do mesta Námestovo, a v neposlednom rade nádherný výhľad na okolitú scenériu krásnej Oravy.
Cena:255.000€
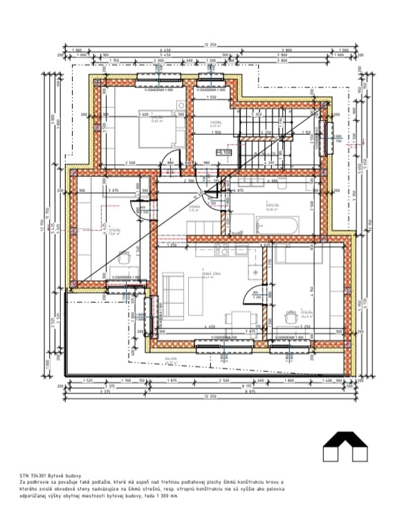
Rozmery bytov:
- Byt 01 prízemie.
Obytna plocha:
Spálňa -9,18m²
Spálňa so šatníkom -12,06m²
Obývacia izba -22,82m²
Kuchyňa -13,18m2
Ostatné plochy: Kúpeľňa- 8,31m²
Chodba - 10,58m²
Spol. priestory: Chodba- 5,02m²
Technická miestnosť- 8,12m2
Celková výmera bytu- 89,27m²
- Byt 02 poschodie.
Obytna plocha:
Spálňa so šatníkom- 12,60m²
Spálňa - 9,99m²
Obývacia izba - 23,58m²
Kuchyňa - 14,91m²
Ostatné plochy: Kúpeľňa- 8,31m2
Chodba - 11,09m²
Spoločné priestory: - 15,12m²
Celkova výmera bytu: - 95,61m²
- Byt 03 podkrovie
Obytna plocha:
Spálňa so šatníkom- 13,49m²
Spálňa - 12,60m²
Obývacia izba - 13,61m²
Kuchyňa - 18,47m²
Ostatné plochy: Kúpeľňa- 9,92m²
Chodba - 6,83m²
Spoločné priestory: - 14,72m²
Celkova výmera bytu: - 89,64m²
Stavebnotechnické riešenie:
Základové konštrukcie: Prostý betón C 20/25 + betonárska výstuž.
Obvodové steny: Debniace tvárnice vystužené betonárskou oceľou a betónom C20/25.
Presné tvárnice,murované na maltu na tenké škáry s kontaktným
zatepľovacím systémom s tepelnou izoláciu na báze EPS/XPS alt.
minerálna vata
Nosné steny: Presné tvárnice, murované na maltu na tenké škáry
Deliace priečky: Presné tvárnice, murované na maltu na tenké škáry
Stropná konštrukcia: ŽB doska, SDK podhľad
Strecha: Drevený krov, sedlová strecha, sklon 30 stupňov, krytina plechová.
Zateplenie strechy: Tepelná izolácia MW hr. 200mm+180mm + parozábrana zo strany
interiéru
Okná: Plastový profil s prítlačným tesnením.
Zasklenie s tepelnoizolačným trojsklom, s celkovou priepustnosťou slnečného žiarenia.
Vonkajšie dvere: Hliníkové dvere zasklenie trojsklo, s bezpečnostným zámkom.
Po prípade môžte kontaktovať majiteľa na tel.č +4916366664343 alebo cez WhatsApp.
Celkova výmera stavebného pozemku je 1466m².
Tiché miesto na bývanie s potenciálom nárastu na cene bytu. Prístupová cesta je spevnená asfaltová, komplet inžinierske siete, kanalizacia, obecný vodovod,internet.
Projekt novostavieb, bytových jednotiek ponuka dve parkovne miesta pre každý byt. V cene je zahrnutá výmena zmeny plánu strechy na rovnú.
Majiteľ sa rozhodol projekt s pozemkom, komplet so stavebným povoleným predať šikovnému developerovi. Veľmi vyhodnou kúpou projektu bytov je ich výstavba v krásnej tichej lokalite kúsok od Oravskej Priehrady na skok autom do mesta Námestovo, a v neposlednom rade nádherný výhľad na okolitú scenériu krásnej Oravy.
Cena:255.000€
Rozmery bytov:
- Byt 01 prízemie.
Obytna plocha:
Spálňa -9,18m²
Spálňa so šatníkom -12,06m²
Obývacia izba -22,82m²
Kuchyňa -13,18m2
Ostatné plochy: Kúpeľňa- 8,31m²
Chodba - 10,58m²
Spol. priestory: Chodba- 5,02m²
Technická miestnosť- 8,12m2
Celková výmera bytu- 89,27m²
- Byt 02 poschodie.
Obytna plocha:
Spálňa so šatníkom- 12,60m²
Spálňa - 9,99m²
Obývacia izba - 23,58m²
Kuchyňa - 14,91m²
Ostatné plochy: Kúpeľňa- 8,31m2
Chodba - 11,09m²
Spoločné priestory: - 15,12m²
Celkova výmera bytu: - 95,61m²
- Byt 03 podkrovie
Obytna plocha:
Spálňa so šatníkom- 13,49m²
Spálňa - 12,60m²
Obývacia izba - 13,61m²
Kuchyňa - 18,47m²
Ostatné plochy: Kúpeľňa- 9,92m²
Chodba - 6,83m²
Spoločné priestory: - 14,72m²
Celkova výmera bytu: - 89,64m²
Stavebnotechnické riešenie:
Základové konštrukcie: Prostý betón C 20/25 + betonárska výstuž.
Obvodové steny: Debniace tvárnice vystužené betonárskou oceľou a betónom C20/25.
Presné tvárnice,murované na maltu na tenké škáry s kontaktným
zatepľovacím systémom s tepelnou izoláciu na báze EPS/XPS alt.
minerálna vata
Nosné steny: Presné tvárnice, murované na maltu na tenké škáry
Deliace priečky: Presné tvárnice, murované na maltu na tenké škáry
Stropná konštrukcia: ŽB doska, SDK podhľad
Strecha: Drevený krov, sedlová strecha, sklon 30 stupňov, krytina plechová.
Zateplenie strechy: Tepelná izolácia MW hr. 200mm+180mm + parozábrana zo strany
interiéru
Okná: Plastový profil s prítlačným tesnením.
Zasklenie s tepelnoizolačným trojsklom, s celkovou priepustnosťou slnečného žiarenia.
Vonkajšie dvere: Hliníkové dvere zasklenie trojsklo, s bezpečnostným zámkom.
Po prípade môžte kontaktovať majiteľa na tel.č +4916366664343 alebo cez WhatsApp.
|
| |||||||||||||||||||||||||||||||
Kontaktovať inzerenta e-mailom
Kontaktovať e-mailom môže iba overený užívateľ.
Overenie je zadarmo.
Vaše telefónne číslo *
Kontaktovať e-mailom môže iba overený užívateľ.
Overenie je zadarmo.
Vaše telefónne číslo *
Podobné inzeráty
Na predaj 1-izb. byt v Námestove, 35 m2, ul. Štefánikova - TOP - [23.11. 2025]AstonReal ponúka na predaj 1-izbový byt v meste Námestovo, ul. Štefánikova.
Byt sa nachádza v panelovom bytovom dome s kompletnou občianskou vybavenosťou v pešej dostupnosti. Byt má výmeru 35 m2. K dispozícii je aj pivnica.
Výhody nehnuteľnosti:
✅výborná lokalita s kompletnou vybavenosťou
...
89 000 €
Námestovo
029 01
029 01
446 x
Označiť zlý inzerát Chybnú kategóriu Ohodnotiť užívateľa Zmazať/Upraviť/Topovať
Na predaj 1-izb. byt v Námestove, 35 m2, ul. Štefánikova - [21.11. 2025]AstonReal ponúka na predaj 1-izbový v meste NÁMESTOVO, ktorý sa nachádza vo vyhľadávanej a tichej lokalite Štefánikova ulica.
Byt sa nachádza v panelovom bytovom dome s kompletnou občianskou vybavenosťou v pešej dostupnosti. Byt má výmeru 35 m2. K dispozícii je aj pivnica.
Výhody nehnuteľnost ...
89 000 €
Námestovo
029 01
029 01
412 x
Označiť zlý inzerát Chybnú kategóriu Ohodnotiť užívateľa Zmazať/Upraviť/Topovať
Vymeníme 2 byty za rodinný dom v Námestove - [21.11. 2025]Ponúkame:
2-izbový byt
1-izbový byt
(oba byty v Námestove)
Hľadáme výmenu za rodinný dom v Námestove
Pre viac info prosím volať.
Dohodou
Námestovo
029 01
029 01
380 x
Označiť zlý inzerát Chybnú kategóriu Ohodnotiť užívateľa Zmazať/Upraviť/Topovať
Posledné byty na predaj Zákamenné Poriecie - TOP - [23.11. 2025]🏡 Predaj 2- a 3-izbových bytov v modernej novostavbe – pohodlné bývanie s terasou, pivnicou a parkovaním
Ponúkame vám nové byty v práve budovanom bytovom dome s iba 8 bytovými jednotkami. Ide o prvý z dvoch pripravovaných domov, ktoré spolu vytvoria menší, pokojný a moderný obytný komplex.
Byt ...
129 990 €
Námestovo
029 01
029 01
314 x
Označiť zlý inzerát Chybnú kategóriu Ohodnotiť užívateľa Zmazať/Upraviť/Topovať
Predám 1izbovy byť na brehoch v Námestove - [20.11. 2025]Predam 1izbovy byt na Veternej ulici v Námestove.
100 000 €
Námestovo
029 01
029 01
186 x
Označiť zlý inzerát Chybnú kategóriu Ohodnotiť užívateľa Zmazať/Upraviť/Topovať
1-izbový byt s balkónom v Námestove, ul. Veterná - [18.11. 2025]Typ: 1-izbový byt
Ulica: Veterná
Obec: Námestovo
Predáme 1-izbový byt v Námestove na ulici Veterná o výmere 39 m² vrátane pivnice. Byt sa nachádza na 2. podlaží bytového domu, je v pôvodnom stave, čo ponúka možnosť prerobenia podľa vlastných predstáv. Súčasťou bytu je aj balkón.
Byt sa nachádz ...
95 000 €
Námestovo
029 01
029 01
269 x
Označiť zlý inzerát Chybnú kategóriu Ohodnotiť užívateľa Zmazať/Upraviť/Topovať
Chorvátsko-Moderný trojizbový apartmán s výhľadom na more - [17.11. 2025]Severná Dalmácia, Privlaka, Sabunike
LaHoREAL.eu ponúka na predaj skvelý moderný apartmán na druhom poschodí novostavby v Privlake – Sabunike.
Ide o modernú novostavbu. Apartmán ponúka čiastočný výhľad na more.
V budove sa nachádza celkovo 6 apartmánov.
Dispozícia izieb pozostáva z chodby, 2 ...
220 300 €
Námestovo
029 01
029 01
90 x
Označiť zlý inzerát Chybnú kategóriu Ohodnotiť užívateľa Zmazať/Upraviť/Topovať
Chorvátsko-Trojizbový apartmán len 60 m od mora - [14.11. 2025]Severná Dalmácia, Privlaka
Na predaj priestranný dvojizbový byt v Privlake vo výbornej lokalite, len 60 m od mora. Apartmán ponúka krásny výhľad na more. Ide o novostavbu. Jedná sa o byt na 1. poschodí bytového domu s celkovým počtom 10 bytových jednotiek.
Dispozičné riešenie izieb pozostáva ...
255 000 €
Námestovo
029 01
029 01
95 x
Označiť zlý inzerát Chybnú kategóriu Ohodnotiť užívateľa Zmazať/Upraviť/Topovať
Chorvátsko-Štýlový 3-izbový apartmán s výhľadom na more - [14.11. 2025]Severná Dalmácia, Novalja / Ostrov Pag
Na predaj trojizbový apartmán o celkovej výmere 50,60 m2 na prvom poschodí bytového domu nad centrom Novalje na ostrove Pag.
Apartmán pozostáva z chodby, obývacej izby s kuchyňou, 2 spální, kúpeľne s WC a terasy s výhľadom na more. Je klimatizovaný a štýl ...
179 000 €
Námestovo
029 01
029 01
132 x
Označiť zlý inzerát Chybnú kategóriu Ohodnotiť užívateľa Zmazať/Upraviť/Topovať
3-izb. apartmán na prízemí novostavby so záhradou,Chorvátsko - [13.11. 2025]Severná Dalmácia, Novalja / Ostrov Pag
Na predaj je trojizbový apartmán (S1) s celkovou rozlohou 74,68 m2 na prízemí modernej novostavby v Novalji.
Skladá sa z chodby, kúpeľne s WC, 2 spální, obývačky a kuchyne, ako aj veľkej, krytej terasy (18,11 m2) a veľkého dvora o výmere 97,75 m2.
Podl ...
257 700 €
Námestovo
029 01
029 01
164 x
Označiť zlý inzerát Chybnú kategóriu Ohodnotiť užívateľa Zmazať/Upraviť/Topovať