Obchodné priestory v centre moderného bývania R11
- [12.11. 2025]Zmazať/ Upraviť/ Topovať






























Ponúkame na prenájom reprezentatívne priestory vhodné na obchodné, kancelárske, skladové alebo prevádzkové účely:
Lokalita: areál R11, Duklianska, Spišská Nová Ves
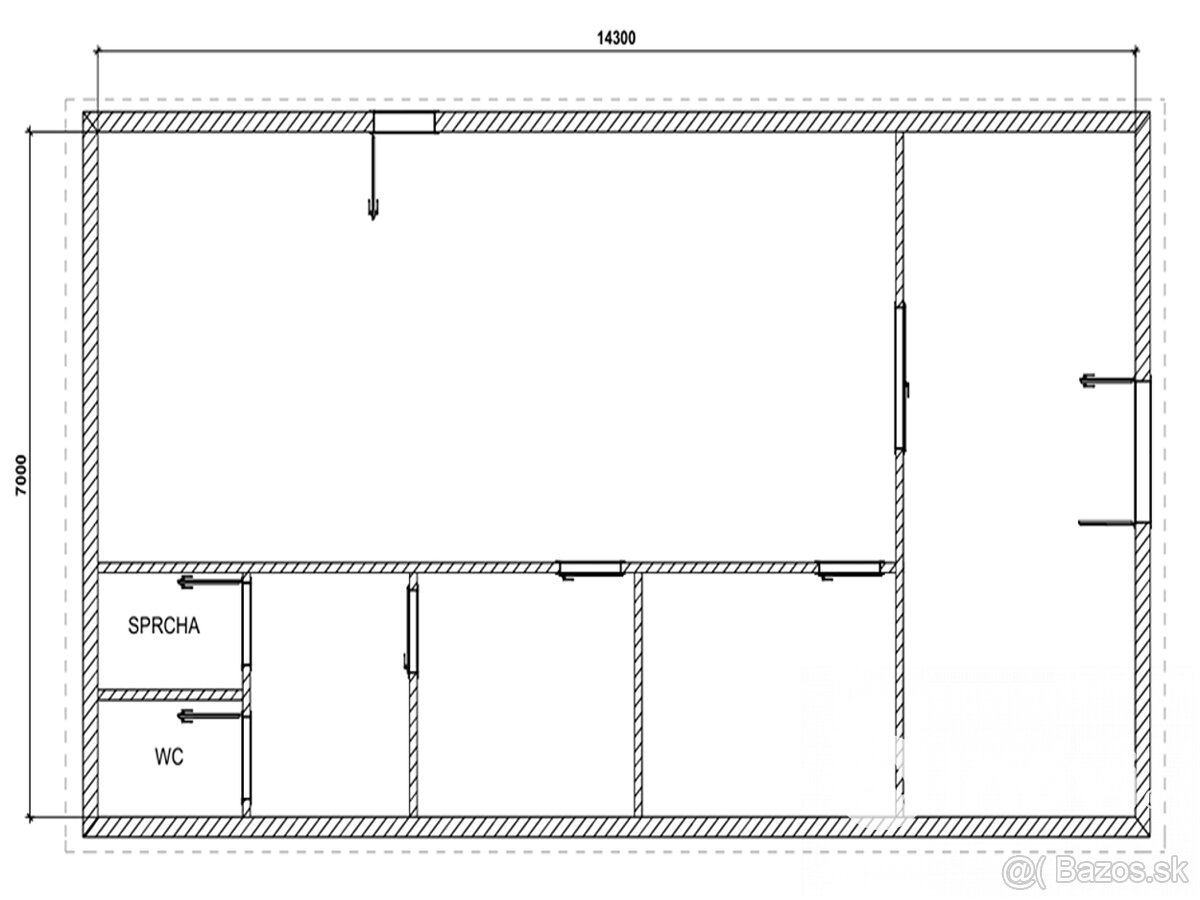
Úžitková plocha: 101 m²
Poschodie: prízemie
Dostupnosť: od 01.09.2025 (popr. dohodou)
Dispozícia priestorov:
- priestranná hlavná miestnosť
- 3 samostatné menšie miestnosti
- hygienické zázemie (sprcha a samostatné WC)
Technický stav a vybavenie:
- klimatizácia
- kamerový a bezpečnostný systém
- internet
- 1 vyhradené parkovacie miesto
Výhody:
- možnosť dispozičných úprav podľa potrieb klienta
- dostatočný počet parkovacích miest
- poloha v blízkosti centra mesta a v úplnej blízkosti obchodnej zóny
Cena prenájmu: 858,50,-€/mesiac + DPH
Zálohové platby za energie: 145,-€ /mesiac + DPH
Internet: 20,-€/mesiac + DPH
Obchodné centrum R11 - moderné bývanie je obchodný komplex, ktorý poskytuje obchodné, prezentačné, skladovacie a kancelárske priestory v biznis centre s variabilným usporiadaním dispozícií. Súčasťou centra je dostatočný počet parkovacích miest a zelené oddychové plochy.
Podmienkou nájomnej zmluvy je depozit vo výške dvoch mesačných nájmov. V prípade záujmu o bližšie informácie a obhliadku nás kontaktujte na tel. č.: 0948 979 997.
Lokalita: areál R11, Duklianska, Spišská Nová Ves
Úžitková plocha: 101 m²
Poschodie: prízemie
Dostupnosť: od 01.09.2025 (popr. dohodou)
Dispozícia priestorov:
- priestranná hlavná miestnosť
- 3 samostatné menšie miestnosti
- hygienické zázemie (sprcha a samostatné WC)
Technický stav a vybavenie:
- klimatizácia
- kamerový a bezpečnostný systém
- internet
- 1 vyhradené parkovacie miesto
Výhody:
- možnosť dispozičných úprav podľa potrieb klienta
- dostatočný počet parkovacích miest
- poloha v blízkosti centra mesta a v úplnej blízkosti obchodnej zóny
Cena prenájmu: 858,50,-€/mesiac + DPH
Zálohové platby za energie: 145,-€ /mesiac + DPH
Internet: 20,-€/mesiac + DPH
Obchodné centrum R11 - moderné bývanie je obchodný komplex, ktorý poskytuje obchodné, prezentačné, skladovacie a kancelárske priestory v biznis centre s variabilným usporiadaním dispozícií. Súčasťou centra je dostatočný počet parkovacích miest a zelené oddychové plochy.
Podmienkou nájomnej zmluvy je depozit vo výške dvoch mesačných nájmov. V prípade záujmu o bližšie informácie a obhliadku nás kontaktujte na tel. č.: 0948 979 997.
|
| |||||||||||||||||||||||||||||||
Kontaktovať inzerenta e-mailom
Kontaktovať e-mailom môže iba overený užívateľ.
Overenie je zadarmo.
Vaše telefónne číslo *
Kontaktovať e-mailom môže iba overený užívateľ.
Overenie je zadarmo.
Vaše telefónne číslo *









