Predaj stavebný pozemok 1140 m2, Vydumanec, Líščia ul.
- [12.11. 2025]Zmazať/ Upraviť/ Topovať


























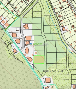
Ponúkame na predaj stavebný pozemok o výmere 1140 m2, Prešov, Vydumanec, Líščia ulica.
ZÁKLADNÉ ÚDAJE:
- rovinatý až mierne svahovitý pozemok nachádzajúci sa pod lesom vedľa zástavby existujúcich rodinných domov, na okraji mestskej časti Prešov - Vydumanec
- slnečný pozemok
- v územnom pláne na výstavbu rodinných domov
- pozemok má pekný výhľad na okolitú prírodu
- na prístupovej ceste je zapísané vecné bremeno
ROZMERY POZEMKU:
- dĺžka 40 m, šírka 29 m
INŽINIERSKE SIETE:
- elektrický rozvádzač priamo na pozemku
DOPLŇUJÚCE INFORMÁCIE:
- MHD v dosahu cca 400 m
CENA:
- 141.650,- € za celý pozemok
- 123,60 €/m2
VIAC AKO 15 ROKOV NA TRHU - KANCELÁRIA ROKA 2019, 2020
V prípade záujmu nás kontaktujte na tel. čísle 0907 030 623,
mailom na adrese ponuky@garantreal.sk
Navštívte nás aj osobne v kancelárii na Hlavnej ulici 70 v Prešove.
VIAC AKO 15 ROKOV NA TRHU - KANCELÁRIA ROKA 2019, 2020
V prípade záujmu nás kontaktujte na tel. čísle 0907 030 623,
mailom na adrese ponuky@garantreal.sk
Navštívte nás aj osobne v kancelárii na Hlavnej ulici 70 v Prešove.
ZÁKLADNÉ ÚDAJE:
- rovinatý až mierne svahovitý pozemok nachádzajúci sa pod lesom vedľa zástavby existujúcich rodinných domov, na okraji mestskej časti Prešov - Vydumanec
- slnečný pozemok
- v územnom pláne na výstavbu rodinných domov
- pozemok má pekný výhľad na okolitú prírodu
- na prístupovej ceste je zapísané vecné bremeno
ROZMERY POZEMKU:
- dĺžka 40 m, šírka 29 m
INŽINIERSKE SIETE:
- elektrický rozvádzač priamo na pozemku
DOPLŇUJÚCE INFORMÁCIE:
- MHD v dosahu cca 400 m
CENA:
- 141.650,- € za celý pozemok
- 123,60 €/m2
VIAC AKO 15 ROKOV NA TRHU - KANCELÁRIA ROKA 2019, 2020
V prípade záujmu nás kontaktujte na tel. čísle 0907 030 623,
mailom na adrese ponuky@garantreal.sk
Navštívte nás aj osobne v kancelárii na Hlavnej ulici 70 v Prešove.
VIAC AKO 15 ROKOV NA TRHU - KANCELÁRIA ROKA 2019, 2020
V prípade záujmu nás kontaktujte na tel. čísle 0907 030 623,
mailom na adrese ponuky@garantreal.sk
Navštívte nás aj osobne v kancelárii na Hlavnej ulici 70 v Prešove.
|
| |||||||||||||||||||||||||||||||
Kontaktovať inzerenta e-mailom
Kontaktovať e-mailom môže iba overený užívateľ.
Overenie je zadarmo.
Vaše telefónne číslo *
Kontaktovať e-mailom môže iba overený užívateľ.
Overenie je zadarmo.
Vaše telefónne číslo *





