REZERVOVANÉ Predaj rodinného domu – Senica, časť Dolné...
- [12.11. 2025]Zmazať/ Upraviť/ Topovať




























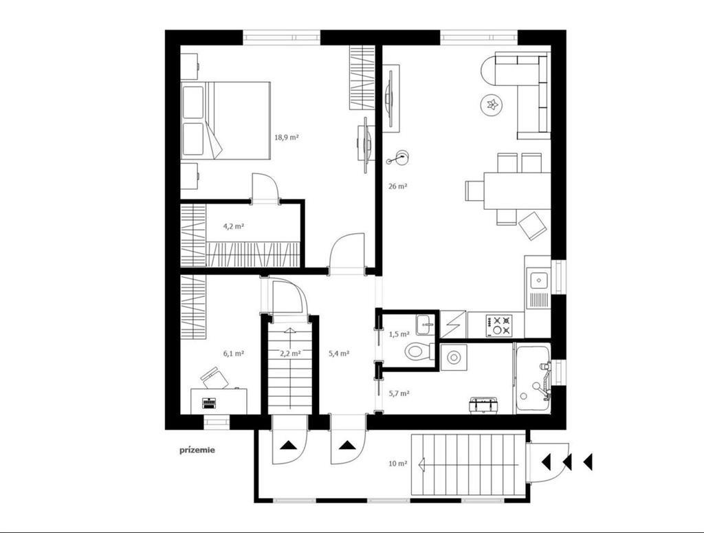
Ponúkame na predaj útulný rodinný dom nachádzajúci sa v pokojnej časti Senice – Dolné Suroviny. Dom má dve podlažia a je z polovice podpivničený. Na prízemí sa nachádza priestranná kuchyňa prepojená s obývačkou, spálňa, komora (vhodná aj ako pracovňa), kúpeľňa s veľkým sprchovacím kútom a samostatné WC. Na poschodí sú situované tri izby. Vstup do domu vedie cez priestrannú verandu, ktorá dodáva nehnuteľnosti príjemnú atmosféru.
Dom je možné využiť aj ako dvojgeneračné bývanie vďaka možnosti samostatného vstupu na poschodie.
V priebehu posledných rokov prešla nehnuteľnosť kompletnou rekonštrukciou – boli vymenené rozvody vody, odpadu a elektriny, zmenená dispozícia, nové omietky aj fasáda, interiérové dvere, obklad a dlažba, vymurovaná veranda. Kúrenie je na prízemí podlahové, na poschodí prostredníctvom infra panelov. Strecha bola menená v roku 2008. Teplú vodu zabezpečuje elektrický bojler s objemom 120 l. Dom je napojený na mestský vodovod.
Na pozemku sa nachádza nový altánok, ideálny na letné posedenia s rodinou a priateľmi. Rovinatý, oplotený pozemok s výmerou 597 m2 ponúka dostatok priestoru na pestovanie, detské ihrisko alebo bazén.
Zastavaná plocha domu je 100 m2, obytná plocha 137 m2. Lokalita má výborné dopravné spojenie – centrum Senice je vzdialené len 2,3 km a dostupné aj autobusom.
Tento dom je ideálny pre rodinu, ktorá hľadá pokojné bývanie s dobrým prístupom do mesta a priestranným dvorom pre oddych či záhradkárčenie.
Cena nehnuteľnosti je 147 000 €.
Neváhajte a dohodnite si obhliadku ešte dnes – možno práve tu nájdete svoj nový domov.
Dom je možné využiť aj ako dvojgeneračné bývanie vďaka možnosti samostatného vstupu na poschodie.
V priebehu posledných rokov prešla nehnuteľnosť kompletnou rekonštrukciou – boli vymenené rozvody vody, odpadu a elektriny, zmenená dispozícia, nové omietky aj fasáda, interiérové dvere, obklad a dlažba, vymurovaná veranda. Kúrenie je na prízemí podlahové, na poschodí prostredníctvom infra panelov. Strecha bola menená v roku 2008. Teplú vodu zabezpečuje elektrický bojler s objemom 120 l. Dom je napojený na mestský vodovod.
Na pozemku sa nachádza nový altánok, ideálny na letné posedenia s rodinou a priateľmi. Rovinatý, oplotený pozemok s výmerou 597 m2 ponúka dostatok priestoru na pestovanie, detské ihrisko alebo bazén.
Zastavaná plocha domu je 100 m2, obytná plocha 137 m2. Lokalita má výborné dopravné spojenie – centrum Senice je vzdialené len 2,3 km a dostupné aj autobusom.
Tento dom je ideálny pre rodinu, ktorá hľadá pokojné bývanie s dobrým prístupom do mesta a priestranným dvorom pre oddych či záhradkárčenie.
Cena nehnuteľnosti je 147 000 €.
Neváhajte a dohodnite si obhliadku ešte dnes – možno práve tu nájdete svoj nový domov.
|
| |||||||||||||||||||||||||||||||
Kontaktovať inzerenta e-mailom
Kontaktovať e-mailom môže iba overený užívateľ.
Overenie je zadarmo.
Vaše telefónne číslo *
Kontaktovať e-mailom môže iba overený užívateľ.
Overenie je zadarmo.
Vaše telefónne číslo *







