Výrobno-skladové priestory (1.214,03 m2, parking, KE-Juh)
- [12.11. 2025]Zmazať/ Upraviť/ Topovať


















145 | DOMIOS | špecialista na komerčné nehnuteľnosti od roku 1992 - ponúka na prenájom výrobno-skladové a obchodno-administratívne priestory v komerčnom priemyselnom areáli s polyfunkčným využitím v južnej časti mesta s výborným prístupom pre zásobovanie.
Na oplotenom a stráženom pozemku je komplex viacerých samostatných alebo vzájomne prepojených priemyselných hál s rôznou svetlou výškou, administratívne, sociálne a technické zázemie. Celková výmera všetkých priestorov je cca 3.000 m2. Areál / objekt má vlastnú studňu s rozvodom úžitkovej vody a TÚV, vlastnú úpravňu vody vhodnej na priemyselné použitie. Pitná voda má samostatný rozvod. Vykurovanie hál je riešené najmä plynovými infražiaričmi. Administratívne priestory majú plastové okná a sú vykurované podlahovým kúrením v kombinácii s radiátormi. Väčšina kancelárií je klimatizovaná. Všetky objekty a priestory sú monitorované kamerovým systémom, vstup je prostredníctvom čipov. V areáli je dostatočné množstvo parkovacích miest pre nájomníkov aj zákazníkov a výborný prístup pre osobné aj nákladné autá.
Ponúkané priestory tvoria 2 samostatné celky:
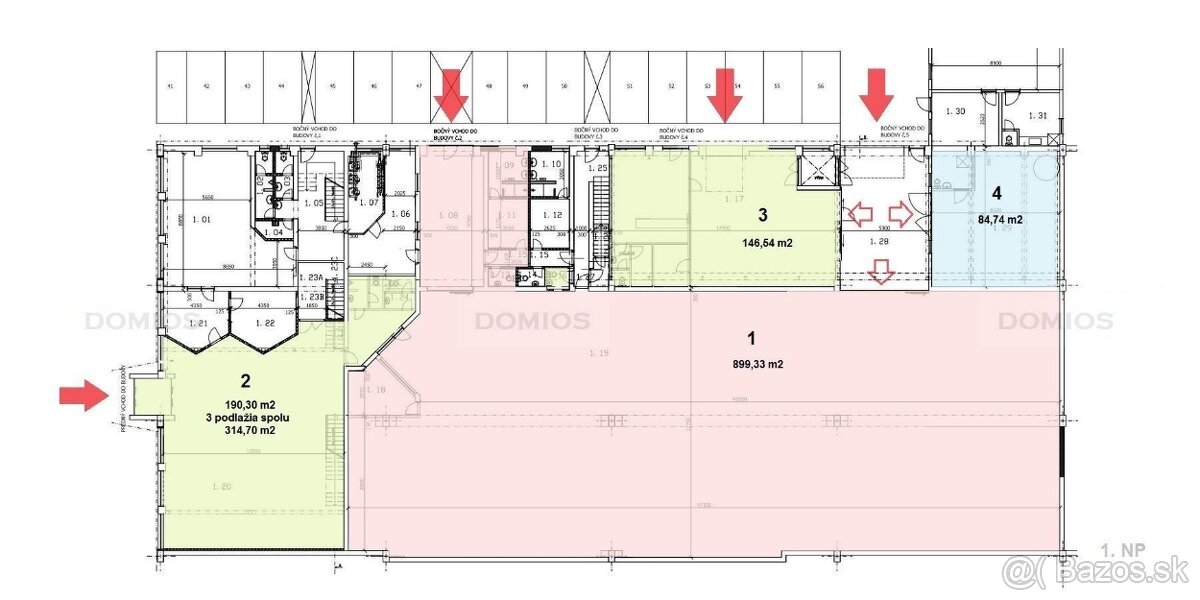
1. Prízemná (hlavná) výrobno-skladová hala (795,20 m2) s výškou 9 m s administratívno-sociálnym zázemím (spolu 899,33 m2), 2x vstup pre MV z exteriéru. Hala má kvalitné betónové podlahy, vykurovanie infražiaričmi a nové LED osvetlenie. Vstup do haly je možný 2 vstupmi - jedným menším a druhým zdieľaným umožňujúcim vjazd aj väčších motorových vozidiel. Hala má vlastné administratívne, sociálne, technické zázemie a kuchynku.
2. Obchodno - administratívny celok na 3 podlažiach (showroom prízemie 190,30 m2, kancelárie 124,40 m2, spolu 314,70 m2), vstup do showroomu priamo z exteriéru. V priestore je klimatizácia, podlahové vykurovanie, kuchynka a sociálne a technické zázemie.
Priestory sú vhodné na sklady, výrobu, predajňu, E-shop a pod.
---------------------------------------------
Ceny (bez DPH):
Nájomné: od 8.359,90 €/mes.
Médiá: podľa spotreby (samostatné meranie)
---------------------------------------------
Výsledná cena: od 8.359,90 €/mes. (bez médií)
---------------------------------------------
Parkovanie: spoplatnené
Depozit: 2-3x mesačný nájom
---------------------------------------------
DOMIOS je zmluvný partner vlastníka nehnuteľnosti poverený zabezpečením jej prenájmu. Služby DOMIOS pre záujemcov o uvedenú nehnuteľnosť sú zdarma. V prípade záujmu o prenájom, technické špecifikácie, aktuálny stav obsadenosti alebo obhliadku kontaktujte:
Ing. Peter Bubelíni, tel.č.: +421 (0) 903-636-903
V prípade našej nedostupnosti prosíme zaslať váš dopyt / ponuku / požiadavku ako SMS. Viac informácií o tejto a ďalších nehnuteľnostiach nájdete na stránke DOMIOS. sk. Na maily bez telefónneho čísla nereagujeme.
---------------------------------------------
Copyright (c) 1992-2025 | DOMIOS
---------------------------------------------
Na oplotenom a stráženom pozemku je komplex viacerých samostatných alebo vzájomne prepojených priemyselných hál s rôznou svetlou výškou, administratívne, sociálne a technické zázemie. Celková výmera všetkých priestorov je cca 3.000 m2. Areál / objekt má vlastnú studňu s rozvodom úžitkovej vody a TÚV, vlastnú úpravňu vody vhodnej na priemyselné použitie. Pitná voda má samostatný rozvod. Vykurovanie hál je riešené najmä plynovými infražiaričmi. Administratívne priestory majú plastové okná a sú vykurované podlahovým kúrením v kombinácii s radiátormi. Väčšina kancelárií je klimatizovaná. Všetky objekty a priestory sú monitorované kamerovým systémom, vstup je prostredníctvom čipov. V areáli je dostatočné množstvo parkovacích miest pre nájomníkov aj zákazníkov a výborný prístup pre osobné aj nákladné autá.
Ponúkané priestory tvoria 2 samostatné celky:
1. Prízemná (hlavná) výrobno-skladová hala (795,20 m2) s výškou 9 m s administratívno-sociálnym zázemím (spolu 899,33 m2), 2x vstup pre MV z exteriéru. Hala má kvalitné betónové podlahy, vykurovanie infražiaričmi a nové LED osvetlenie. Vstup do haly je možný 2 vstupmi - jedným menším a druhým zdieľaným umožňujúcim vjazd aj väčších motorových vozidiel. Hala má vlastné administratívne, sociálne, technické zázemie a kuchynku.
2. Obchodno - administratívny celok na 3 podlažiach (showroom prízemie 190,30 m2, kancelárie 124,40 m2, spolu 314,70 m2), vstup do showroomu priamo z exteriéru. V priestore je klimatizácia, podlahové vykurovanie, kuchynka a sociálne a technické zázemie.
Priestory sú vhodné na sklady, výrobu, predajňu, E-shop a pod.
---------------------------------------------
Ceny (bez DPH):
Nájomné: od 8.359,90 €/mes.
Médiá: podľa spotreby (samostatné meranie)
---------------------------------------------
Výsledná cena: od 8.359,90 €/mes. (bez médií)
---------------------------------------------
Parkovanie: spoplatnené
Depozit: 2-3x mesačný nájom
---------------------------------------------
DOMIOS je zmluvný partner vlastníka nehnuteľnosti poverený zabezpečením jej prenájmu. Služby DOMIOS pre záujemcov o uvedenú nehnuteľnosť sú zdarma. V prípade záujmu o prenájom, technické špecifikácie, aktuálny stav obsadenosti alebo obhliadku kontaktujte:
Ing. Peter Bubelíni, tel.č.: +421 (0) 903-636-903
V prípade našej nedostupnosti prosíme zaslať váš dopyt / ponuku / požiadavku ako SMS. Viac informácií o tejto a ďalších nehnuteľnostiach nájdete na stránke DOMIOS. sk. Na maily bez telefónneho čísla nereagujeme.
---------------------------------------------
Copyright (c) 1992-2025 | DOMIOS
---------------------------------------------
|
| |||||||||||||||||||||||||||||||
Kontaktovať inzerenta e-mailom
Kontaktovať e-mailom môže iba overený užívateľ.
Overenie je zadarmo.
Vaše telefónne číslo *
Kontaktovať e-mailom môže iba overený užívateľ.
Overenie je zadarmo.
Vaše telefónne číslo *