Celoročne obývateľný RD vhodný aj na rekreáciu, Belá-Dulice
- [12.11. 2025]Zmazať/ Upraviť/ Topovať






























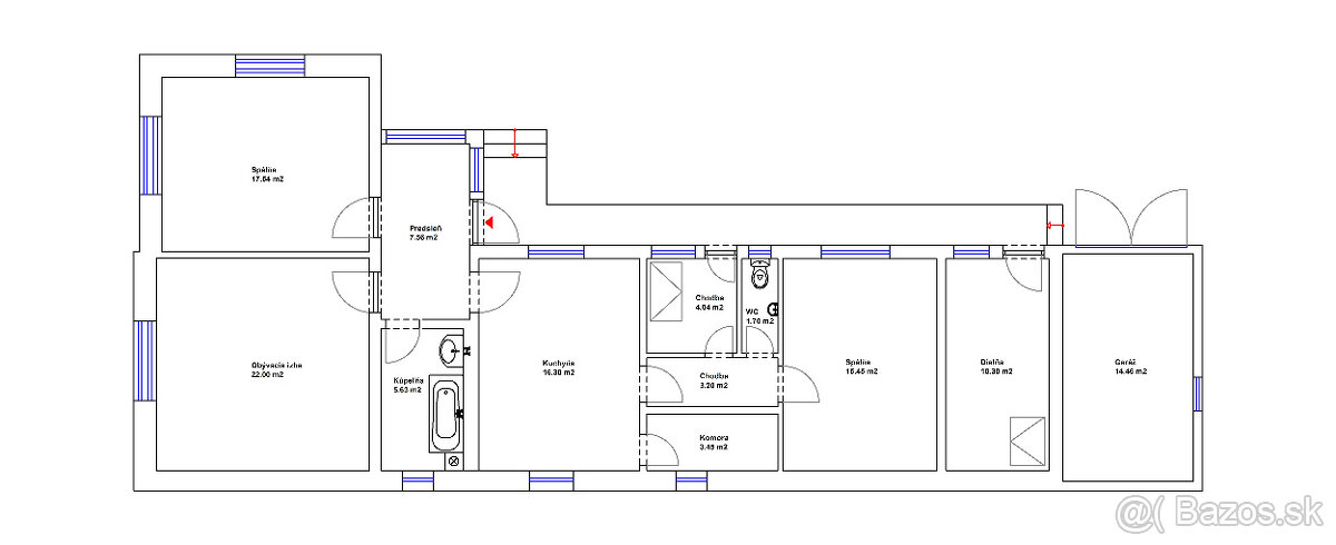
Ponúkame Vám na predaj v zastúpení klienta rodinný dom v obci Belá-Dulice, ktorý je vhodný aj na rekreáciu. Rodinný dom bol postavený v 60. rokoch, nachádza sa na pozemku o výmere 612 m² s úžitkovou plochou 121,63 m².
Čo Vám ponúka tento dom:
Veľkorysý pozemok: S rozlohou 612 m² poskytuje dostatok priestoru pre záhradu, relaxačnú zónu alebo dokonca výstavbu ďalších budov.
Pôvodné čaro: Dom si zachoval svoju autentickú atmosféru s pôvodnou drevenou podlahou a čiastočným podpivničením.
Praktické dispozície: Tri izby, dve predsiene, kuchyňa, kúpeľňa, WC, dielňa a garáž ponúkajú dostatok priestoru pre celú rodinu.
Možnosť rekonštrukcie: Dom je čiastočne rekonštruovaný a pripravený na kompletnú modernizáciu. Môžete si vytvoriť bývanie presne podľa svojich predstáv.
Tiché prostredie: Lokalita ponúka pokojné bývanie v blízkosti prírody.
Pre koho je tento dom vhodný:
Pre rodiny: Veľký pozemok a možnosť rekonštrukcie ponúkajú ideálne podmienky pre vytvorenie rodinného hniezda.
Pre milovníkov prírody: Rodinný dom je len kúsok od obľúbeného strediska Jasenská Dolina.
Pre investorov: Dom predstavuje zaujímavú investičnú príležitosť s potenciálom na zvýšenie hodnoty po rekonštrukcii.
Ak hľadáte dom, ktorý si môžete prispôsobiť podľa svojich predstáv a vytvoriť si v ňom útulný domov, neváhajte nás kontaktovať!
Miloslav Storoška - +421 948 687 339
Čo Vám ponúka tento dom:
Veľkorysý pozemok: S rozlohou 612 m² poskytuje dostatok priestoru pre záhradu, relaxačnú zónu alebo dokonca výstavbu ďalších budov.
Pôvodné čaro: Dom si zachoval svoju autentickú atmosféru s pôvodnou drevenou podlahou a čiastočným podpivničením.
Praktické dispozície: Tri izby, dve predsiene, kuchyňa, kúpeľňa, WC, dielňa a garáž ponúkajú dostatok priestoru pre celú rodinu.
Možnosť rekonštrukcie: Dom je čiastočne rekonštruovaný a pripravený na kompletnú modernizáciu. Môžete si vytvoriť bývanie presne podľa svojich predstáv.
Tiché prostredie: Lokalita ponúka pokojné bývanie v blízkosti prírody.
Pre koho je tento dom vhodný:
Pre rodiny: Veľký pozemok a možnosť rekonštrukcie ponúkajú ideálne podmienky pre vytvorenie rodinného hniezda.
Pre milovníkov prírody: Rodinný dom je len kúsok od obľúbeného strediska Jasenská Dolina.
Pre investorov: Dom predstavuje zaujímavú investičnú príležitosť s potenciálom na zvýšenie hodnoty po rekonštrukcii.
Ak hľadáte dom, ktorý si môžete prispôsobiť podľa svojich predstáv a vytvoriť si v ňom útulný domov, neváhajte nás kontaktovať!
Miloslav Storoška - +421 948 687 339
|
| |||||||||||||||||||||||||||||||
Kontaktovať inzerenta e-mailom
Kontaktovať e-mailom môže iba overený užívateľ.
Overenie je zadarmo.
Vaše telefónne číslo *
Kontaktovať e-mailom môže iba overený užívateľ.
Overenie je zadarmo.
Vaše telefónne číslo *









