Administratívne priestory, Trenčín – Sihoť I
- [12.11. 2025]Zmazať/ Upraviť/ Topovať


















Ponúkame na prenájom administratívne priestory nachádzajúce sa v trojpodlažnej budove na Sihoti I v Trenčíne, len 10 minút chôdze od centra mesta. Lokalita je tichá a dobre dostupná, s bezproblémovým parkovaním priamo na ulici (spoplatnené) alebo možnosťou prenájmu vyhradených parkovacích miest.
Dispozícia a stav:
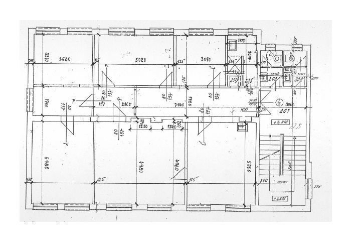
kancelárie s výmerou od 10 m² do 25 m²
možnosť prenájmu jednotlivo alebo ako celok (celková výmera cca 245 m²)
čiastočne zrekonštruované priestory:
PVC, plávajúca podlaha alebo koberce
plastové okná, vertikálne žalúzie
kúrenie
spoločné pánske a dámske WC
bez výťahu
Podmienky prenájmu:
nájomné: 9 €/m²/mesiac bez DPH
pri podpise zmluvy sa platí 3-mesačné nájomné vopred
výpovedná doba: 3 mesiace
záujemca neplatí províziu RK
Viac informácií Vám radi poskytneme v našej realitnej kancelárii v pracovné dni od 9:00 do 18:00 hod.
Dispozícia a stav:
kancelárie s výmerou od 10 m² do 25 m²
možnosť prenájmu jednotlivo alebo ako celok (celková výmera cca 245 m²)
čiastočne zrekonštruované priestory:
PVC, plávajúca podlaha alebo koberce
plastové okná, vertikálne žalúzie
kúrenie
spoločné pánske a dámske WC
bez výťahu
Podmienky prenájmu:
nájomné: 9 €/m²/mesiac bez DPH
pri podpise zmluvy sa platí 3-mesačné nájomné vopred
výpovedná doba: 3 mesiace
záujemca neplatí províziu RK
Viac informácií Vám radi poskytneme v našej realitnej kancelárii v pracovné dni od 9:00 do 18:00 hod.
|
| |||||||||||||||||||||||||||||||
Kontaktovať inzerenta e-mailom
Kontaktovať e-mailom môže iba overený užívateľ.
Overenie je zadarmo.
Vaše telefónne číslo *
Kontaktovať e-mailom môže iba overený užívateľ.
Overenie je zadarmo.
Vaše telefónne číslo *