Priemyselný areál s výrobnými halami, Beluša, okres Púchov
- [12.11. 2025]Zmazať/ Upraviť/ Topovať














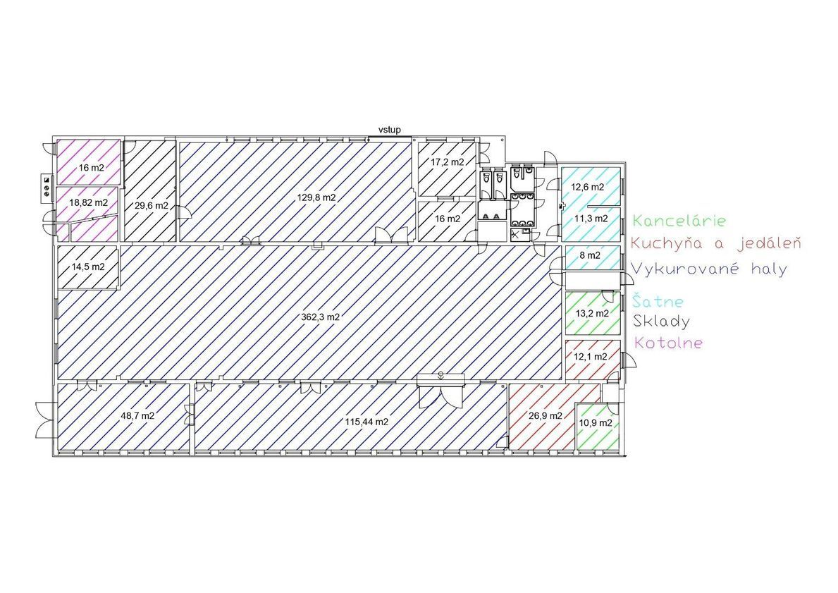
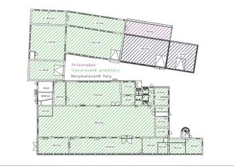
Ponúkame na prenájom priemyselný areál v Beluši, situovaný v strategickej lokalite v blízkosti diaľnice D1. Areál je ideálny pre výrobné alebo logistické prevádzky a ponúka kombináciu výrobných hál, skladových priestorov a administratívnej budovy.
Parametre nehnuteľnosti:
Celková výmera pozemku: 3 057 m²
Úžitková plocha vnútorných priestorov: 1 660 m²
Zastrešený prístrešok: 65 m²
Stav: udržiavaný, čiastočne rekonštruovaný
Materiál stavby: murovaný objekt
Podlaha: liaty betón (hrúbka 20 cm)
Výrobné priestory:
Vykurované aj nevykurované haly
Kúrenie na tuhé palivo + predpríprava na plyn
53 ks prípojok na stlačený vzduch
Elektrické prípojky 380 V
Odsávanie prachu a pilín
Internet: optická sieť
Objekt je napojený na vodovod, odpad riešený žumpou
Areál je oplotený, vybavený alarmom
Administratíva a zázemie:
Sociálne zariadenia, šatne, kuchynka, jedáleň
Administratívna budova: 6 kancelárií (3 prízemie + 3 poschodie)
Logistika a prístup:
Spevnená plocha vhodná na manipuláciu a nakládku/vykládku kamiónov (13,6 LKW)
Vlastné Parkovanie v rámci areálu
Výborná dopravná dostupnosť – priame napojenie na D1
Cena prenájmu:
Vykurované haly: 5 €/m²/mesiac + DPH + energie
Nevykurované haly: 3 €/m²/mesiac + DPH + energie
Kancelárie: 6 €/m²/mesiac + DPH + energie
Možnosť prenajať jednotlivé časti podľa potreby a prispôsobiť priestory špecifickým požiadavkám nájomcu
Pre viac informácií alebo obhliadku kontaktujte makléra.
Parametre nehnuteľnosti:
Celková výmera pozemku: 3 057 m²
Úžitková plocha vnútorných priestorov: 1 660 m²
Zastrešený prístrešok: 65 m²
Stav: udržiavaný, čiastočne rekonštruovaný
Materiál stavby: murovaný objekt
Podlaha: liaty betón (hrúbka 20 cm)
Výrobné priestory:
Vykurované aj nevykurované haly
Kúrenie na tuhé palivo + predpríprava na plyn
53 ks prípojok na stlačený vzduch
Elektrické prípojky 380 V
Odsávanie prachu a pilín
Internet: optická sieť
Objekt je napojený na vodovod, odpad riešený žumpou
Areál je oplotený, vybavený alarmom
Administratíva a zázemie:
Sociálne zariadenia, šatne, kuchynka, jedáleň
Administratívna budova: 6 kancelárií (3 prízemie + 3 poschodie)
Logistika a prístup:
Spevnená plocha vhodná na manipuláciu a nakládku/vykládku kamiónov (13,6 LKW)
Vlastné Parkovanie v rámci areálu
Výborná dopravná dostupnosť – priame napojenie na D1
Cena prenájmu:
Vykurované haly: 5 €/m²/mesiac + DPH + energie
Nevykurované haly: 3 €/m²/mesiac + DPH + energie
Kancelárie: 6 €/m²/mesiac + DPH + energie
Možnosť prenajať jednotlivé časti podľa potreby a prispôsobiť priestory špecifickým požiadavkám nájomcu
Pre viac informácií alebo obhliadku kontaktujte makléra.
|
| |||||||||||||||||||||||||||||||
Kontaktovať inzerenta e-mailom
Kontaktovať e-mailom môže iba overený užívateľ.
Overenie je zadarmo.
Vaše telefónne číslo *
Kontaktovať e-mailom môže iba overený užívateľ.
Overenie je zadarmo.
Vaše telefónne číslo *