Na prenájom veľký svetlý 2i byt Trnava-Zavar + parking
- [11.11. 2025]Zmazať/ Upraviť/ Topovať



























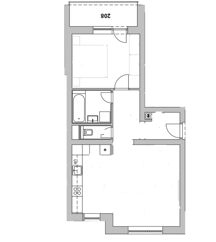
Na prenájom veľký 2izbový zariadený byt v Trnave-Zavare v novostavbe projekt Polianky.
Byt je na 2NP, má loggiu a balkón, samostatné kúrenie a ohrev vody /nový plynový kotol, je kompletne zariadený vrárane kuchynských spotrebičov, práčka. Interiér bytu je 56m2 + logia do parku + balkón do ulice. Pred domom je vyhradený parking.
Cena 730 E/mesiac komplet aj s energiami
Byt je na 2NP, má loggiu a balkón, samostatné kúrenie a ohrev vody /nový plynový kotol, je kompletne zariadený vrárane kuchynských spotrebičov, práčka. Interiér bytu je 56m2 + logia do parku + balkón do ulice. Pred domom je vyhradený parking.
Cena 730 E/mesiac komplet aj s energiami
|
| |||||||||||||||||||||||||||||||
Kontaktovať inzerenta e-mailom
Kontaktovať e-mailom môže iba overený užívateľ.
Overenie je zadarmo.
Vaše telefónne číslo *
Kontaktovať e-mailom môže iba overený užívateľ.
Overenie je zadarmo.
Vaše telefónne číslo *






