Bývalá reštaurácia v Hriňovej, aj na iné komerčné účely
- [11.11. 2025]Zmazať/ Upraviť/ Topovať

























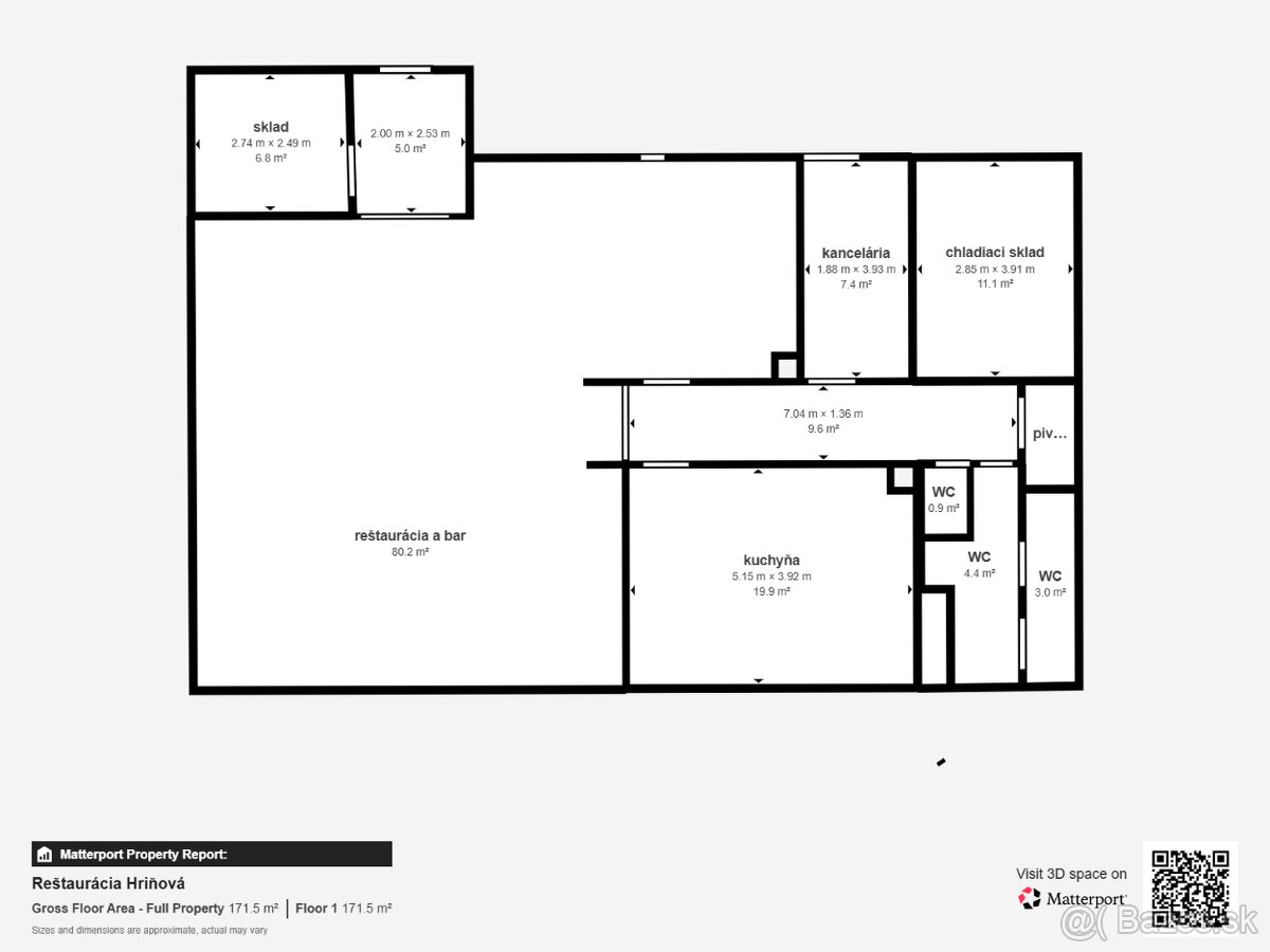
Blízko centra v Hriňovej je unikátny obchodný objekt, bývalá reštaurácia situovaná v pokojnej a obývanej časti obce, ktorý hľadá nového majiteľa. Tento priestor s výmerou 172 m² vám ponúka výnimočnú príležitosť rozbehnúť vlastný biznis alebo investovať do multifunkčného priestoru.
Objekt obsahuje veľkú sálu s barom, ideálnu pre rôzne spoločenské či komerčné využitia, kuchyňu, kanceláriu, chladiarenský sklad, toalety pre hostí aj personál a pivnicu pre skladovanie. Pred budovou je dostatočný priestor určený na terasu, ktorá sa dá počas letných mesiacov príjemne využiť na sedenie alebo podujatia.
Veľkorysý pozemok o rozlohe 635 m² zabezpečuje prístupovú cestu a vlastné parkovisko pre zákazníkov alebo zamestnancov, čo výrazne zvyšuje komfort a atraktivitu miesta. Objekt je pripojený na všetky inžinierske siete vrátane plynu, čo zaručuje efektívnu prevádzku.
Stav nehnuteľnosti je pôvodný, no zachovalý. Necháva nový priestor pre úpravy podľa vašich predstáv a potrieb.
Tento obchodný objekt je ideálny nielen na reštauračnú prevádzku, ale aj pre iné komerčné účely ako skladovanie, predajňa alebo výrobňa. Stačí si ho prispôsobiť podľa svojich predstáv. Vďaka svojej polohe ponúka ideálne podmienky na rozvoj podnikania v blízkosti centra Hriňovej.
Neváhajte a využite túto príležitosť na investíciu s množstvom potenciálu v rozvíjajúcej sa lokalite.
Kontakt: Zdenka Sivičeková, Riešime bývanie
Objekt obsahuje veľkú sálu s barom, ideálnu pre rôzne spoločenské či komerčné využitia, kuchyňu, kanceláriu, chladiarenský sklad, toalety pre hostí aj personál a pivnicu pre skladovanie. Pred budovou je dostatočný priestor určený na terasu, ktorá sa dá počas letných mesiacov príjemne využiť na sedenie alebo podujatia.
Veľkorysý pozemok o rozlohe 635 m² zabezpečuje prístupovú cestu a vlastné parkovisko pre zákazníkov alebo zamestnancov, čo výrazne zvyšuje komfort a atraktivitu miesta. Objekt je pripojený na všetky inžinierske siete vrátane plynu, čo zaručuje efektívnu prevádzku.
Stav nehnuteľnosti je pôvodný, no zachovalý. Necháva nový priestor pre úpravy podľa vašich predstáv a potrieb.
Tento obchodný objekt je ideálny nielen na reštauračnú prevádzku, ale aj pre iné komerčné účely ako skladovanie, predajňa alebo výrobňa. Stačí si ho prispôsobiť podľa svojich predstáv. Vďaka svojej polohe ponúka ideálne podmienky na rozvoj podnikania v blízkosti centra Hriňovej.
Neváhajte a využite túto príležitosť na investíciu s množstvom potenciálu v rozvíjajúcej sa lokalite.
Kontakt: Zdenka Sivičeková, Riešime bývanie
|
| |||||||||||||||||||||||||||||||
Kontaktovať inzerenta e-mailom
Kontaktovať e-mailom môže iba overený užívateľ.
Overenie je zadarmo.
Vaše telefónne číslo *
Kontaktovať e-mailom môže iba overený užívateľ.
Overenie je zadarmo.
Vaše telefónne číslo *




