Administratívne priestory,kancelárie
- [11.11. 2025]Zmazať/ Upraviť/ Topovať










V modernej administratívnej budove 3B Office na Zvolenskej ceste ponúkame na prenájom kancelárske priestory, ktoré sú vhodné na okamžité nasťahovanie. Výhodou je možnosť ich úpravy podľa preferencií.
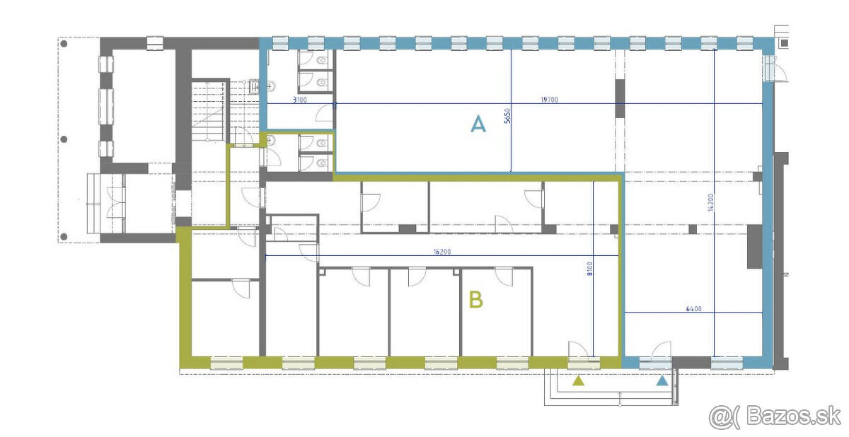
VOĽNÝ PRIESTOR A – 172,73 m²
Nebytový priestor: 162,10 m²
Sociálne zariadenie – 10,63 m²
Ideálne riešenie pre administratívnu, alebo účtovnú firmu, realitnú spoločnosť, vzdelávanie, IT firmu a pod. Priestory je možné prispôsobiť individuálnym požiadavkám nájomcu.
O budove 3B Office:
-Objekt má tri nadzemné podlažia
-Prízemie je určené pre komerčné využitie
-Na dvoch poschodiach sa nachádzajú kancelárie, kuchynky a sociálne zariadenia
-Priestranné parkovisko hneď pri budove – bezproblémové parkovanie pre klientov aj zamestnancov
-Výborné napojenie na diaľnicu
-Bezpečnostné prvky – kamerový systém a napojenie na pult centrálnej ochrany
Výhody pre nájomcov:
-Nové, štýlové priestory v kvalitnej administratívnej budove
-Možnosť okamžitého využitia
-Variabilné riešenie vnútorného priestoru
-Dostupné a bezplatné parkovanie
-Výborná dopravná dostupnosť a strategická poloha
-Zabezpečený objekt
Máte záujem o obhliadku?
Neváhajte nás kontaktovať – radi vám poskytneme bližšie informácie, cenovú ponuku a nastavíme podmienky prenájmu podľa vašich predstáv.
VOĽNÝ PRIESTOR A – 172,73 m²
Nebytový priestor: 162,10 m²
Sociálne zariadenie – 10,63 m²
Ideálne riešenie pre administratívnu, alebo účtovnú firmu, realitnú spoločnosť, vzdelávanie, IT firmu a pod. Priestory je možné prispôsobiť individuálnym požiadavkám nájomcu.
O budove 3B Office:
-Objekt má tri nadzemné podlažia
-Prízemie je určené pre komerčné využitie
-Na dvoch poschodiach sa nachádzajú kancelárie, kuchynky a sociálne zariadenia
-Priestranné parkovisko hneď pri budove – bezproblémové parkovanie pre klientov aj zamestnancov
-Výborné napojenie na diaľnicu
-Bezpečnostné prvky – kamerový systém a napojenie na pult centrálnej ochrany
Výhody pre nájomcov:
-Nové, štýlové priestory v kvalitnej administratívnej budove
-Možnosť okamžitého využitia
-Variabilné riešenie vnútorného priestoru
-Dostupné a bezplatné parkovanie
-Výborná dopravná dostupnosť a strategická poloha
-Zabezpečený objekt
Máte záujem o obhliadku?
Neváhajte nás kontaktovať – radi vám poskytneme bližšie informácie, cenovú ponuku a nastavíme podmienky prenájmu podľa vašich predstáv.
|
| |||||||||||||||||||||||||||||||
Kontaktovať inzerenta e-mailom
Kontaktovať e-mailom môže iba overený užívateľ.
Overenie je zadarmo.
Vaše telefónne číslo *
Kontaktovať e-mailom môže iba overený užívateľ.
Overenie je zadarmo.
Vaše telefónne číslo *