PREDANÝ - Na predaj 1 izbový byt na ulici Krivá, Košice - Ju
- [11.11. 2025]Zmazať/ Upraviť/ Topovať
















PREDANÝ!!!
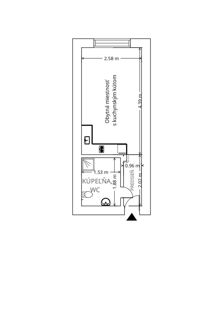
Ponúkame na predaj 1-izbový byt na PERFEKTNEJ adrese v Košiciach. Ide o moderne zrekonštruovaný byt, situovaný vo vyhľadávanej lokalite na Krivej ulici č. 18, len na skok od centra mesta. Tento byt je ideálny nielen na bývanie, ale aj ako investičná príležitosť na krátkodobý či dlhodobý prenájom. Byt má úžitkovú plochu 16 m² a nachádza sa na IDEÁLNOM 2. poschodí z celkovo 9. Orientácia je juhozápadná. BYT JE KOMPLETNE VYBAVENÝ AKO VIDÍTE NA FOTOGRAFIÁCH !!!
Byt je po kompletnej rekonštrukcii, ktorá zahŕňa výmenu všetkých rozvodov (voda, odpad, elektrina), nové omietky, znížené sadrokartónové stropy, plávajúce podlahy, plastové okná, interiérové dvere a bezpečnostné vchodové dvere. Kúpeľňa je kompletne zrekonštruovaná s novým obkladom, dlažbou a sanitou. Bytový dom je kompletne zrekonštruovaný, vrátane výmenených stúpačiek, vstupných priestorov, brány, schránok a má dva nové výťahy. Dispozične byt ponúka 1 izbu spojenú s kuchynským kútom, malú predsieň a kúpeľňu spojenú s WC.
Cena 128.000 EUR, vrátane provízie pre sprostredkovateľa. Ponúkame aj služby hypotekárneho poradenstva, kde Vám pomôžeme získať najlepšiu možnú hypotéku na trhu.
Ponúkame na predaj 1-izbový byt na PERFEKTNEJ adrese v Košiciach. Ide o moderne zrekonštruovaný byt, situovaný vo vyhľadávanej lokalite na Krivej ulici č. 18, len na skok od centra mesta. Tento byt je ideálny nielen na bývanie, ale aj ako investičná príležitosť na krátkodobý či dlhodobý prenájom. Byt má úžitkovú plochu 16 m² a nachádza sa na IDEÁLNOM 2. poschodí z celkovo 9. Orientácia je juhozápadná. BYT JE KOMPLETNE VYBAVENÝ AKO VIDÍTE NA FOTOGRAFIÁCH !!!
Byt je po kompletnej rekonštrukcii, ktorá zahŕňa výmenu všetkých rozvodov (voda, odpad, elektrina), nové omietky, znížené sadrokartónové stropy, plávajúce podlahy, plastové okná, interiérové dvere a bezpečnostné vchodové dvere. Kúpeľňa je kompletne zrekonštruovaná s novým obkladom, dlažbou a sanitou. Bytový dom je kompletne zrekonštruovaný, vrátane výmenených stúpačiek, vstupných priestorov, brány, schránok a má dva nové výťahy. Dispozične byt ponúka 1 izbu spojenú s kuchynským kútom, malú predsieň a kúpeľňu spojenú s WC.
Cena 128.000 EUR, vrátane provízie pre sprostredkovateľa. Ponúkame aj služby hypotekárneho poradenstva, kde Vám pomôžeme získať najlepšiu možnú hypotéku na trhu.
|
| |||||||||||||||||||||||||||||||
Kontaktovať inzerenta e-mailom
Kontaktovať e-mailom môže iba overený užívateľ.
Overenie je zadarmo.
Vaše telefónne číslo *
Kontaktovať e-mailom môže iba overený užívateľ.
Overenie je zadarmo.
Vaše telefónne číslo *