Prenajmeme kancelárske priestory v centre mesta
- [11.11. 2025]Zmazať/ Upraviť/ Topovať






#3840
Prenajmeme kancelárske priestory v centre mesta na Šafárikovom nám. v historickom dome. Kancelárie sú po kompletnej rekonštrukcii, oproti Eurovea.
- 1. poschodie: 106,8 m2 - predsieň, toaleta, 2x sklad/komora, kuchynka, 4x kancelária (11,2 m2, 19,1 m2, 28,8 m2, 26,5 m2)
- 1. poschodie: 50,6 m2 - 2x kancelária (15,3 m2, 23,8 m2), sklad/komora, predsieň
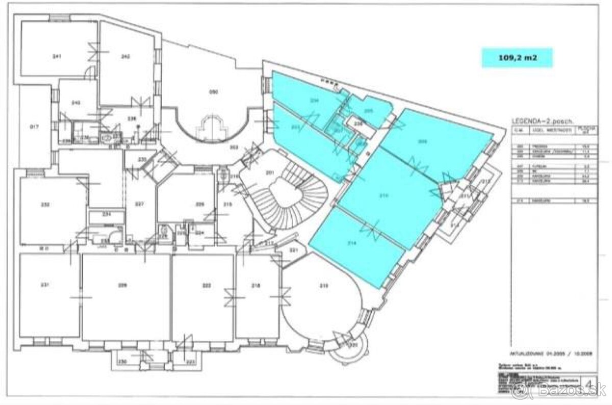
- 2. poschodie: 109,2 m2 - predsieň, chodba, kúpeľňa, toaleta, 3x kancelária (24,2 m2, 29,4 m2, 19,5 m2), kancelária/kuchynka (11,4 m2)
Cena: dohodou
Kontakt: 0948000009
Prenajmeme kancelárske priestory v centre mesta na Šafárikovom nám. v historickom dome. Kancelárie sú po kompletnej rekonštrukcii, oproti Eurovea.
- 1. poschodie: 106,8 m2 - predsieň, toaleta, 2x sklad/komora, kuchynka, 4x kancelária (11,2 m2, 19,1 m2, 28,8 m2, 26,5 m2)
- 1. poschodie: 50,6 m2 - 2x kancelária (15,3 m2, 23,8 m2), sklad/komora, predsieň
- 2. poschodie: 109,2 m2 - predsieň, chodba, kúpeľňa, toaleta, 3x kancelária (24,2 m2, 29,4 m2, 19,5 m2), kancelária/kuchynka (11,4 m2)
Cena: dohodou
Kontakt: 0948000009
|
| |||||||||||||||||||||||||||||||
Kontaktovať inzerenta e-mailom
Kontaktovať e-mailom môže iba overený užívateľ.
Overenie je zadarmo.
Vaše telefónne číslo *
Kontaktovať e-mailom môže iba overený užívateľ.
Overenie je zadarmo.
Vaše telefónne číslo *
Podobné inzeráty
Kancelársky priestor 35 m², Gorkého ul. Staré Mesto, voľný i - [11.11. 2025]Číslo ponuky : 190476, Kontakt: Eduard Číž, Telefón : 0910 706 802, E-mail : ciz@vasereality.sk
Realitná kancelária Vaše Reality Vám ponúka na prenájom kancelársky priestor nachádzajúci sa na ulici Gorkého. v m.č. Staré Mesto. v blízkosti Slovenského národného divadla. Z kancelárie je krásny výhľad ...
530 €
Bratislava
811 01
811 01
32 x
Označiť zlý inzerát Chybnú kategóriu Ohodnotiť užívateľa Zmazať/Upraviť/Topovať
Kancelársky priestor 219 m², Gorkého ul. Staré Mesto, voľný - [11.11. 2025]Ak hľadáte krásny, sofistikovaný a moderný kancelársky a administratívny priestor na prenájom, priestor, ktorý dodá Vašej firme prestíž nielen svojou polohou v úplnom centre mesta, ale aj krásnym a moderným priestorom, v ktorom sa kancelárie nachádzajú. Z kancelárie je krásny výhľad na bratislavské ...
2 590 €
Bratislava
811 01
811 01
25 x
Označiť zlý inzerát Chybnú kategóriu Ohodnotiť užívateľa Zmazať/Upraviť/Topovať
Kancelársky priestor 110 m², Gorkého ul. Staré Mesto, voľný - [11.11. 2025]Realitná kancelária Vaše Reality Vám ponúka na prenájom kancelársky priestor nachádzajúci sa na ulici Gorkého. v m.č. Staré Mesto. v blízkosti Slovenského národného divadla. Z kancelárie je krásny výhľad na bratislavské Staré Mesto.
ZÁKLADNÉ INFORMÁCIE:
• Celková rozlohu 110,25 m²
• Situované na 3. ...
1 100 €
Bratislava
811 01
811 01
26 x
Označiť zlý inzerát Chybnú kategóriu Ohodnotiť užívateľa Zmazať/Upraviť/Topovať
PRENÁJOM kancelárií Nám. SNP, od 20 m2 - 353 m2 - [4.11. 2025]Ponúkame na prenájom kancelárie v administratívnej budove na prestížnom Námestí SNP. Táto lokalita poskytuje vynikajúcu dostupnosť ako aj blízkosť k hlavným mestským dopravným uzlom. V budove sa nachádzajú dva samostatné vchody dva osobné výťahy. Oba vchody sú prístupné a zabezpečujú efektívny príst ...
421 €
Bratislava
811 01
811 01
347 x
Označiť zlý inzerát Chybnú kategóriu Ohodnotiť užívateľa Zmazať/Upraviť/Topovať
Obchodno- kancelársky priestor s výkladom na Nám. slobody - [4.11. 2025]Ponúkame na prenájom reprezentatívny obchodno- kancelársky priestor s výkladom do ulice na v Starom Meste na Nám. slobody.
Výhodou je recepcia vo vstupnej hale, odkiaľ sa vchádza aj do kancelárskeho priestoru. Rovnako aj toalety sú hneď za recepciou. Do budovy sa dá vojsť aj zo zadnej strany, kde ...
450 €
Bratislava
811 01
811 01
369 x
Označiť zlý inzerát Chybnú kategóriu Ohodnotiť užívateľa Zmazať/Upraviť/Topovať
HALO reality - Prenájom, kancelársky priestor Bratislava Sta - [4.11. 2025]Ponúkame na kancelársky priestor situovaný na 4/4 nadzemných podlaží (4/4 NP) v historickej administratívnej budove s výmerou 57,95 m2 v Bratislave m.č. Staré Mesto. Kancelársky priestor sa skladá z 2 prechodných kancelárií, z haly, chodby a zdieľaných toaliet.
VYUŽITE NIŽŠIU CENU PRI PRENÁJME ...
1 076 €
Bratislava
811 01
811 01
222 x
Označiť zlý inzerát Chybnú kategóriu Ohodnotiť užívateľa Zmazať/Upraviť/Topovať
Bez Provízie RK. Voľné Kancelárie v budove na Námestí SNP. - [4.11. 2025]Bez provízie Realitnej kancelárie !
Ponúkame na prenájom kancelárske priestory v budove na Námestí SNP v Bratislave - Starom Meste.
Aktuálne voľné kancelárie a cien vrátane energií:
3NP / kancelária č. A212/ 24,79 m2 / cena za m2: 12,00 € / celková cena nájmu vrátane energií a správy budov ...
600 €
Bratislava
811 01
811 01
325 x
Označiť zlý inzerát Chybnú kategóriu Ohodnotiť užívateľa Zmazať/Upraviť/Topovať
PRENÁJOM kancelárie - Michalská od 42 m2, BA I - [3.11. 2025]Ponúkame na prenájom dve kancelárie o rozlohe 41,80 m2 na 2. poschodí na Michalskej ulici v administratívnej budove v Bratislave.
Zdieľaná kuchynka a WC na rovnakom poschodí.
Cena: 500 .- EUR + fixné služby 150.- EUR a zálohové platby za elektrickú energiu 50.-EUR, ktoré budú vyúčtované na zákla ...
500 €
Bratislava
811 01
811 01
64 x
Označiť zlý inzerát Chybnú kategóriu Ohodnotiť užívateľa Zmazať/Upraviť/Topovať
I 2 kancelárie, vysoké stropy, krásna budova na námestí, BA - [30.10. 2025]Realitná spol. LEXXUS ponúka na PRENÁJOM 2 samostatné kancelári so skladom v samom centre BA, na Hurbanovom nám. 1
Je to kompletne krásne zrekonštruovaná a reprezentatívna budova v centre Bratislavy, vybavená: klimatizácia, odvetranie, bezpečnostný systém, štruktúrovaná kabeláž, tel. ústredňa, in ...
550 €
Bratislava
811 01
811 01
467 x
Označiť zlý inzerát Chybnú kategóriu Ohodnotiť užívateľa Zmazať/Upraviť/Topovať
3D, prenájom, unikátne kancel. priestory Zuckermandel, Staré - [30.10. 2025]PROSÍM POZRITE SI 3D VIRTUÁLNU PREHLIADKU
Realitná kancelária Grahams Vám v zastúpení klienta ponúka na prenájom unikátne kancelárske priestory s výmerou od 10 m2 na 1. poschodí 5 poschodového polyfunkčného objektu Zuckermandel na Žižkovej (Žižkova) ulici, mestská časť Staré Mesto.
Dispozícia ...
1 €
Bratislava
811 01
811 01
469 x
Označiť zlý inzerát Chybnú kategóriu Ohodnotiť užívateľa Zmazať/Upraviť/Topovať