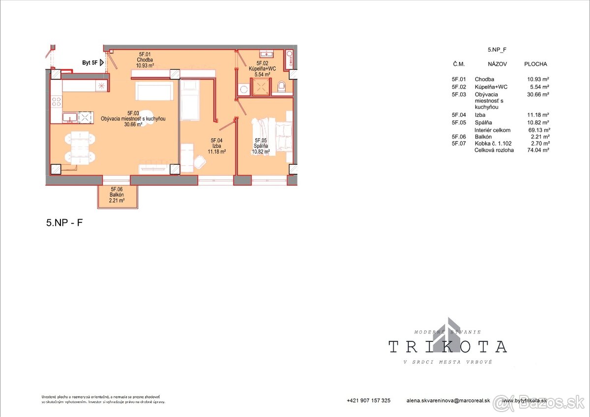
3-izbový byt TYP ,,F" v TRIKOTE VO VRBOVOM, 71,26 m2, balkó
- [11.11. 2025]Zmazať/ Upraviť/ Topovať





















LIMITOVANÁ AKCIA len na 3-izbové byty typ,, A,B,E,F,,
Vyberte si Vaše nové bývanie v modernom NADŠTANDARTNOM PROJEKTE TRIKOTA vo Vrbovom, tento rezidenčný projekt prináša ponuku 44 bytov na ôsmich nadzemných podlažiach a môžete si vybrať zo 6 typov bytov, v ponuke sú dva typy 2-izbových a štyri typy 3-izbových bytov, ktoré sa po poschodiach opakujú. Výnimku tvorí 9.poschodie, kde sa nachádzajú dva veľkometrážne luxusné byty z toho jeden 4-izbový s terasou, s nádherným výhľadom.
Viac informácií o tomto projekte nájdete na: https://bytytrikota.sk/
Byty v projekte TRIKOTA sa predávajú ako holobyty alebo v štandarde, budú dokončené podľa vlastného výberu budúcich majiteľov. Štandard si môžu vybrať zo širokej ponuky z katalógu štandardov. Štandard zahŕňa: plávajúcu podlahu, interiérové dvere a zárubne, obklady, dlažbu v kúpeľni so sanitou a batériami, vypínače a zásuvky Legrand Niolé.
CENA HOLOBYTU ZAHŔŇA:
- protipožiarne vstupné dvere s bezpečnostným kovaním a vložkou,
- odhlučnené stropy,
- vysoké stropy, svetlá výška 2,8 m,
- sadrové interiérové omietky,
- podlahové teplovodné vykurovanie, v kúpeľniach elektrické podlahové vykurovanie + radiátor,
- predpríprava na klimatizačné jednotky,
- elektricky ovládané vonkajšie hliníkové žalúzie na každom okne,
- predpríprava na kuchynskú linku,
- kompletná elektroinštalácia vrátane vypínačov a zásuviek,
- murovaná pivničná kobka,
- balkón v každom byte,
- bytový dom disponuje 2 kvalitnými výťahmi Schindler.
Projekt je navrhnutý tak, aby zabezpečil dostatok parkovacích miest pre všetkých jeho rezidentov. K bytu je možnosť dokúpenia 1 parkovacieho miesta v CENE: 6000 €.
V okolí bytového domu sú zrealizované chodníky a parkovacie plochy, výsadba zelene, relaxačná zóna pre rezidentov. Bytový dom TRIKOTA je dokončený v energetickej triede A0.
MÁME SKOLAUDOVANÉ!!!
Viac informácií o tomto byte TYPU ,,F" ako aj o projekte nájdete na: https://bytytrikota.sk/predaj-bytov/byt-3f
V prípade záujmu ma prosím kontaktujte: Ing. ALENA ŠKVARENINOVÁ 0907/157325 alebo alena.skvareninova@marcoreal.sk
Vyberte si Vaše nové bývanie v modernom NADŠTANDARTNOM PROJEKTE TRIKOTA vo Vrbovom, tento rezidenčný projekt prináša ponuku 44 bytov na ôsmich nadzemných podlažiach a môžete si vybrať zo 6 typov bytov, v ponuke sú dva typy 2-izbových a štyri typy 3-izbových bytov, ktoré sa po poschodiach opakujú. Výnimku tvorí 9.poschodie, kde sa nachádzajú dva veľkometrážne luxusné byty z toho jeden 4-izbový s terasou, s nádherným výhľadom.
Viac informácií o tomto projekte nájdete na: https://bytytrikota.sk/
Byty v projekte TRIKOTA sa predávajú ako holobyty alebo v štandarde, budú dokončené podľa vlastného výberu budúcich majiteľov. Štandard si môžu vybrať zo širokej ponuky z katalógu štandardov. Štandard zahŕňa: plávajúcu podlahu, interiérové dvere a zárubne, obklady, dlažbu v kúpeľni so sanitou a batériami, vypínače a zásuvky Legrand Niolé.
CENA HOLOBYTU ZAHŔŇA:
- protipožiarne vstupné dvere s bezpečnostným kovaním a vložkou,
- odhlučnené stropy,
- vysoké stropy, svetlá výška 2,8 m,
- sadrové interiérové omietky,
- podlahové teplovodné vykurovanie, v kúpeľniach elektrické podlahové vykurovanie + radiátor,
- predpríprava na klimatizačné jednotky,
- elektricky ovládané vonkajšie hliníkové žalúzie na každom okne,
- predpríprava na kuchynskú linku,
- kompletná elektroinštalácia vrátane vypínačov a zásuviek,
- murovaná pivničná kobka,
- balkón v každom byte,
- bytový dom disponuje 2 kvalitnými výťahmi Schindler.
Projekt je navrhnutý tak, aby zabezpečil dostatok parkovacích miest pre všetkých jeho rezidentov. K bytu je možnosť dokúpenia 1 parkovacieho miesta v CENE: 6000 €.
V okolí bytového domu sú zrealizované chodníky a parkovacie plochy, výsadba zelene, relaxačná zóna pre rezidentov. Bytový dom TRIKOTA je dokončený v energetickej triede A0.
MÁME SKOLAUDOVANÉ!!!
Viac informácií o tomto byte TYPU ,,F" ako aj o projekte nájdete na: https://bytytrikota.sk/predaj-bytov/byt-3f
V prípade záujmu ma prosím kontaktujte: Ing. ALENA ŠKVARENINOVÁ 0907/157325 alebo alena.skvareninova@marcoreal.sk
|
| |||||||||||||||||||||||||||||||
Kontaktovať inzerenta e-mailom
Kontaktovať e-mailom môže iba overený užívateľ.
Overenie je zadarmo.
Vaše telefónne číslo *
Kontaktovať e-mailom môže iba overený užívateľ.
Overenie je zadarmo.
Vaše telefónne číslo *
