TRNAVA REALITY - Podnikajte ihneď vo vlastnom - Na prenájom
- [10.11. 2025]Zmazať/ Upraviť/ Topovať






























TRNAVA REALITY - ponúka na prenájom modernú novostavbu administratívnej budovy v Trnave, na Zavarskej ulici.
-možnosť prenajať budovu separátne po poschodiach, alebo ako celok
-aktuálne je priestor na prenájom v štádiu holopriestor
-úprava priestoru podľa potrieb klienta, na mieru
POPIS:
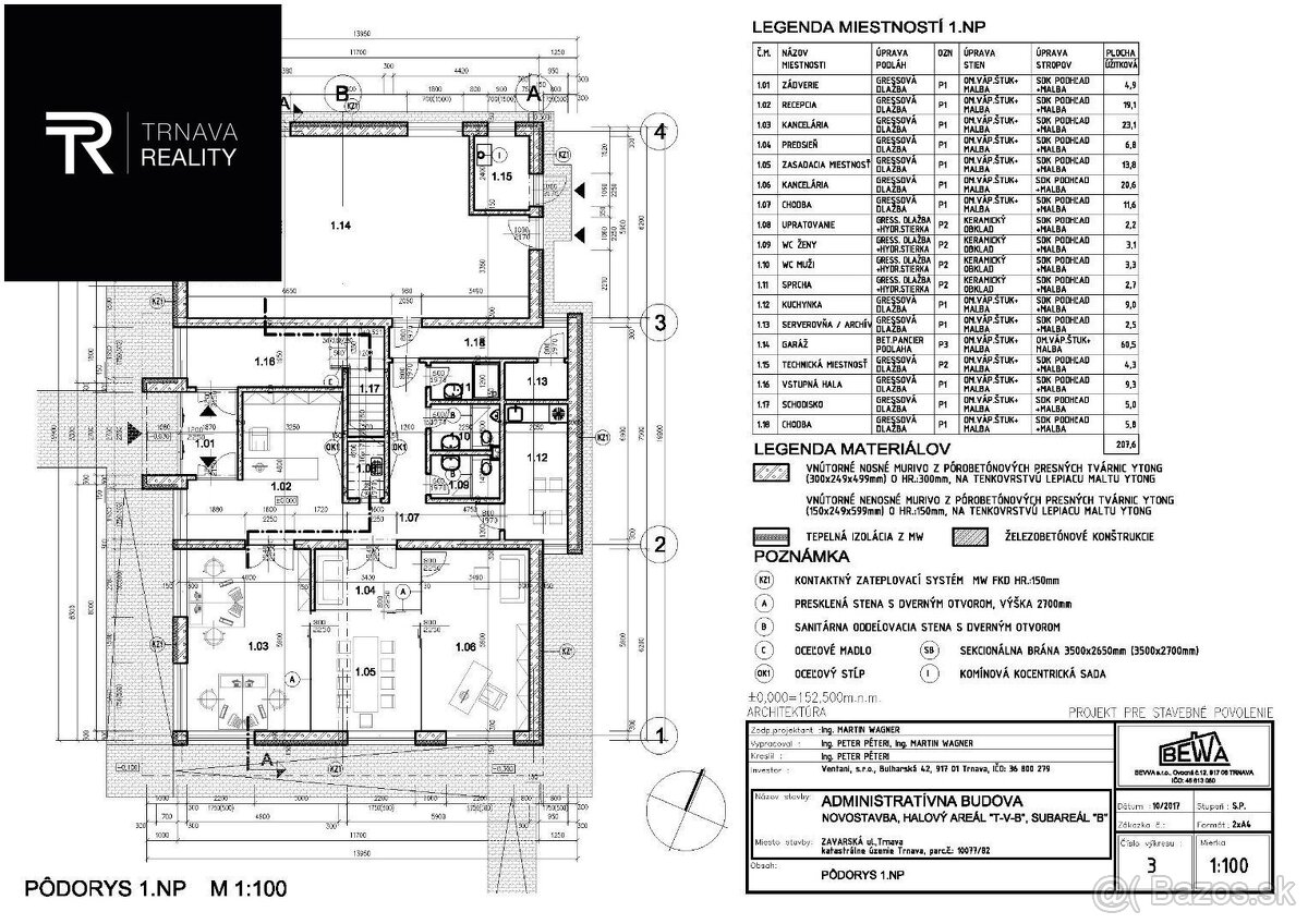
- administratívna budova je 3-podlažná bez podpivničenia
- budova je funkčne navrhnutá pre oddelenie podlaží a ich samostatné užívanie
- budova môže slúžiť pre administratívne potreby s možnosťou ľahkých montážnych nevýrobných činností
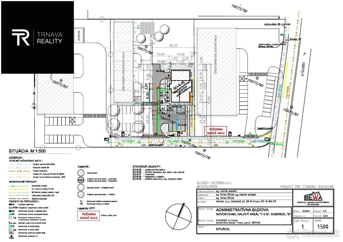
- nachádza sa v priemyselnej zóne
- v novovybudovanej komerčnej zóne s výborným napojením na cestu 1.tr. I/51 a následne R1
ROZMERY:
- celková plocha pozemku 1172m2
- pozemok je pravidelného obdĺžnikového tvaru s rozmermi cca 26m x 46m
- zastavaná plocha 279,1m2
- spevnená plocha 593 m2 (manipulačná plocha 253,6 m2, parkovacie plochy 207,3 m2, chodníky 132,4 m2)
- inžinierske siete zavedené do nehnuteľnosti (voda, elektrina, plyn, kanalizácia)
SUMÁR PLÔCH:
- ÚŽITKOVÁ PLOCHA CELKOM 494m2
- 1NP = 207,6 m2
- 2.NP = 159,2 m2
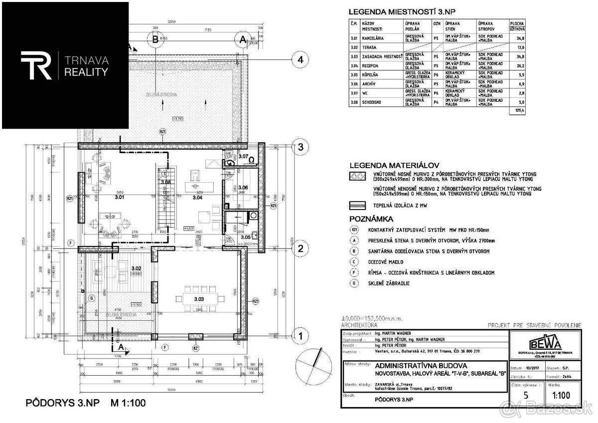
- 3.NP = 129,1 m2
- kancelárske priestory - 145,5m2
- komunikačné priestory - 153,3m2
- hygienické zariadenia - 24,7m2
- servisné priestory - 79,9m2
- zázemie pre zamestnancov 24,6m2
- terasa (z možnosťou zelene) 62,8m2
- zelené strechy 90,1m2
- parkovacie miesta
VÝHODY:
- Nehnuteľnosť sa nachádza v rámci novovybudovaného areálu v zastavanom území mesta Trnava.
- Lokalita je ľahko prístupná z cesty I.triedy I/51 Hodonín – Trnava a ale aj miestnou obslužnou komunikáciou Zavarská, z ktorej je pravým odbočením prístupná miestna obslužná komunikácia.
DISPOZOČNĚ RIEŠENIE:
- Dispozične je objekt v pozdĺžnom smere rozdelený na funkčné celky - administratívna časť je prístupná cez stredný modul kde cez zádverie je prístupná chodba sprístupňujúca cez schodisko ďalšie podlažia, recepcia.
- Ďalej nasleduje chodba z ktorej sú prístupné hygienické priestory – WC muži, WC ženy, umyvár so sprchou, serverovňa a tiež priestory ďalšieho modulu kde je garáž, sklad a aj technická miestnosť.
- Pod schodiskom je vytvorená miestnosť pre upratovačku prístupný z chodby.
- Na prízemí v rámci prvého modulu je vytvorený administratívny monopriestor, ktorý sa ľahkými sklenenými priečkami rozdelí na tri časti – kancelária, zasadacia miestnosť a kancelária vedenia.
- Na poschodí je schodiskom prístupný otvorený priestor kde je uvažovaná recepcia, ktorý je možné využiť aj na prezentačné účely.
- Ďalej je hygienická bunka - priestory – WC muži, WC ženy, denná miestnosť s kuchynkou.
V ďalšom module je vytvorený rovnaký administratívny monopriestor, dispozične členený ľahkými sklenenými priečkami– kancelária, zasadacia miestnosť a kancelária vedenia.
- Schodiskom je prístupné tiež ustúpené podlažie, kde sú umiestnené reprezentačné priestory a hygienická bunka.
- Cez presklené steny je prístupná te
-možnosť prenajať budovu separátne po poschodiach, alebo ako celok
-aktuálne je priestor na prenájom v štádiu holopriestor
-úprava priestoru podľa potrieb klienta, na mieru
POPIS:
- administratívna budova je 3-podlažná bez podpivničenia
- budova je funkčne navrhnutá pre oddelenie podlaží a ich samostatné užívanie
- budova môže slúžiť pre administratívne potreby s možnosťou ľahkých montážnych nevýrobných činností
- nachádza sa v priemyselnej zóne
- v novovybudovanej komerčnej zóne s výborným napojením na cestu 1.tr. I/51 a následne R1
ROZMERY:
- celková plocha pozemku 1172m2
- pozemok je pravidelného obdĺžnikového tvaru s rozmermi cca 26m x 46m
- zastavaná plocha 279,1m2
- spevnená plocha 593 m2 (manipulačná plocha 253,6 m2, parkovacie plochy 207,3 m2, chodníky 132,4 m2)
- inžinierske siete zavedené do nehnuteľnosti (voda, elektrina, plyn, kanalizácia)
SUMÁR PLÔCH:
- ÚŽITKOVÁ PLOCHA CELKOM 494m2
- 1NP = 207,6 m2
- 2.NP = 159,2 m2
- 3.NP = 129,1 m2
- kancelárske priestory - 145,5m2
- komunikačné priestory - 153,3m2
- hygienické zariadenia - 24,7m2
- servisné priestory - 79,9m2
- zázemie pre zamestnancov 24,6m2
- terasa (z možnosťou zelene) 62,8m2
- zelené strechy 90,1m2
- parkovacie miesta
VÝHODY:
- Nehnuteľnosť sa nachádza v rámci novovybudovaného areálu v zastavanom území mesta Trnava.
- Lokalita je ľahko prístupná z cesty I.triedy I/51 Hodonín – Trnava a ale aj miestnou obslužnou komunikáciou Zavarská, z ktorej je pravým odbočením prístupná miestna obslužná komunikácia.
DISPOZOČNĚ RIEŠENIE:
- Dispozične je objekt v pozdĺžnom smere rozdelený na funkčné celky - administratívna časť je prístupná cez stredný modul kde cez zádverie je prístupná chodba sprístupňujúca cez schodisko ďalšie podlažia, recepcia.
- Ďalej nasleduje chodba z ktorej sú prístupné hygienické priestory – WC muži, WC ženy, umyvár so sprchou, serverovňa a tiež priestory ďalšieho modulu kde je garáž, sklad a aj technická miestnosť.
- Pod schodiskom je vytvorená miestnosť pre upratovačku prístupný z chodby.
- Na prízemí v rámci prvého modulu je vytvorený administratívny monopriestor, ktorý sa ľahkými sklenenými priečkami rozdelí na tri časti – kancelária, zasadacia miestnosť a kancelária vedenia.
- Na poschodí je schodiskom prístupný otvorený priestor kde je uvažovaná recepcia, ktorý je možné využiť aj na prezentačné účely.
- Ďalej je hygienická bunka - priestory – WC muži, WC ženy, denná miestnosť s kuchynkou.
V ďalšom module je vytvorený rovnaký administratívny monopriestor, dispozične členený ľahkými sklenenými priečkami– kancelária, zasadacia miestnosť a kancelária vedenia.
- Schodiskom je prístupné tiež ustúpené podlažie, kde sú umiestnené reprezentačné priestory a hygienická bunka.
- Cez presklené steny je prístupná te
|
| |||||||||||||||||||||||||||||||
Kontaktovať inzerenta e-mailom
Kontaktovať e-mailom môže iba overený užívateľ.
Overenie je zadarmo.
Vaše telefónne číslo *
Kontaktovať e-mailom môže iba overený užívateľ.
Overenie je zadarmo.
Vaše telefónne číslo *









