Skolaudovaná novostavba Ponúkame Vám na predaj 3 izbový byt
- [10.11. 2025]Zmazať/ Upraviť/ Topovať




















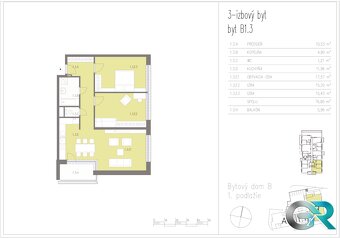
Ponúkame Vám na predaj moderný 3 izbový byt v Púchov. Úžitková plocha bytu je 85,29m2 ( vrátane balkóna 5.96m2) . Nachádza sa na 1. poschodí z 5 s výťahom.
Dispozičné riešenie bytu je vstupná chodba v tvare L ( 10,53m2), kúpeľňa (4,90m2), samostatné WC (1,21m2), dve nepriechodné izby (15,43m2 a 15,20m2), priestranná obývacia izba a kuchyňa s jedálenským kútom (29,53m2) so vstupom na balkón (5,96m2). K bytu patrí aj pivnica (2,53m2)
Byty sa predávajú v stave holo-byt, je tu však po dohode možnosť dokončiť byt do stavu "na kľúč". Veľkou výhodou nehnuteľnosti sú nízke mesačné náklady, bezbariérový prístup, moderný vzhľad.
--
Cena nehnuteľnosti je konečná vrátane kúpnej (nájomnej) zmluvy, kolkov a hypotekárneho poradenstva.
Viac informácií Vám rád poskytne maklér 0948 466 599 alebo 0903 527 757 (centrála spoločnosti)
Dispozičné riešenie bytu je vstupná chodba v tvare L ( 10,53m2), kúpeľňa (4,90m2), samostatné WC (1,21m2), dve nepriechodné izby (15,43m2 a 15,20m2), priestranná obývacia izba a kuchyňa s jedálenským kútom (29,53m2) so vstupom na balkón (5,96m2). K bytu patrí aj pivnica (2,53m2)
Byty sa predávajú v stave holo-byt, je tu však po dohode možnosť dokončiť byt do stavu "na kľúč". Veľkou výhodou nehnuteľnosti sú nízke mesačné náklady, bezbariérový prístup, moderný vzhľad.
--
Cena nehnuteľnosti je konečná vrátane kúpnej (nájomnej) zmluvy, kolkov a hypotekárneho poradenstva.
Viac informácií Vám rád poskytne maklér 0948 466 599 alebo 0903 527 757 (centrála spoločnosti)
|
| |||||||||||||||||||||||||||||||
Kontaktovať inzerenta e-mailom
Kontaktovať e-mailom môže iba overený užívateľ.
Overenie je zadarmo.
Vaše telefónne číslo *
Kontaktovať e-mailom môže iba overený užívateľ.
Overenie je zadarmo.
Vaše telefónne číslo *