2 izbový byt na predaj 59.52 m2 novostavba vo výstavbe Marti
- TOP - [11.11. 2025]Zmazať/ Upraviť/ Topovať
















Ponúkam Vám 2 izbový byt na predaj apartmán Martin Tomčany, novostavba v súčasnosti vo výstavbe ,
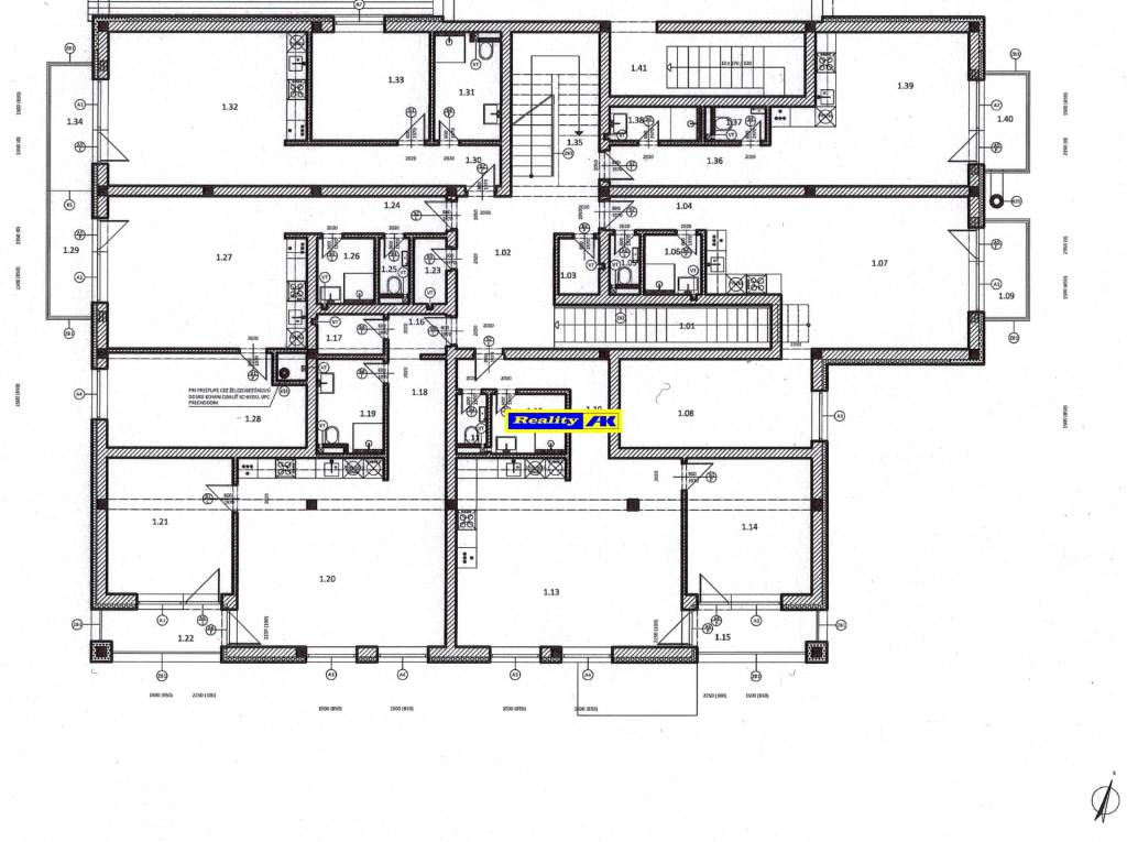
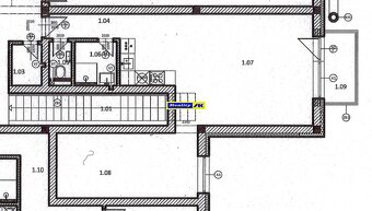
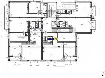
1 poschodie byt číslo 1 - označený miestnosti čísla 1.03 - 1.09
Ponúkaný byt sa predáva v prevedení Holobyt.
Dispozičné riešenie: pozri pôdorys medzi foto
chodba
Kuchyňa spolu s obývačka
izba
kúpeľňa
WC
balkón
sklad
Vybavenie:
Byt Apartmán sa nachádza na 1 poschodí, obytná plocha je 55,92 m2, úžitková plocha je 59,52 m2, balkón má 3,6 m2.
Vchodové dvere sú nové bezpečnostné.
Okná sú plastové.
Orientácia apartmánu je V
Vykurovanie je teplovodné podlahové s ohrevom elektrický kotol.
Prevedenie bytu je holobyt a bude v byte urobené
- plastové okná
- elektrika
- voda a kanalizácia
- vnútorné omietky
- dvere vchodové do bytu
- urobený strop sadrokartónom,
- kúrenie bude ústredné radiátormi, alebo podlahové vodou v trubkách, ohrev kotol elektrika
- zateplenie je minerálnou vatou
Je potrebné dokončiť
- kuchynskú linku
- vnútorné dvere a zárubne
- podlahy
- dlažba a obklady
- sanita
- svetlá
Nehnuteľnosť:
Obytný dom je postavený z ytongu a je zateplený.
Lokalita:
Martin Tomčany
Cena nehnuteľnosti je uvedená vrátane DPH a zahŕňa kompletný realitný a právny servis vrátane poplatkov.
Obytná plocha: 55.92m²
Celková rozloha: 59.52m²
Úžitková plocha: 55.92m²
Vlastníctvo: osobné
Stav: pôvodný
Odvoz odpadu: áno - separovaný
Kúpeľňa: áno
Vykurovanie: vlastné - elektrické
Balkón: áno
Pivnica: áno
Parkovanie: verejné
Postavené z: Ytong
Zateplený objekt: áno
Energetický certifikát: A
Okná: plastové
Orientácia: východná
1 poschodie byt číslo 1 - označený miestnosti čísla 1.03 - 1.09
Ponúkaný byt sa predáva v prevedení Holobyt.
Dispozičné riešenie: pozri pôdorys medzi foto
chodba
Kuchyňa spolu s obývačka
izba
kúpeľňa
WC
balkón
sklad
Vybavenie:
Byt Apartmán sa nachádza na 1 poschodí, obytná plocha je 55,92 m2, úžitková plocha je 59,52 m2, balkón má 3,6 m2.
Vchodové dvere sú nové bezpečnostné.
Okná sú plastové.
Orientácia apartmánu je V
Vykurovanie je teplovodné podlahové s ohrevom elektrický kotol.
Prevedenie bytu je holobyt a bude v byte urobené
- plastové okná
- elektrika
- voda a kanalizácia
- vnútorné omietky
- dvere vchodové do bytu
- urobený strop sadrokartónom,
- kúrenie bude ústredné radiátormi, alebo podlahové vodou v trubkách, ohrev kotol elektrika
- zateplenie je minerálnou vatou
Je potrebné dokončiť
- kuchynskú linku
- vnútorné dvere a zárubne
- podlahy
- dlažba a obklady
- sanita
- svetlá
Nehnuteľnosť:
Obytný dom je postavený z ytongu a je zateplený.
Lokalita:
Martin Tomčany
Cena nehnuteľnosti je uvedená vrátane DPH a zahŕňa kompletný realitný a právny servis vrátane poplatkov.
Obytná plocha: 55.92m²
Celková rozloha: 59.52m²
Úžitková plocha: 55.92m²
Vlastníctvo: osobné
Stav: pôvodný
Odvoz odpadu: áno - separovaný
Kúpeľňa: áno
Vykurovanie: vlastné - elektrické
Balkón: áno
Pivnica: áno
Parkovanie: verejné
Postavené z: Ytong
Zateplený objekt: áno
Energetický certifikát: A
Okná: plastové
Orientácia: východná
|
| |||||||||||||||||||||||||||||||
Kontaktovať inzerenta e-mailom
Kontaktovať e-mailom môže iba overený užívateľ.
Overenie je zadarmo.
Vaše telefónne číslo *
Kontaktovať e-mailom môže iba overený užívateľ.
Overenie je zadarmo.
Vaše telefónne číslo *
Podobné inzeráty
TOP PONUKA Na predaj 1-izbový byt, Martin - [11.11. 2025]TUreality ponúka na predaj 1-izbový byt v Martine na Podháji. Byt je orientovaný na západ a nachádza sa na 4. poschodí. Bytový dom je zateplený a disponuje výťahom. Byt je v zachovalom, pôvodnom stave. Dispozične pozostáva zo samostatnej izby s balkónom, kúpeľne s vaňou a toaletou a kuchyne, kde sa ...
Ponúknite
Martin
036 01
036 01
12 x
Označiť zlý inzerát Chybnú kategóriu Ohodnotiť užívateľa Zmazať/Upraviť/Topovať
Predaj veľký 2 izbový byt 63 m2 v Martine - [11.11. 2025]AstonReal ponúka na predaj veľký 2 izbový byt 63 m2 na 1/3 poschodí v Martine širšom centre pri Lidli. Byt v tehlovej Bytovke je v pôvodnom stave:: drevené parkety + plávajúce podlahy, Kúpelňa s vaňou, umývadlom a Samostatné WC a špajza . Kuchynská linka so šporákom. V byte sú drevené okná, Bytový d ...
124 000 €
Martin
036 01
036 01
17 x
Označiť zlý inzerát Chybnú kategóriu Ohodnotiť užívateľa Zmazať/Upraviť/Topovať
Predaj 2 izbový byt 57 m2 v Martine na Severe Veľký Balkón - [11.11. 2025]AstonReal ponúka na predaj 2 izbový byt 57m2 na 4/4 v Martine na Severe. Byt je v pôvodnom stave:: drevené parkety + plávajúce podlahy, Umakartová Kúpelňa s vaňou, umývadlom a Samostatné WC. Kuchynská linka so šporákom plyn + elektrika. V byte sú plastové okná, Bytový dom je zateplený a má prirobený ...
112 000 €
Martin
036 01
036 01
12 x
Označiť zlý inzerát Chybnú kategóriu Ohodnotiť užívateľa Zmazať/Upraviť/Topovať
Udržiavaný 3-izb byt s parkovaním v Záturčí / cca 77M2/ - [11.11. 2025]Výhradne ponúkame na predaj priestranný , udržiavaný a čiastočne zrekonštruovaný 3-izbový byt v mestskej časti Martin – Záturčie, nachádzajúci sa na 5. nadzemnom podlaží zatepleného bytového domu s výťahom.
Rozloha: 68,5 m² + rozšírenie o chodbu a špajzu cca 9 m²
Loggia: zasklená, orientovaná na se ...
145 000 €
Martin
036 01
036 01
16 x
Označiť zlý inzerát Chybnú kategóriu Ohodnotiť užívateľa Zmazať/Upraviť/Topovať
MARTIN-SEVER LUXUSNÝ VEĽKOMETRÁŽNY 2IZB.BYT 67m S PARKOVANÍM - [11.11. 2025]Príjemný, s osobným nádychom Luxusný domov pre dva pokoje a viac snov – Martin-Sever, 67 m² s parkovaním. Hľadáš miesto, ktoré pôsobí vzdušne, svetlo a pohodlne? Tento krásny 2-izbový priestor so šatníkom a dvomi komorami, s výbornou dispozíciou, je pripravený dať ti pocit domova. Balkón 3,5 m² s ro ...
156 000 €
Martin
036 01
036 01
21 x
Označiť zlý inzerát Chybnú kategóriu Ohodnotiť užívateľa Zmazať/Upraviť/Topovať
Posledný 2 izbový byt, č. IIB_3C, v novostavbe Byty Ruppeldt - [11.11. 2025]Posledný 2 izbový byt s predzáhradkou na predaj, v novom developerskom projekte "Byty Ruppeldtova".
Byt sa nachádza vo vyhľadávanej lokalite, v blízkosti univerzitnej nemocnice, na ulici Ruppeldtova, podľa ktorej je projekt aj pomenovaný.
Ponúkaný 2 izbový byt II.B_3C, má celkovú výmeru 70,84 m2, ...
163 600 €
Martin
036 01
036 01
14 x
Označiť zlý inzerát Chybnú kategóriu Ohodnotiť užívateľa Zmazať/Upraviť/Topovať
REZERVOVANÉ 2i. BYT LEMONDE 70 m2 - [11.11. 2025]REZERVOVANÉ!B10 vám ponúka na predaj 2 izbový byt s premyslenou dispozíciou v novostavbe LEMONDE v Martine v mestskej časti ĽADOVEŇ, v blízkosti centra, s výmerou 70 m2 z toho balkón tvorí 12 m2. Modernosť, komfort a zdravie novostavby v jednom sú zaručene vizitkou tohto bytu.Byt sa nachádza na 2 po ...
149 000 €
Martin
036 01
036 01
22 x
Označiť zlý inzerát Chybnú kategóriu Ohodnotiť užívateľa Zmazať/Upraviť/Topovať
Na predaj 3-izbový byt v meste Martin - Jahodníky - [10.11. 2025]Typ: 3-izbový byt
Ulica: -
Mestská časť: Jahodníky
Obec: Martin
Moderný maklér ponúka na predaj 3-izbový byt v Martine – časť Jahodníky, ktorý je v pôvodnom stave a predstavuje ideálnu príležitosť na rekonštrukciu podľa vlastných predstáv. Nehnuteľnosť ponúka maximálnu flexibilitu pri zariaden ...
139 000 €
Martin
036 01
036 01
48 x
Označiť zlý inzerát Chybnú kategóriu Ohodnotiť užívateľa Zmazať/Upraviť/Topovať
Na predaj garsónka v Martine - časť Sever - [10.11. 2025]Typ: Garsónka
Ulica: -
Mestská časť: Sever
Obec: Martin
Moderný maklér ponúka na predaj priestrannú garsónku v meste Martin - časť Sever. Byt sa nachádza na 11/12 poschodí v bytovom dome s dvoma výťahmi. Nehnuteľnosť sa nachádza v pôvodnom stave, čo novému majiteľovi poskytuje úplnú ...
Dohodou
Martin
036 01
036 01
33 x
Označiť zlý inzerát Chybnú kategóriu Ohodnotiť užívateľa Zmazať/Upraviť/Topovať
MARTIN - BYT - Pôvodný stav - TOP - [11.11. 2025]Dobrý deň,
hľadáme na kúpu 2- alebo 3-izbový byt v Martine, ideálne v lokalite Sever alebo Centrum v pôvodnom stave.
Financovanie máme zabezpečené vlastnými zdrojmi, preto vieme konať rýchlo, férovo a bez zbytočných prieťahov :)
Podmienky:
• Byt s výťahom je pre nás podmienkou
• Balkón aleb ...
Dohodou
Martin
036 01
036 01
44 x
Označiť zlý inzerát Chybnú kategóriu Ohodnotiť užívateľa Zmazať/Upraviť/Topovať