Kompletne zariadený 2-izbový byt pri hrádzi, Sihoť
- [10.11. 2025]Zmazať/ Upraviť/ Topovať


























BEDES Real Estate vám prináša na predaj útulný kompletne zariadený 2-izbový byt s balkónom a pivnicou, nachádzajúci sa vo vyhľadávanej a obľúbenej lokalite Sihoť v Trenčíne, priamo pri hrádzi.
✔ Kompletne zariadený – stačí sa nasťahovať / ideálny aj ako investičný s možnosťou okamžitého nájmu bez ďaľších investícií
✔ Rekonštrukcia a vybavenie vrátane elektroniky a spotrebičov
✔ Balkón s výhľadom na hrádzu – tiché a pokojné prostredie
✔ Výborná lokalita – blízkosť prírody aj centra mesta
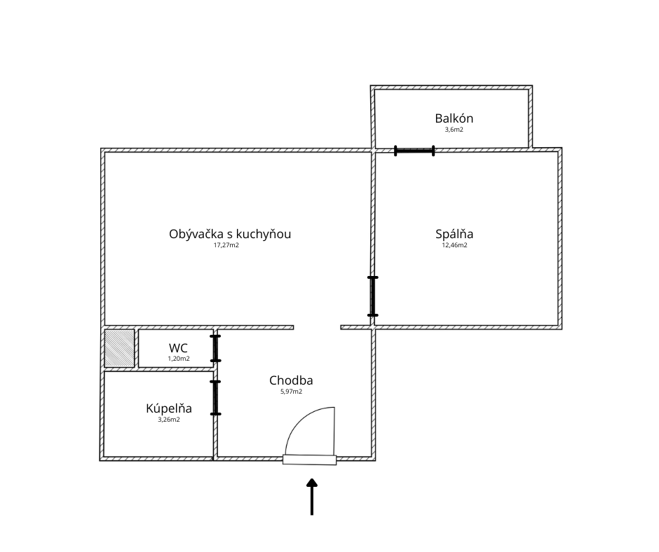
Dispozícia a vybavenie:
Úžitková plocha: 43 m²
Dispozícia: vstupná chodba, obývačka spojená s kuchyňou a jedálenskou časťou, spálňa, kúpeľňa a oddelené WC
Balkón orientovaný na hrádzu / koniec Sihote
K bytu prislúcha pivnica na prízemí
Byt sa nachádza na ideálnom 4. poschodí z 8 v zateplenom bytovom dome z roku 2008. Byt prešiel v minulosti rekonštrukciou, predáva sa plne zariadený a vybavený tak, ako ho môžete vidieť na fotografiách.
Lokalita:
Byt sa nachádza v jednej z najobľúbenejších častí Trenčína – Sihoť.
V pešej dostupnosti nájdete obchody, lekárne, poštu, školy, škôlku, kaviarne a reštaurácie. Dominantou je však hrádza rieky Váh, ideálna na šport, cyklistiku, beh či prechádzky so psom.
Športoví nadšenci ocenia zimné štadióny, fitness centrum, tenisové kurty, futbalový štadión či mestskú plaváreň – všetko len pár krokov od domu.
Parkovanie je možné priamo pri bytovom dome – BEZPLATNÉ.
Výhody:
skvelá kombinácia pokojného bývania pri prírode a blízkosti centra mesta
kompletné zariadenie a vybavenie bez nutnosti ďalších investícií
možnosť financovania cez hypotekárny úver aj prostredníctvom našich špecialistov
📞 Kontakt:
Viac informácií alebo obhliadku si dohodnete na 0948 947 245 alebo na blazova@bedes.sk.
👉 Tento byt určite odporúčame – ideálna voľba pre jednotlivcov či pár, ktorí hľadajú moderné bývanie v skvelej lokalite alebo pre investorov s možnosťou okamžitého prenájmu bez nutnosti ďaľších investícií.
✔ Kompletne zariadený – stačí sa nasťahovať / ideálny aj ako investičný s možnosťou okamžitého nájmu bez ďaľších investícií
✔ Rekonštrukcia a vybavenie vrátane elektroniky a spotrebičov
✔ Balkón s výhľadom na hrádzu – tiché a pokojné prostredie
✔ Výborná lokalita – blízkosť prírody aj centra mesta
Dispozícia a vybavenie:
Úžitková plocha: 43 m²
Dispozícia: vstupná chodba, obývačka spojená s kuchyňou a jedálenskou časťou, spálňa, kúpeľňa a oddelené WC
Balkón orientovaný na hrádzu / koniec Sihote
K bytu prislúcha pivnica na prízemí
Byt sa nachádza na ideálnom 4. poschodí z 8 v zateplenom bytovom dome z roku 2008. Byt prešiel v minulosti rekonštrukciou, predáva sa plne zariadený a vybavený tak, ako ho môžete vidieť na fotografiách.
Lokalita:
Byt sa nachádza v jednej z najobľúbenejších častí Trenčína – Sihoť.
V pešej dostupnosti nájdete obchody, lekárne, poštu, školy, škôlku, kaviarne a reštaurácie. Dominantou je však hrádza rieky Váh, ideálna na šport, cyklistiku, beh či prechádzky so psom.
Športoví nadšenci ocenia zimné štadióny, fitness centrum, tenisové kurty, futbalový štadión či mestskú plaváreň – všetko len pár krokov od domu.
Parkovanie je možné priamo pri bytovom dome – BEZPLATNÉ.
Výhody:
skvelá kombinácia pokojného bývania pri prírode a blízkosti centra mesta
kompletné zariadenie a vybavenie bez nutnosti ďalších investícií
možnosť financovania cez hypotekárny úver aj prostredníctvom našich špecialistov
📞 Kontakt:
Viac informácií alebo obhliadku si dohodnete na 0948 947 245 alebo na blazova@bedes.sk.
👉 Tento byt určite odporúčame – ideálna voľba pre jednotlivcov či pár, ktorí hľadajú moderné bývanie v skvelej lokalite alebo pre investorov s možnosťou okamžitého prenájmu bez nutnosti ďaľších investícií.
|
| |||||||||||||||||||||||||||||||
Kontaktovať inzerenta e-mailom
Kontaktovať e-mailom môže iba overený užívateľ.
Overenie je zadarmo.
Vaše telefónne číslo *
Kontaktovať e-mailom môže iba overený užívateľ.
Overenie je zadarmo.
Vaše telefónne číslo *





