EXKLUZÍVNE, len u nás Predaj 2-izbového bytu po kompletnej
- TOP - [12.11. 2025]Zmazať/ Upraviť/ Topovať

























Typ: 2-izbový byt
Ulica: Hornádska
Mestská časť: Dolné hony
Obec: Bratislava-Podunajské Biskupice
EXKLUZÍVNE! Predaj 2-izbového bytu po kompletnej rekonštrukcii – Bratislava, Hornádska ul. (Podunajské Biskupice)
Ponúkame na predaj svetlý 2-izbový byt po kompletnej rekonštrukcii v zateplenom bytovom dome, mestská časť Podunajské Biskupice – Dolné hony. Byt sa nachádza na 3. poschodí (byt č. 32) v panelovom dome s výťahom. Bytovka bola uvedená do prevádzky v roku 1975; v roku 2012 prešla komplexnou obnovou (zateplenie obvodového plášťa a rekonštrukcia strechy).
DISPOZÍCIA A VÝMERA
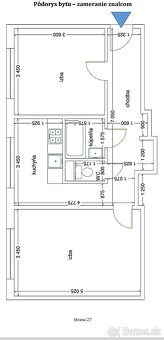
2 izby, kuchyňa, kúpeľňa, samostatné WC, predsieň; celková orientačná výmera 51 m² + pivnica 2,38 m2
STAV BYTU - po kompletnej rekonštrukcii :
plastové okná, nová elektroinštalácia a rozvody (popis na obhliadke)
bezpečnostné vstupné dvere
nivelácia podláh: plávajúca podlaha / dlažba
jadro po rekonštrukcii
nove stierky
sadrokartónové stropy
komplet kuchyňa so spotrebičmi
vstavaná skriňa
BYTOVÝ DOM
panelový dom, 3 byty na podlaží, 24 bytov vo vchode
výťah (osobný)
správa: SBD II
kompletné zateplenie a strecha po obnove (2012)
nízke prevádzkové náklady
OBČIANSKA VYBAVENOSŤ A LOKALITA (všetko pešo alebo pár minút MHD):
Nákupy a služby: NC HRON s hypermarketom TESCO (Dudvážska 5/51/6), lekáreň BENU v OD Tesco Hron; v okolí aj BILLA (Kazanská/Uzbecká).
Školy a škôlky: ZŠ Bieloruská 1; v bezprostrednom okolí súkromná GALILEO School – materská, základná škola aj gymnázium (Dudvážska 6); MŠ Komárovská, MŠ Linzbothova a ďalšie elokované pracoviská v MČ.
Zdravotníctvo: Špecializovaná nemocnica Podunajské Biskupice (UNB), poliklinické ambulancie v MČ.
Doprava (MHD): blízke zastávky Hronská (linky 67, 71, 72), MiÚ Podunajské Biskupice a
Stanica Podunajské Biskupice (linky 70, 78, 79), nočná linka N70 na Hlavnú stanicu.
Šport a relax: detské ihriská, športoviská, fitness (Life Gym), kaviareň Diverso v bezprostrednom okolí; neďaleko Vrakunský lesopark (Vrakunský lesík) a cyklotrasy pri Malom Dunaji (R27 – Malodunajská radiála).
PARKOVANIE
verejné parkovanie pri dome (parkoviská v okolí).
ORIENTAČNÉ NÁKLADY A SPRÁVA
správcom je SBD II; mesačné zálohy upresníme podľa počtu osôb.
LOKALITA
Podunajské Biskupice (Dolné hony). Tichá, zelená časť s kompletnou vybavenosťou a rýchlym napojením do centra.
CENA: 201.825,- €
KONTAKT
Prosím, volajte alebo píšte pre dohodnutie obhliadky na: Jaroslava Víchová, 0905 451 371.
Status: aktívne
Vlastníctvo: osobné
Úžitková plocha: 51 m2
Stav: úplne prerobený
Počet izieb: 2
Typ budovy: panelová stavba
Pivnica: áno
Verejné vonkajšie parkovanie: áno
Ulica: Hornádska
Mestská časť: Dolné hony
Obec: Bratislava-Podunajské Biskupice
EXKLUZÍVNE! Predaj 2-izbového bytu po kompletnej rekonštrukcii – Bratislava, Hornádska ul. (Podunajské Biskupice)
Ponúkame na predaj svetlý 2-izbový byt po kompletnej rekonštrukcii v zateplenom bytovom dome, mestská časť Podunajské Biskupice – Dolné hony. Byt sa nachádza na 3. poschodí (byt č. 32) v panelovom dome s výťahom. Bytovka bola uvedená do prevádzky v roku 1975; v roku 2012 prešla komplexnou obnovou (zateplenie obvodového plášťa a rekonštrukcia strechy).
DISPOZÍCIA A VÝMERA
2 izby, kuchyňa, kúpeľňa, samostatné WC, predsieň; celková orientačná výmera 51 m² + pivnica 2,38 m2
STAV BYTU - po kompletnej rekonštrukcii :
plastové okná, nová elektroinštalácia a rozvody (popis na obhliadke)
bezpečnostné vstupné dvere
nivelácia podláh: plávajúca podlaha / dlažba
jadro po rekonštrukcii
nove stierky
sadrokartónové stropy
komplet kuchyňa so spotrebičmi
vstavaná skriňa
BYTOVÝ DOM
panelový dom, 3 byty na podlaží, 24 bytov vo vchode
výťah (osobný)
správa: SBD II
kompletné zateplenie a strecha po obnove (2012)
nízke prevádzkové náklady
OBČIANSKA VYBAVENOSŤ A LOKALITA (všetko pešo alebo pár minút MHD):
Nákupy a služby: NC HRON s hypermarketom TESCO (Dudvážska 5/51/6), lekáreň BENU v OD Tesco Hron; v okolí aj BILLA (Kazanská/Uzbecká).
Školy a škôlky: ZŠ Bieloruská 1; v bezprostrednom okolí súkromná GALILEO School – materská, základná škola aj gymnázium (Dudvážska 6); MŠ Komárovská, MŠ Linzbothova a ďalšie elokované pracoviská v MČ.
Zdravotníctvo: Špecializovaná nemocnica Podunajské Biskupice (UNB), poliklinické ambulancie v MČ.
Doprava (MHD): blízke zastávky Hronská (linky 67, 71, 72), MiÚ Podunajské Biskupice a
Stanica Podunajské Biskupice (linky 70, 78, 79), nočná linka N70 na Hlavnú stanicu.
Šport a relax: detské ihriská, športoviská, fitness (Life Gym), kaviareň Diverso v bezprostrednom okolí; neďaleko Vrakunský lesopark (Vrakunský lesík) a cyklotrasy pri Malom Dunaji (R27 – Malodunajská radiála).
PARKOVANIE
verejné parkovanie pri dome (parkoviská v okolí).
ORIENTAČNÉ NÁKLADY A SPRÁVA
správcom je SBD II; mesačné zálohy upresníme podľa počtu osôb.
LOKALITA
Podunajské Biskupice (Dolné hony). Tichá, zelená časť s kompletnou vybavenosťou a rýchlym napojením do centra.
CENA: 201.825,- €
KONTAKT
Prosím, volajte alebo píšte pre dohodnutie obhliadky na: Jaroslava Víchová, 0905 451 371.
Status: aktívne
Vlastníctvo: osobné
Úžitková plocha: 51 m2
Stav: úplne prerobený
Počet izieb: 2
Typ budovy: panelová stavba
Pivnica: áno
Verejné vonkajšie parkovanie: áno
|
| |||||||||||||||||||||||||||||||
Kontaktovať inzerenta e-mailom
Kontaktovať e-mailom môže iba overený užívateľ.
Overenie je zadarmo.
Vaše telefónne číslo *
Kontaktovať e-mailom môže iba overený užívateľ.
Overenie je zadarmo.
Vaše telefónne číslo *




