Španielsko, Finca Cortesin Golf , Golfside, Vila 10
- [10.11. 2025]Zmazať/ Upraviť/ Topovať






























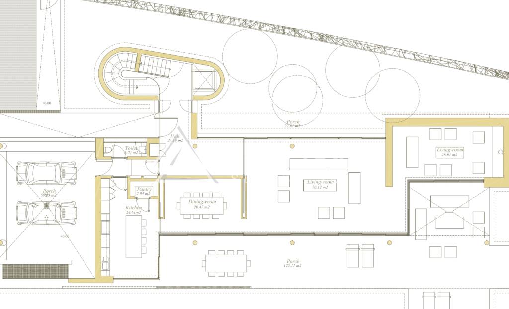
Táto výnimočná vila, ktorá vyžaruje bohatstvo a rafinovanosť, nanovo definuje samotný pojem luxusného bývania v golfovom rezorte. Nachádza sa na vyvýšenom pozemku a ponúka úchvatný panoramatický výhľad na golfové ihrisko a Stredozemné more, zatiaľ čo jej rozsiahle vonkajšie priestory zahŕňajú starostlivo udržiavané záhrady a nádherný bazén. Táto rezidencia, obklopená bujnými palmami a bohatou flórou, poskytuje nádherné vonkajšie útočisko na celoročné užívanie. Prízemie, ktoré je zaliate prirodzeným svetlom vďaka množstvu sklenených dverí od podlahy až po strop, plynulo nadväzuje na záhradu, čím podporuje harmonické prepojenie interiéru a exteriéru. Nehnuteľnosť je rozložená na 3 podlažiach, pričom v suteréne sa nachádza práčovňa, technická miestnosť a na mieru vyrobená vínna pivnica. Prístup do suterénu bol dômyselne integrovaný do nehnuteľnosti prostredníctvom skrytých cylindrických dverí. Interiérové priestory sú elegantne navrhnuté, nachádzajú sa na úrovni prízemia - vyznačujú sa neutrálnymi jemnými tónmi a jedinečnými materiálmi, ktoré domu vdychujú jedinečný zmysel pre individualitu. Kuchyňa vybavená špičkovými spotrebičmi Gaggenau sa pýši na mieru vyrobenými skrinkami a štýlovým kuchynským ostrovom, zatiaľ čo svetlá drevená podlaha v celom dome navodzuje pokojnú a pokojnú atmosféru. Pestovaná krajina, starostlivo upravená v rámci hraníc pozemku, vytvára podmanivú kulisu viditeľnú z prízemia. Horné poschodie je vyhradené spálňam, z ktorých každá má vlastnú terasu a je oddelená úžasnými bielymi priečkami. Architektonické majstrovstvo spoločnosti Vicens & Ramos je zrejmé z každého uhla pohľadu, pričom pôsobivý vstup do nehnuteľnosti zanechá trvalý dojem na všetkých, ktorí sem prídu. Toto majstrovské dielo s privilegovanou polohou v prvej línii golfového ihriska, obdivuhodným výhľadom a neochvejnou snahou o dokonalosť je skutočne neporovnateľnou rezidenciou v rámci exkluzívneho rezortu Finca Cortesin.
Dodatok k cene: + 10 % IVA, vrátane provízie, možnosť HÚ
Obytná plocha: 752m²
Celková rozloha: 1105m²
Rozloha pozemku: 2145m²
Úžitková plocha: 752m²
Vlastníctvo: firemné
Odvoz odpadu: áno - separovaný
Voda: verejný vodovod
El. napätie: 230/400V
Kúpeľňa: áno
Vykurovanie: áno
Terasa: áno
Garáž: áno - 2 autá
Parkovanie: áno
Inžinierske siete: áno
Zariadenie: čiastočne
Zateplený objekt: áno
Bazén: exteriérový
Klimatizácia: áno
Energetický certifikát: áno
Predzáhradka: neuvedené
Prístupová cesta: asfaltová cesta
Dodatok k cene: + 10 % IVA, vrátane provízie, možnosť HÚ
Obytná plocha: 752m²
Celková rozloha: 1105m²
Rozloha pozemku: 2145m²
Úžitková plocha: 752m²
Vlastníctvo: firemné
Odvoz odpadu: áno - separovaný
Voda: verejný vodovod
El. napätie: 230/400V
Kúpeľňa: áno
Vykurovanie: áno
Terasa: áno
Garáž: áno - 2 autá
Parkovanie: áno
Inžinierske siete: áno
Zariadenie: čiastočne
Zateplený objekt: áno
Bazén: exteriérový
Klimatizácia: áno
Energetický certifikát: áno
Predzáhradka: neuvedené
Prístupová cesta: asfaltová cesta
|
| |||||||||||||||||||||||||||||||
Kontaktovať inzerenta e-mailom
Kontaktovať e-mailom môže iba overený užívateľ.
Overenie je zadarmo.
Vaše telefónne číslo *
Kontaktovať e-mailom môže iba overený užívateľ.
Overenie je zadarmo.
Vaše telefónne číslo *









