Rodinný dom s 5 bytovými jednotkami - vhodné na prenájmy
- [10.11. 2025]Zmazať/ Upraviť/ Topovať






















V exkluzívnom zastúpení ponúkame na predaj rodinný dom – toho času využívaný ako ubytovňa s piatimi 1izbovými bytmi o rozlohe cca 41 m2, v okresnom meste Levice, na ul. Fr. Hečku. Byty sa prenajímajú, takže nový majiteľ môže nehnuteľnosť odkúpiť a pokračovať v prenajímaní s aktuálnymi nájomníkmi. K danej nehnuteľnosti prislúcha ešte rozsiahly pozemok s pozoruhodným rozmerom 974 m2.
Nehnuteľnosť je riešená ako samostatne stojaci, nepodpivničený dom s troma nadzemnými podlažiami a plochou strechou. Pôvodná stavba z roku 1969 bol rodinný dvojdom s dvoma bytovými jednotkami.
Po rekonštrukcii a prestavbe so zmenou užívania bolo v roku 2015 z domu vytvorené ubytovacie zariadenie s piatimi 1izbovými bytmi o rozlohe cca 41 m2. Dom je umiestnený v prednej strednej časti pozemku, takže pred domom sa nachádzajú aj vybetónované parkovacie miesta pre 3 osobné vozidlá.
Stavba je založená na železobetónových základoch s izoláciou proti vode a zemnej vlhkosti. Nosnou konštrukciou budovy sú murované steny. Stropy sú železobetónové s rovným podhľadom. Vonkajšia úprava povrchov domu je omietka na báze umelých hmôt so zateplením. Vnútorná úprava povrchov je vápenno-cementová hladká omietka. Strešná konštrukcia je železobetónová doska. Krytina strechy je povlaková fólia. Oplechovanie strechy a konštrukcie parapetov okien sú z pozinkovaného plechu. V izbách je veľkoplošná laminátová podlaha, v ostatných miestnostiach a na prízemí je keramická dlažba. Päť kúpeľní je vybavených umývadlom, sprchou a splachovacím záchodom. Výplne okenných otvorov a dverí na fasáde domu sú plastové. Vnútorné interiérové dvere sú dyhované v oblôžkových zárubniach. V tomto roku sa menili vstupné dvere na všetkých bytoch. Rozvod teplej a studenej vody je plastovým potrubím, zdroj teplej vody je elektrický bojler v každom byte. Vykurovanie je lokálne plynovým kotlom na prízemí, prostredníctvom radiátorov v bytoch, jedine prízemný byt má podlahové kúrenie.
Inžinierske siete - rozvod elektriny, plynu, vody a kanalizácie mesta. V dome sú rozvody televízneho signálu.
Elektroinštalácia domu je svetelná a motorická s automatickými ističmi.
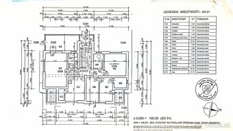
Dispozičné riešenie (pôdorysy v galérii):
1. NP – vpravo sa nachádza 1 byt pozostávajúci z predsiene, kuchyne, 1 veľkej izby, kúpeľne s WC a ľavá časť prízemia pozostáva zo spoločných častí (práčovňa, kotolňa, 2 skladové priestory) – tieto prislúchajú bytom z 3.NP.
2. NP – 2 byty, každý pozostáva z chodby, kuchyne s obývacou izbou, spálne, kúpeľne s WC.
3. NP – 2 byty, každý pozostáva z chodby, kuchyne s obývacou izbou, spálne, kúpeľne s WC a menšej predsiene s balkónom.
Krátka videoobhliadka:
https://youtu.be/gve4NYOfEN0?feature=shared
K danej nehnuteľnosti prislúcha aj garáž , ktorá stojí v ľavej strednej časti predmetného pozemku s prístupom z ulice Pod Amfiteátrom. Vybudovaná bola v roku 2015. Slúži na garážovanie štyroch osobných áut a ako sklad. Dispozične pozostáva z dvoch miestností dvojga
Nehnuteľnosť je riešená ako samostatne stojaci, nepodpivničený dom s troma nadzemnými podlažiami a plochou strechou. Pôvodná stavba z roku 1969 bol rodinný dvojdom s dvoma bytovými jednotkami.
Po rekonštrukcii a prestavbe so zmenou užívania bolo v roku 2015 z domu vytvorené ubytovacie zariadenie s piatimi 1izbovými bytmi o rozlohe cca 41 m2. Dom je umiestnený v prednej strednej časti pozemku, takže pred domom sa nachádzajú aj vybetónované parkovacie miesta pre 3 osobné vozidlá.
Stavba je založená na železobetónových základoch s izoláciou proti vode a zemnej vlhkosti. Nosnou konštrukciou budovy sú murované steny. Stropy sú železobetónové s rovným podhľadom. Vonkajšia úprava povrchov domu je omietka na báze umelých hmôt so zateplením. Vnútorná úprava povrchov je vápenno-cementová hladká omietka. Strešná konštrukcia je železobetónová doska. Krytina strechy je povlaková fólia. Oplechovanie strechy a konštrukcie parapetov okien sú z pozinkovaného plechu. V izbách je veľkoplošná laminátová podlaha, v ostatných miestnostiach a na prízemí je keramická dlažba. Päť kúpeľní je vybavených umývadlom, sprchou a splachovacím záchodom. Výplne okenných otvorov a dverí na fasáde domu sú plastové. Vnútorné interiérové dvere sú dyhované v oblôžkových zárubniach. V tomto roku sa menili vstupné dvere na všetkých bytoch. Rozvod teplej a studenej vody je plastovým potrubím, zdroj teplej vody je elektrický bojler v každom byte. Vykurovanie je lokálne plynovým kotlom na prízemí, prostredníctvom radiátorov v bytoch, jedine prízemný byt má podlahové kúrenie.
Inžinierske siete - rozvod elektriny, plynu, vody a kanalizácie mesta. V dome sú rozvody televízneho signálu.
Elektroinštalácia domu je svetelná a motorická s automatickými ističmi.
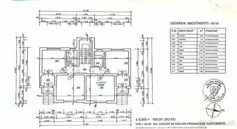
Dispozičné riešenie (pôdorysy v galérii):
1. NP – vpravo sa nachádza 1 byt pozostávajúci z predsiene, kuchyne, 1 veľkej izby, kúpeľne s WC a ľavá časť prízemia pozostáva zo spoločných častí (práčovňa, kotolňa, 2 skladové priestory) – tieto prislúchajú bytom z 3.NP.
2. NP – 2 byty, každý pozostáva z chodby, kuchyne s obývacou izbou, spálne, kúpeľne s WC.
3. NP – 2 byty, každý pozostáva z chodby, kuchyne s obývacou izbou, spálne, kúpeľne s WC a menšej predsiene s balkónom.
Krátka videoobhliadka:
https://youtu.be/gve4NYOfEN0?feature=shared
K danej nehnuteľnosti prislúcha aj garáž , ktorá stojí v ľavej strednej časti predmetného pozemku s prístupom z ulice Pod Amfiteátrom. Vybudovaná bola v roku 2015. Slúži na garážovanie štyroch osobných áut a ako sklad. Dispozične pozostáva z dvoch miestností dvojga
|
| |||||||||||||||||||||||||||||||
Kontaktovať inzerenta e-mailom
Kontaktovať e-mailom môže iba overený užívateľ.
Overenie je zadarmo.
Vaše telefónne číslo *
Kontaktovať e-mailom môže iba overený užívateľ.
Overenie je zadarmo.
Vaše telefónne číslo *
Podobné inzeráty
Predáme Rodinný dom - [11.11. 2025]Predáme starší prízemný dlhý rodinný dom v Pohronskom Ruskove , ktorý je vzdialený len cca. 25 km od kúpaliska Vadaš v Štúrove. Dom pozostáva z 3 izieb , kuchyne , 2 kúpeľní , otvorenej chodby (gánok) , vodárne a garáže . Na dome bola urobená čiastočná rekonštrukcia elektrického rozvodu , vody a vo ...
56 000 €
Levice
934 01
934 01
21 x
Označiť zlý inzerát Chybnú kategóriu Ohodnotiť užívateľa Zmazať/Upraviť/Topovať
RODINNÝ DOM Veľké Krškany s vlastnou botanickou záhradou - [10.11. 2025]Predstavte si život, kde sa ráno zobudíte do ticha vidieka a zároveň ste len kúsok od mesta. Život, kde je každý detail premyslený pre vaše maximálne pohodlie. To je presne to, čo vám ponúka tento priestranný a kvalitne postavený rodinný dom vo Veľkých Krškanoch.
Tento dom, skolaudovaný v roku 20 ...
395 000 €
Levice
934 01
934 01
65 x
Označiť zlý inzerát Chybnú kategóriu Ohodnotiť užívateľa Zmazať/Upraviť/Topovať
Predáme 4 izb. posch. RD v Leviciach - [10.11. 2025]Ponúkame na predaj 4 izb. poschodový rodinný dom, ktorý sa nachádza v lokalite medzi ulicami Ludanská cesta a Františka Hečku. Dom pozostáva z dvoch nadzemných podlaží a suterénu. Dom je súčasťou dvojdomu. Na druhom nadzemnom podlaží sa nachádzajú tri izby, hala, kúpeľňa s WC, lodžia. Na prízemí je ...
139 000 €
Levice
934 01
934 01
46 x
Označiť zlý inzerát Chybnú kategóriu Ohodnotiť užívateľa Zmazať/Upraviť/Topovať
Predám RD v Leviciach s veľkým pozemkom - [10.11. 2025]V Leviciach predám rodinný dom s rozsiahlejším pozemkom (14árov). Dom je samostatne stojaci. Je postavený z tehál. Má dve izby, vstupnú chodbu, kuchyňu. Pri dome sa nachádza komora a samostatne stojaca garáž. Dom má novú strešnú krytinu. Na pozemku sa nachádza kopaná pivnica. Pri pivnici je veranda. ...
94 500 €
Levice
934 01
934 01
45 x
Označiť zlý inzerát Chybnú kategóriu Ohodnotiť užívateľa Zmazať/Upraviť/Topovať
NADŠTANDARDNÝ RODINNÝ DOM LEVICE - [10.11. 2025]Ak v tejto chvíli hľadáte svoj vysnívaný domov, ktorý bude odzrkadľovať Váš životný štýl a prinesie Vám pohodu každý deň, tak mi dovoľte, aby som Vám ponúkla na predaj tento moderný a nadštandardný rodinný dom typu bungalov v okresnom meste Levice, v zástavbe nových rodinných domov.
Tento dom je id ...
279 900 €
Levice
934 01
934 01
140 x
Označiť zlý inzerát Chybnú kategóriu Ohodnotiť užívateľa Zmazať/Upraviť/Topovať
Exkluzívne pekný rodinný dom v Leviciach - na Mudroňovej ul. - [10.11. 2025]Ponúkame exkluzívne na predaj pekný rodinný dom v Leviciach - Mudroňova ul. - postavený na pozemku o výmere 706 m2, zastavaná plocha domu je 135 m2 + samostatná betónová garáž. Dom postavený z tehly pozostáva z prízemia a jednej pivnice. Pozostáva zo vstupnej haly, obývačky, kuchyne, 2 x izby, kúpeľ ...
189 000 €
Levice
934 01
934 01
45 x
Označiť zlý inzerát Chybnú kategóriu Ohodnotiť užívateľa Zmazať/Upraviť/Topovať
Chata Langon (108,3 m²) s dopravou zdarma, celoročné bývanie - [10.11. 2025]Dvojposchodová a útulná zrubová chata Langon s vonkajšími rozmermi 870 x 595 cm v jedinečnej cene 34355 Eur. 10 rokov záruka
1.) doprava zdarma
2.) najnižšia cena iba 34355 Eur
3.) drevodom s možnosťou celoročného bývania
4.) Obytná plocha : až 108,3 m²
5.) Stavebný materiál : Certifikovaná ...
34 355 €
Levice
934 01
934 01
52 x
Označiť zlý inzerát Chybnú kategóriu Ohodnotiť užívateľa Zmazať/Upraviť/Topovať
Exkluzívne ponúkame na predaj rodinný dom Levice, F.HEčku - [10.11. 2025]Ponúkame na predaj slnečný, rodinný dom v meste Levice, časť Cigánka, ulica F.Hečku. Rodinný dom je veľmi kvalitne postavený , zachovalý, dobre udržiavaný. Dom má veľmi dobré dispozičné riešenie, izby nie sú priechodné. Nachádza na peknom pozemku s rozlohou 1309m2.
Dispozíciu domu tvoria na 1.pos ...
294 000 €
Levice
934 01
934 01
62 x
Označiť zlý inzerát Chybnú kategóriu Ohodnotiť užívateľa Zmazať/Upraviť/Topovať
Rodinný dom na komerčné priestory pre ambulanciu a pod. - [9.11. 2025]Globreality ponúka na predaj rodinný dom situovaný v centrálnej časti Levíc, ktorý je vhodný na využitie ako podnikateľské priestory, komerčný objekt ale aj rodinný dom na bývanie. Pozostáva z piatich veľký miestností, troch WC blokov (v minulosti tu bola aj prevádzka kaviarne) a vlastným pozemkom o ...
254 000 €
Levice
934 01
934 01
72 x
Označiť zlý inzerát Chybnú kategóriu Ohodnotiť užívateľa Zmazať/Upraviť/Topovať
Na predaj 1 izb. byt Levice vhodný na investíciu - [9.11. 2025]🎯 IDEÁLNA INVESTÍCIA/PROJEKT! 1-IZBOVÝ BYT V ŽIADANEJ LOKALITE LEVÍC – RYBNÍKY III. 🛠️
Hľadáte nehnuteľnosť, ktorú si pretvoríte od základov? Práve ste ju našli!
Ponúkame na predaj slnečný 1-izbový byt (36 m²) v obľúbenej lokalite Rybníky III v Leviciach. Táto nehnuteľnosť je ako čisté plátno ...
67 500 €
Levice
934 01
934 01
128 x
Označiť zlý inzerát Chybnú kategóriu Ohodnotiť užívateľa Zmazať/Upraviť/Topovať

